A modern, light and functional addition to a school development.
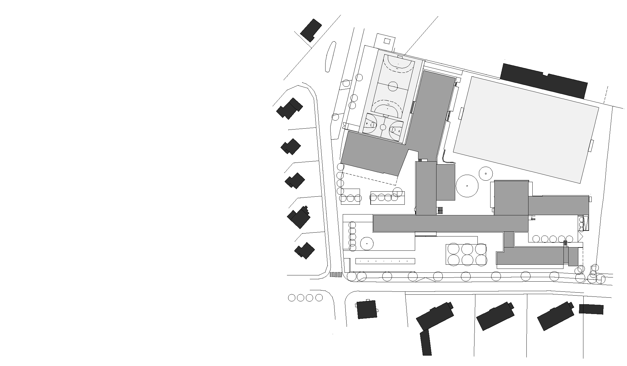
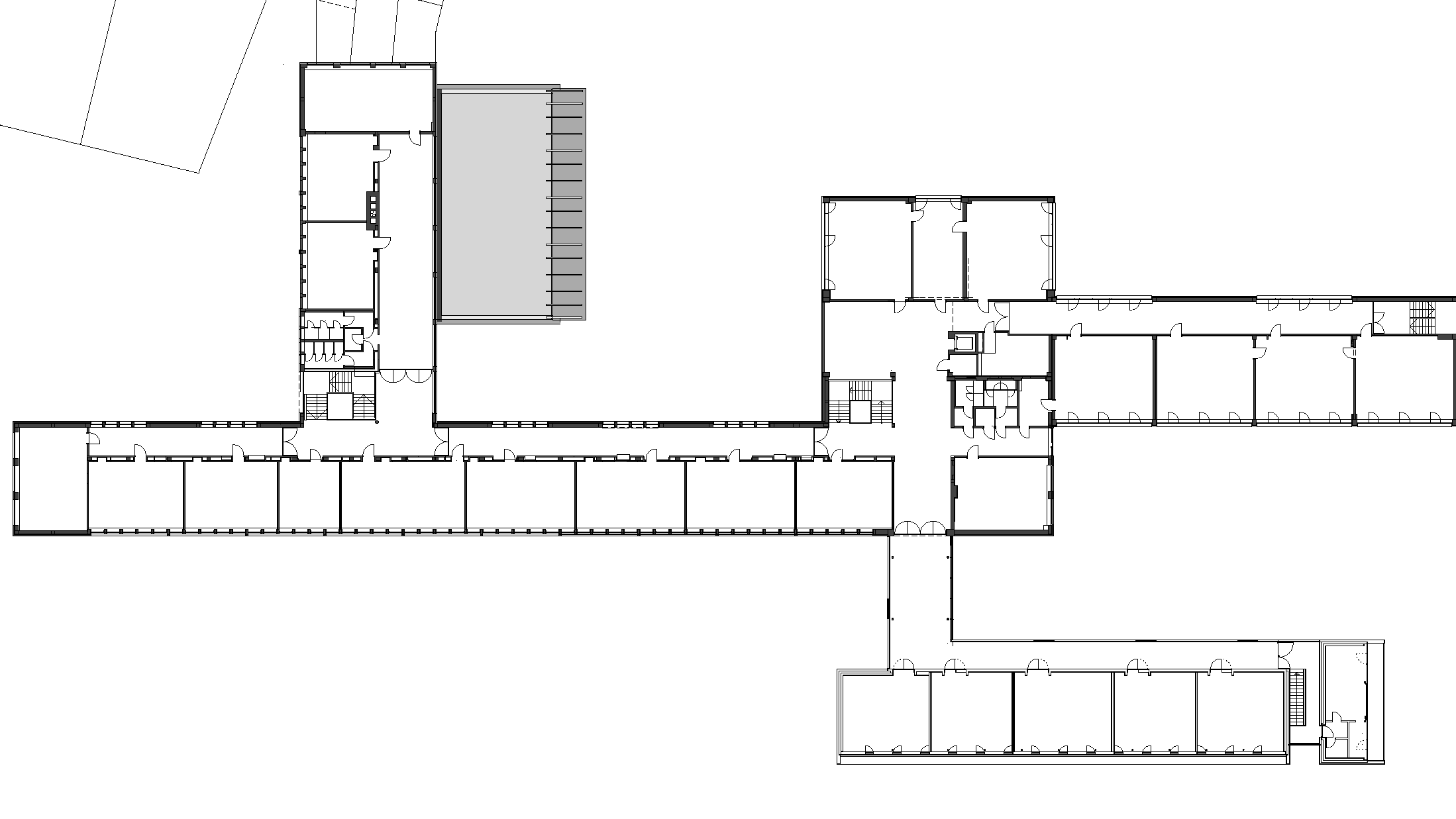
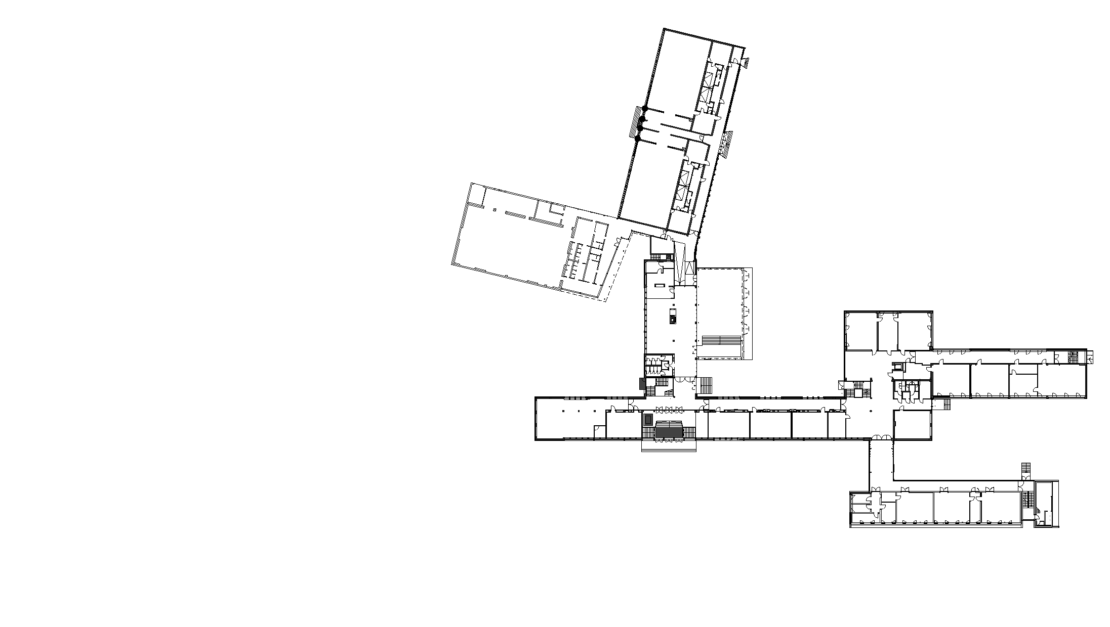
The Bundesrealgymnasium in Bludenz consists of the school and gymnasium buildings, built in 1956 and 1975. This high-quality building remains in the volume and architectural language, and will be renovated accordingly. In the eastern area, a new school wing with theory and special classes is being built, replacing the disused school dining room.
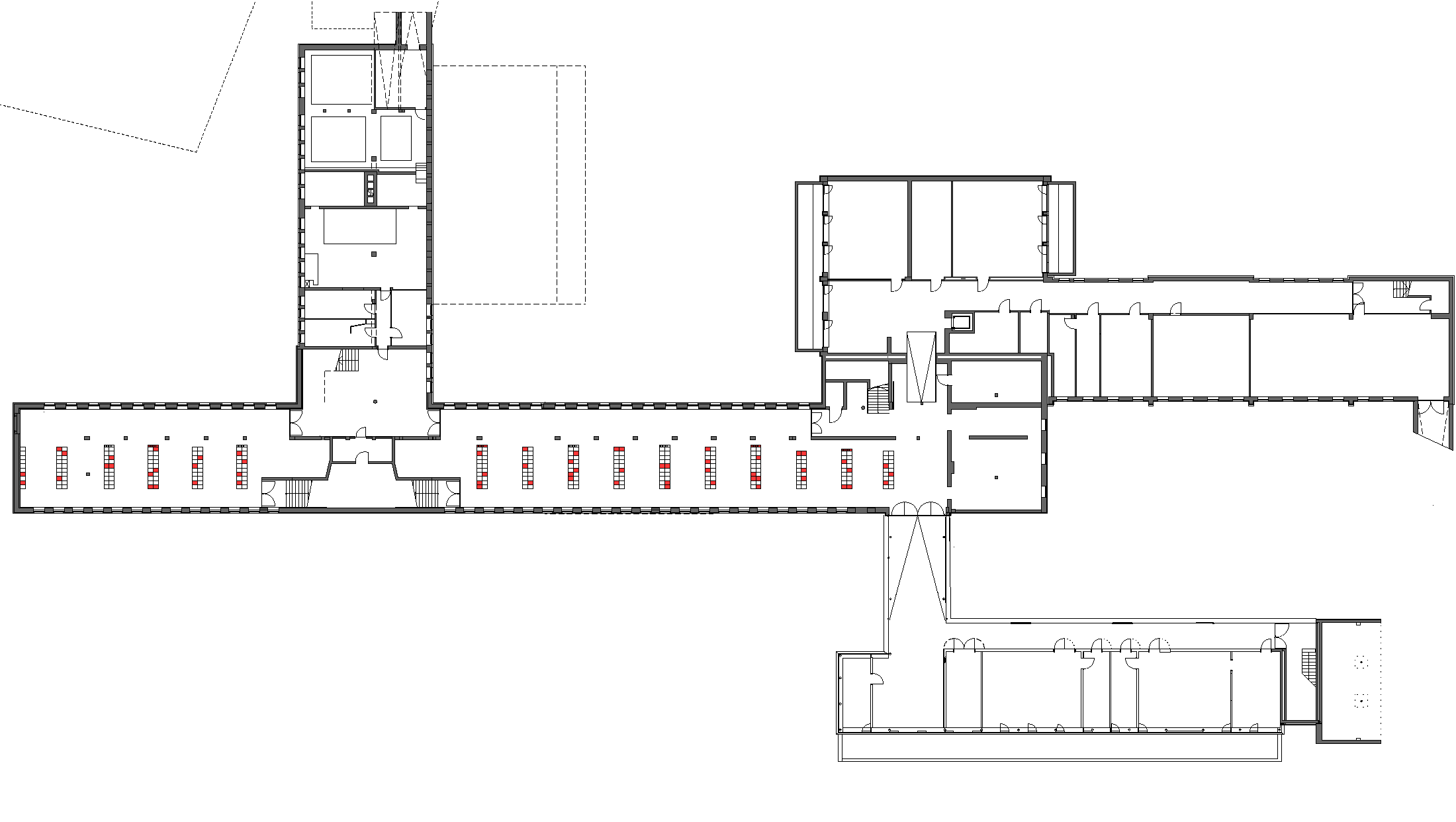
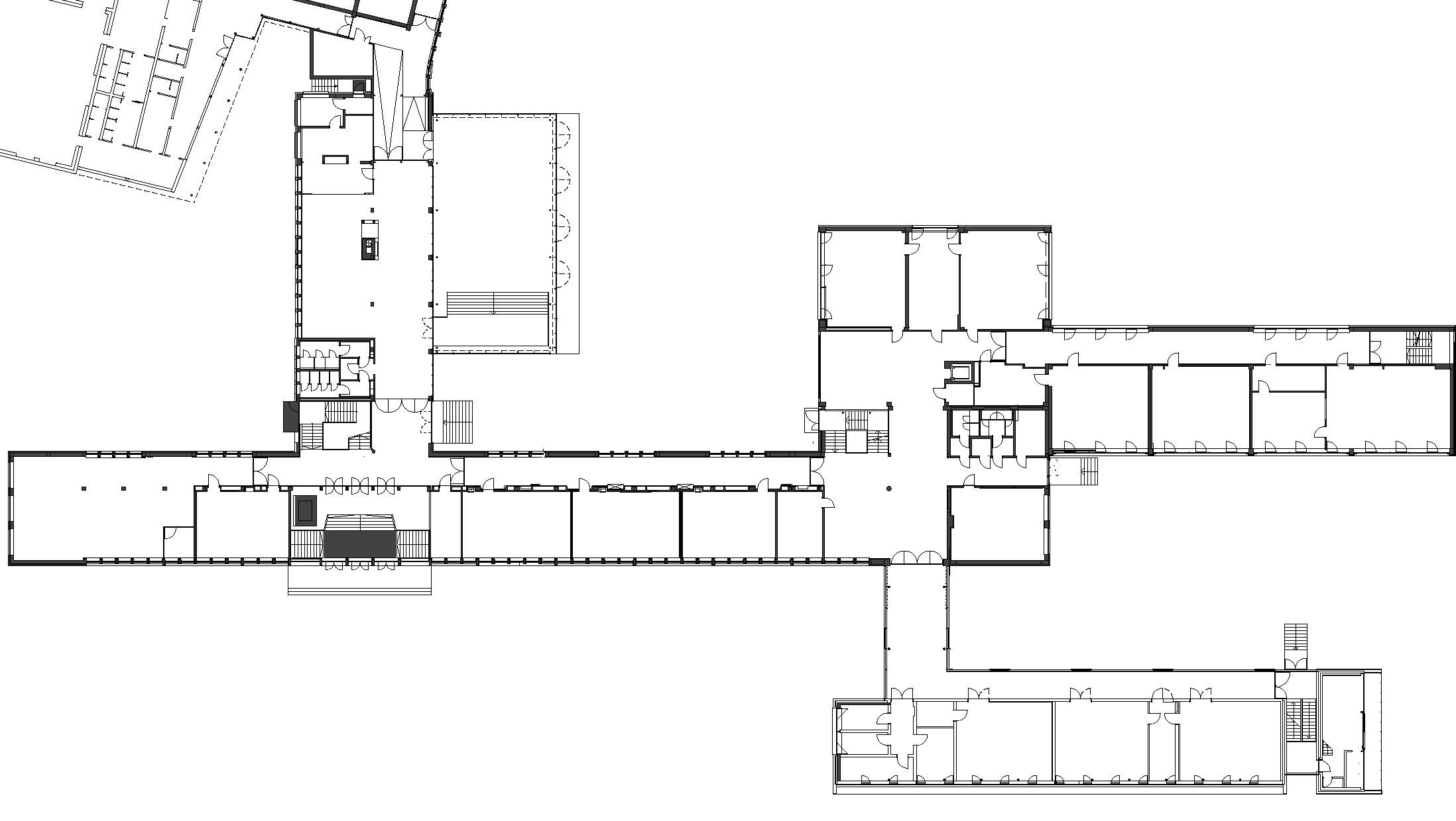
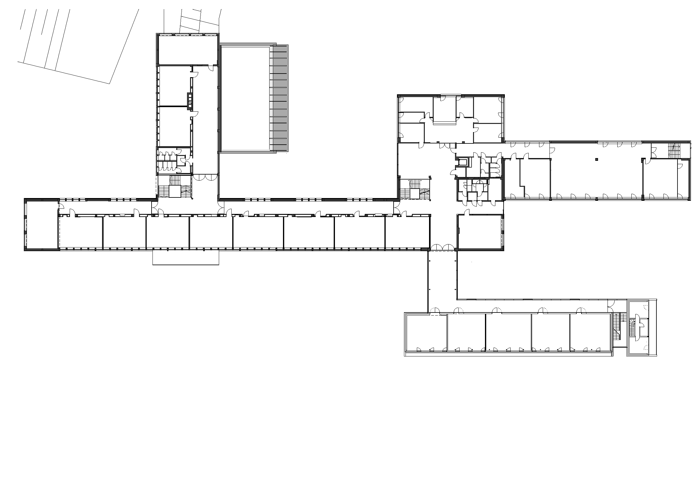
This new structure defines a clear development boundary in relation to the street and provides room for the east-facing schoolyard. The new dining room will be added as a pavilion in the north yard. The existing inner layout and functionality of the school is preserved and will be continued in the annexes.
The space program will be adapted to match the new requirements of the school. The type of construction and materialisation of the renovation of the existing building takes place under consideration of the existing building fabric. The new school wing is a reinforced concrete skeleton construction with pre-hung prefabricated timber and glass facades.









