One of the largest timber-framed office buildings in the world, setting news standards in sustainable construction.
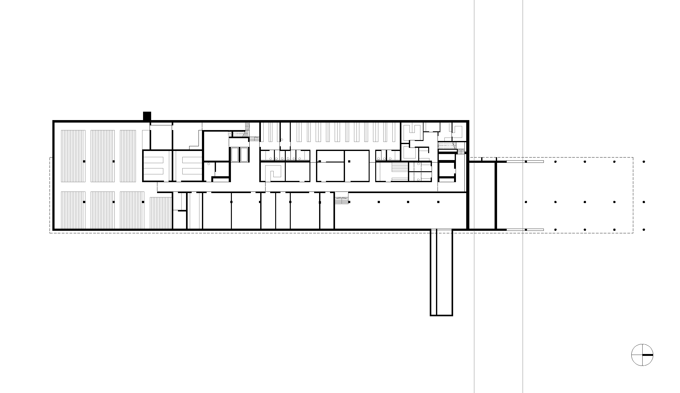
The Illwerke Zentrum Montafon (IZM) in Rodund is the new administration building of the Vorarlberg power company, and an outstanding timber construction. When it was completed, with over 10,000 m² of usable space, it was the largest wooden office building in Europe. The wooden structure, above the concrete base, was put together in just 6 weeks and is the first application of the LCT (Lifecycle Tower) on the open market.
»For a long time now, we have been working to remove the prejudice surrounding timber construction, and to restore it to its rightful place as the ideal building material of the future. A perfect example of this is the new Illwerke Center, which proves that sustainable building and architectural quality do not necessarily have to be a contradiction in terms.«
Univ.-Prof. Arch. DI Hermann Kaufmann
The LCT system
The IZM has been constructed using LCT (LifeCycle Tower), a modular, flexible timber-hybrid construction system. The LCT construction system is an innovative timber construction method based on a high degree of prefabrication. Due to its modularity, hybrid cement celling system, and load bearing functionality, it is suitable for multiple building types, including skyscrapers and multi-story apartment blocks. The sequential manufacturing process allows for precise construction, a speedy project delivery progress, and high economic efficiency.
Read more
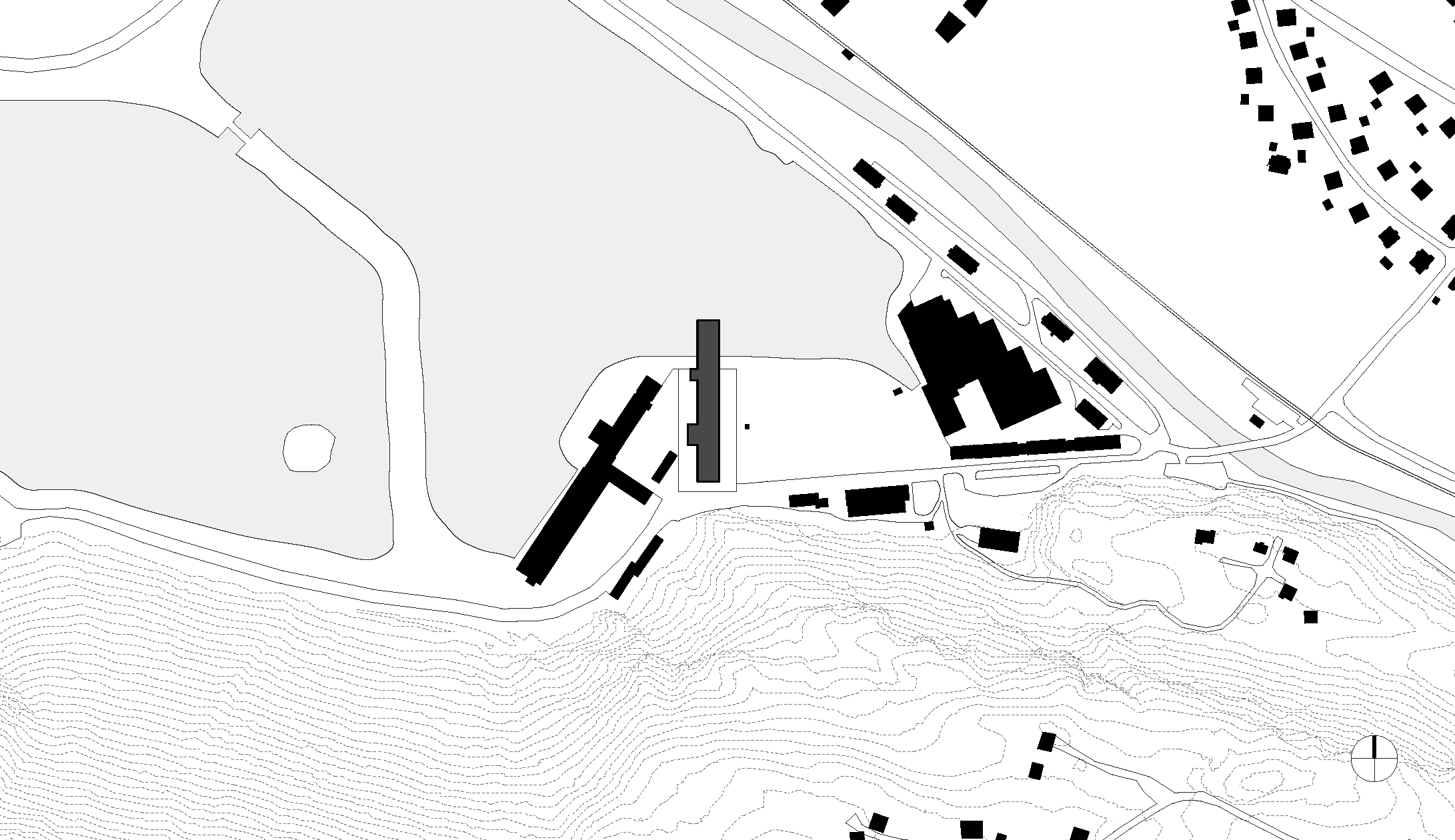
Redefining the landscape
The new 120 m long IZM building redefines its location with its powerful physical presence. The IZM explores the boundaries between nature and artificiality. The new site is characterised by the vertical walls of an alpine valley that is peppered with man-made features, including an artificial hydropower lake and large pre-existing factories. To define the surroundings, and to bring a sense of dramatic awe to the landscape, it was decided to create a powerful and confident new building to sit proudly on the valley floor. The long and elegant timber construction projects from the foot of the mountains onto the lake, creating an engaging spatial experience and a sense of purposefulness to the valley as a whole.
With the LCT system all the prerequisites have been met for timber construction to expand into new dimensions. The design is focused on the strengths of modularity and the capacity of local craftsmen in the region of Vorarlberg. A special feature of the system is that the wood does not disappear behind plaster walls, but will remains visible and forms part of the interior. This makes it possible to produce buildings on an industrial scale with the same care and livability as the smaller residential properties for which Vorarlberg is famous.
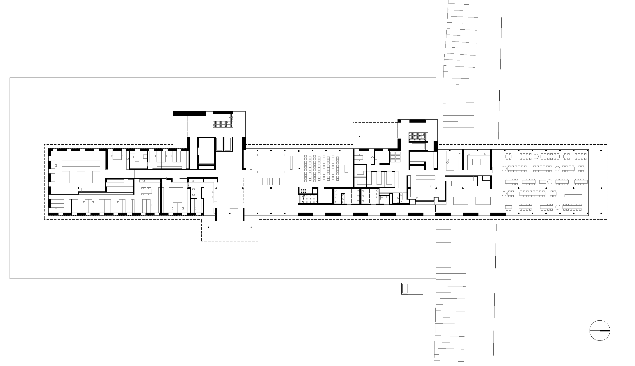
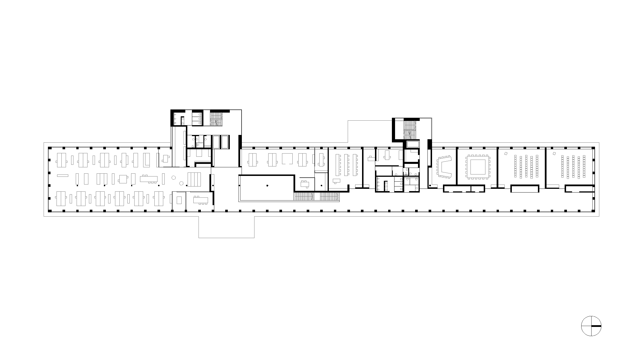
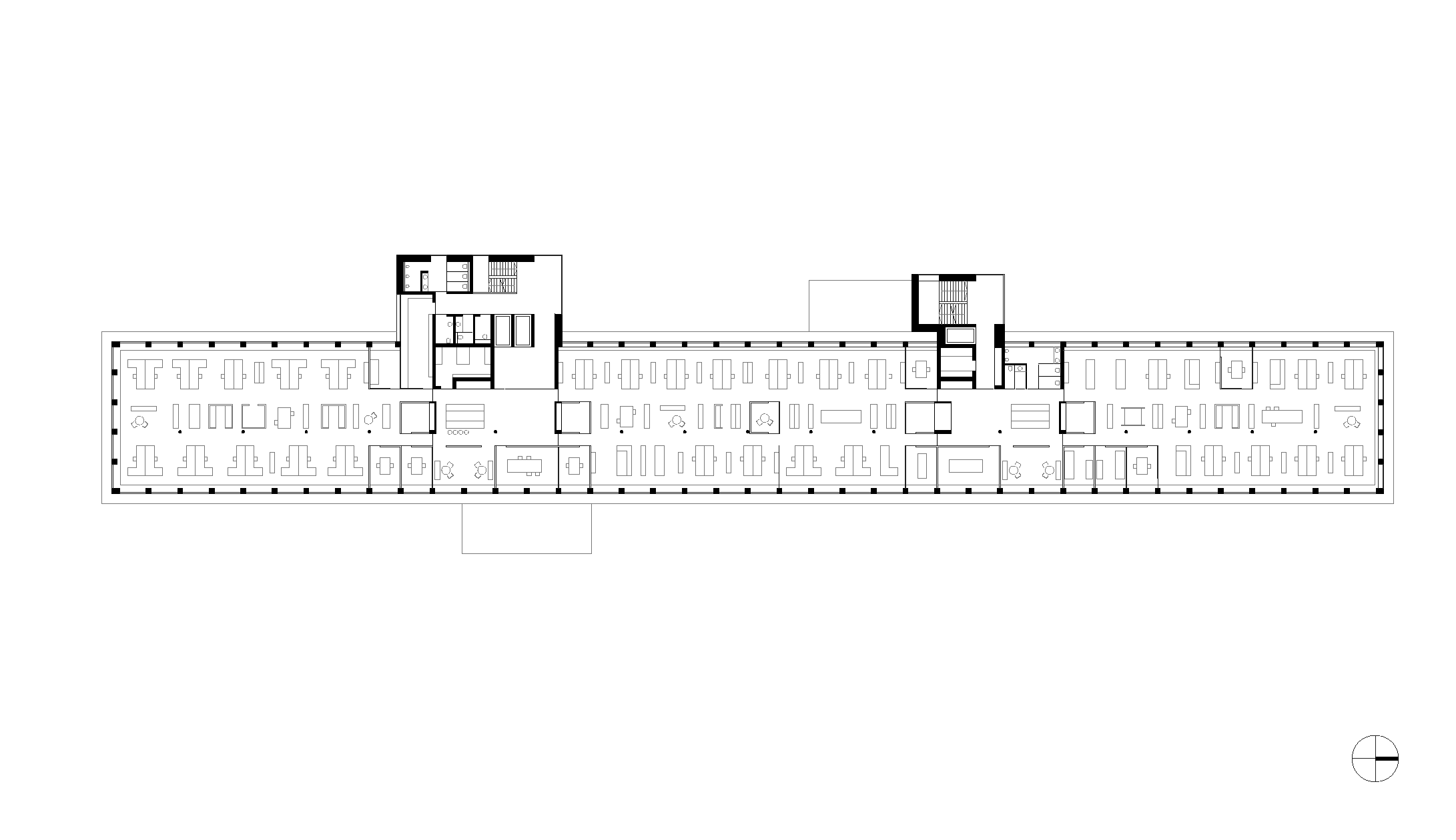
The shape of the IZM is defined by two specifications: the static structure of the building system with the prefabricated ribbed ceilings, and the goal to create enjoyable and functional conditions for all 270 workplaces. The depth of the construction was limited and as a result, the length of the building grew to 120 meters in length. The shape was also defined by the design, because the prefabricated panels deliver their optimum advantages when in a cubic formation. The clear-cut wooden structure could only be accommodated on the perimeter of the lake, extending over the edge of the basin and onto the water’s surface.
In this position, the building has a clear separation into two sides. To the east, the structure welcomes its guests; the generous canopy marks the entrance and a park creates enough space to present the building to its full extent. The façade is divided into layers of parapets, ribbon windows and canopies. The length becomes the leitmotif of the building, mimicking the valley within which it sits.
The simple shape and consistent skeleton construction, with very few reinforcement cores, is perfect for the future flexibility of the building. The timber façades are protected throughout by projecting roofs, which also allow ideal access for cleaning, thus reducing operating expenditure. It would be possible to extend the building by adding further stories. All the service installations remain accessible, and the envelope is perfectly energy-efficient, so that no thermodynamic improvements are expected to be necessary in the future.
The primary energy consumption stays below 30 kWh/m²/year, the heat demand at 14 kWh/m²/year and is completely covered by the exhaust heat system of the plant, as is the cooling demand by the heat pump system. These indices, including those for “grey” energy, turn the building into a perfct example of sustainable construction. The passive house standard ensures low energy consumption and operating costs. The prefabricated method of construction means that at the end of its lifecycle, the cost of demolition should be comparatively low.
The new IZM continues to exceptional in the design and arrangement of the interior. Common areas such as the dining room, visitors’ centre and conference rooms occupy the area on the lake, thus becoming unusual and memorable places. The office concept was developed in workshops and interviews with the employees, and the end result is a space that is designed to give everyone an enjoyable, functional and inspirational working environment. The office space, for 270 people, includes break-out spaces, think-tanks, meeting areas, reading centres and on each floor, a kitchenette.































































