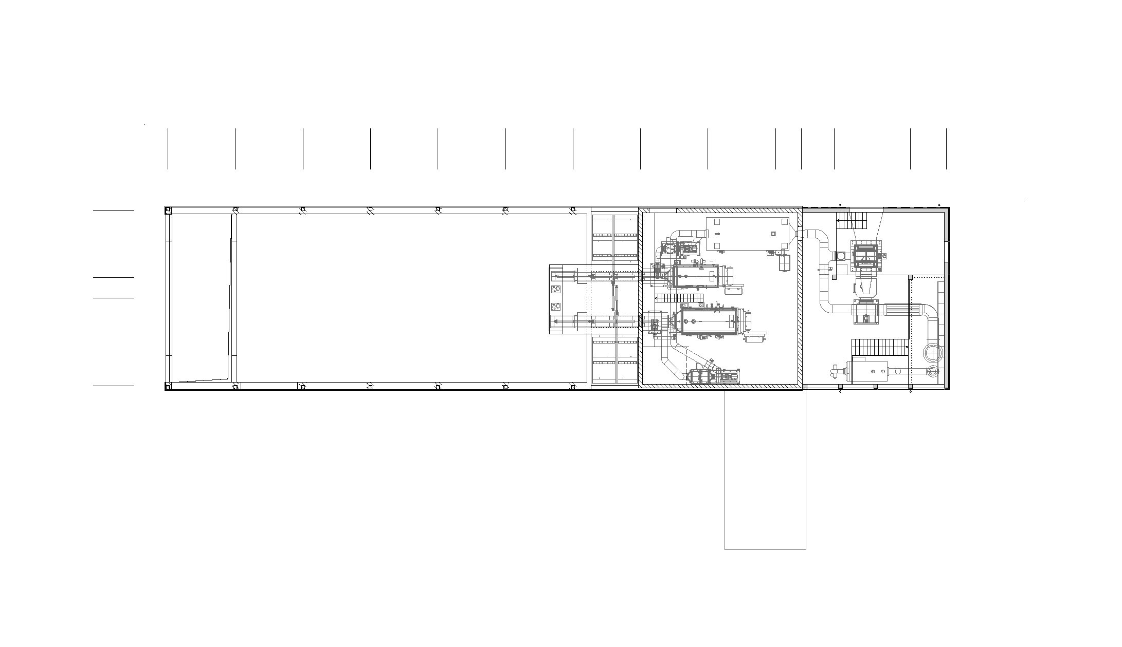
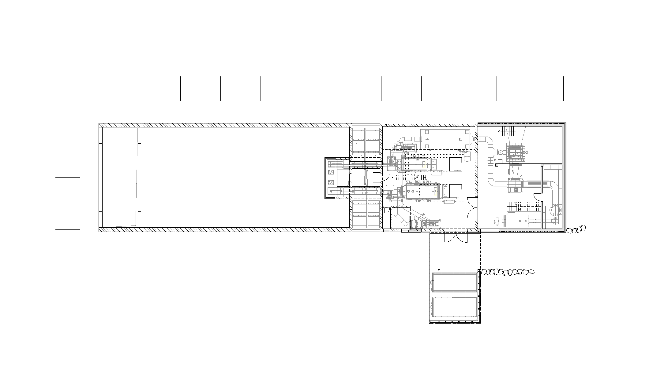
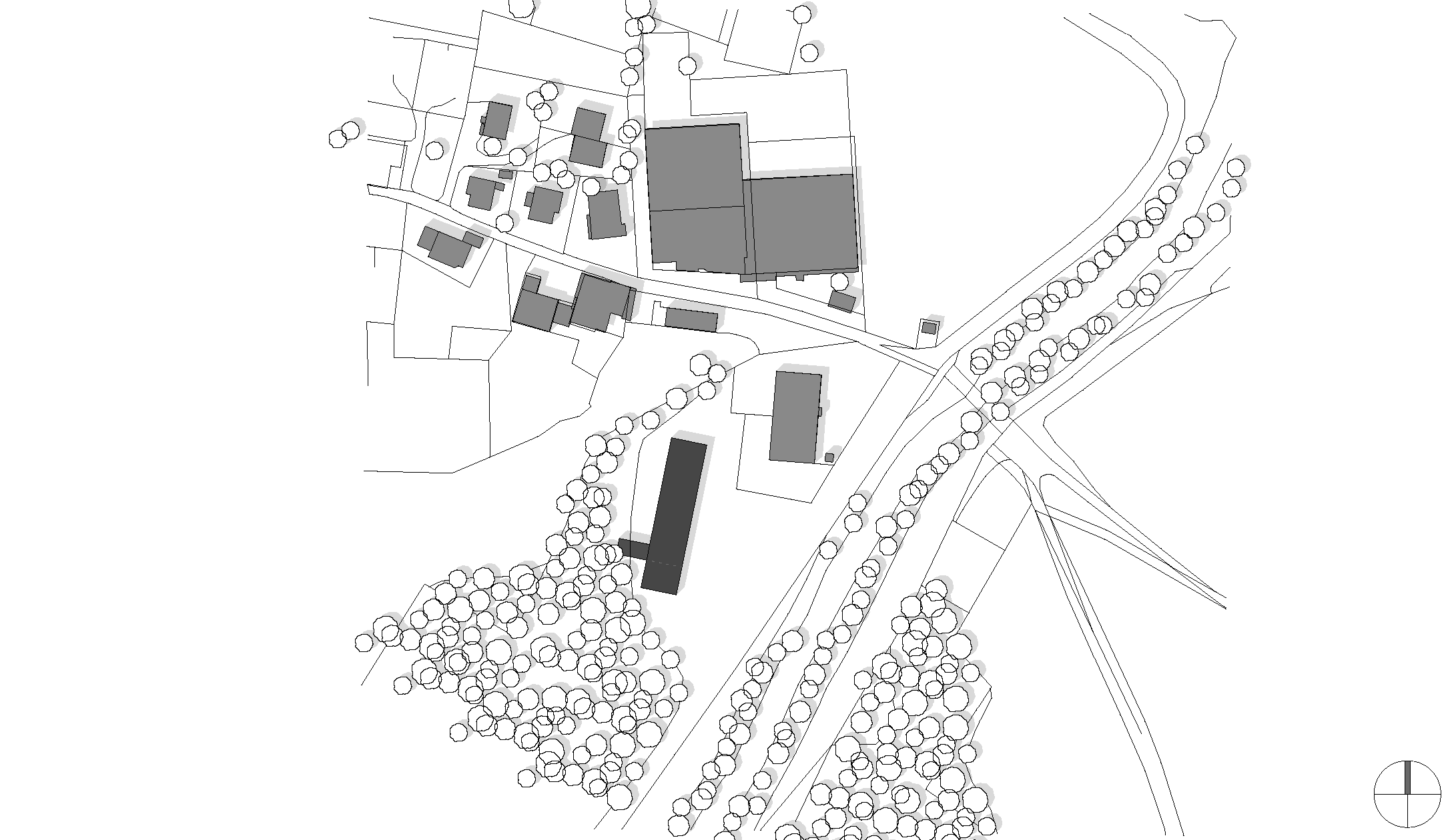
Biomass heating plant, Mellau

Biomasseheizwerk, Mellau, Projekt 11_35
Builder-Owner
Biomasseheizwerk Mellau GmbH & Co, Mellau
Location
Mellau
Completion
2013

Projectdetails

Project support
Project Leader
Building Site Manager
Bmst. Gerold Hämmerle
Technical planning
Structural Engineering
Hagen-huster Ziviltechniker GmbH, Bregenz
Biomasskessel/Filter
KCO Cogeneration und Bioenergie GmbH, Wolfsberg
Copyrights
Photography
Architekten Hermann Kaufmann
more Projects