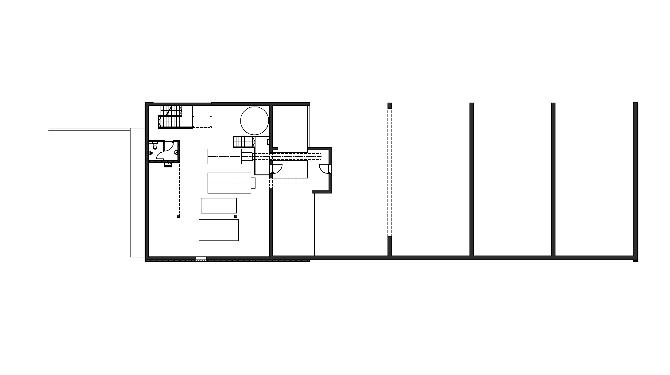
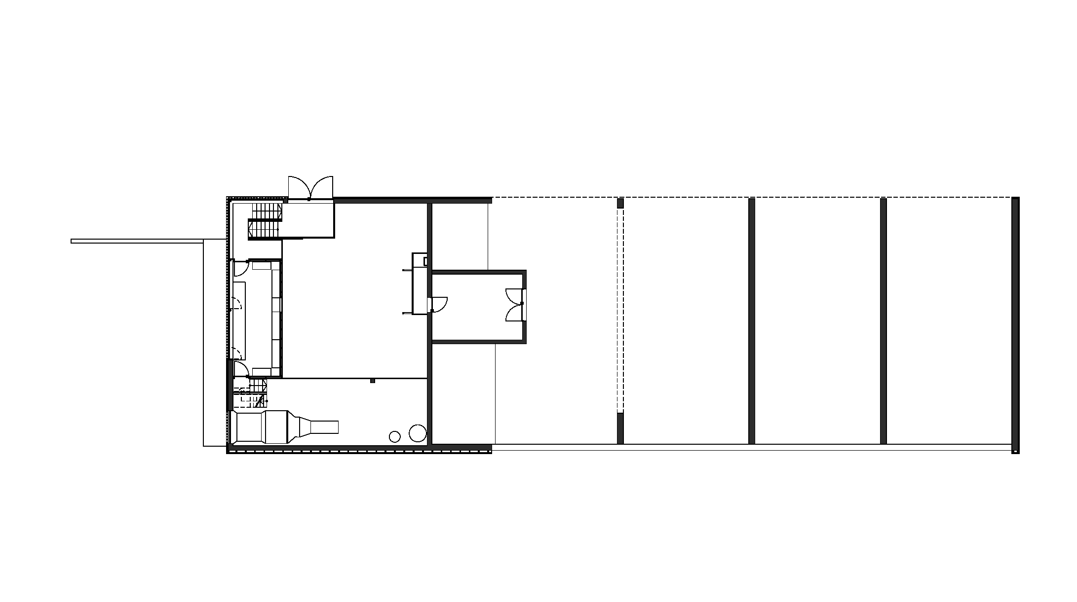
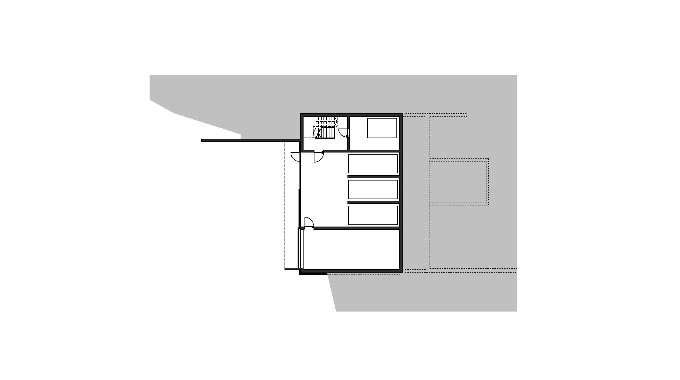
A facade that unifies the purpose and the landscape.
The facilities at the Biomasseheizwerk all share the special location outside the village of Zug. Each part of the plant is tuned to the specific situation, that is, there is no uniform typology throughout the site. However, is the materialisation, the use of timber, which reflects the obvious functionality of the biomass heating plant. The natural timber, that forms a protective skin for the high-tech boiler system, demonstrates that timber is very well suited for this purpose and compliments the idea of using biomass for heating.









