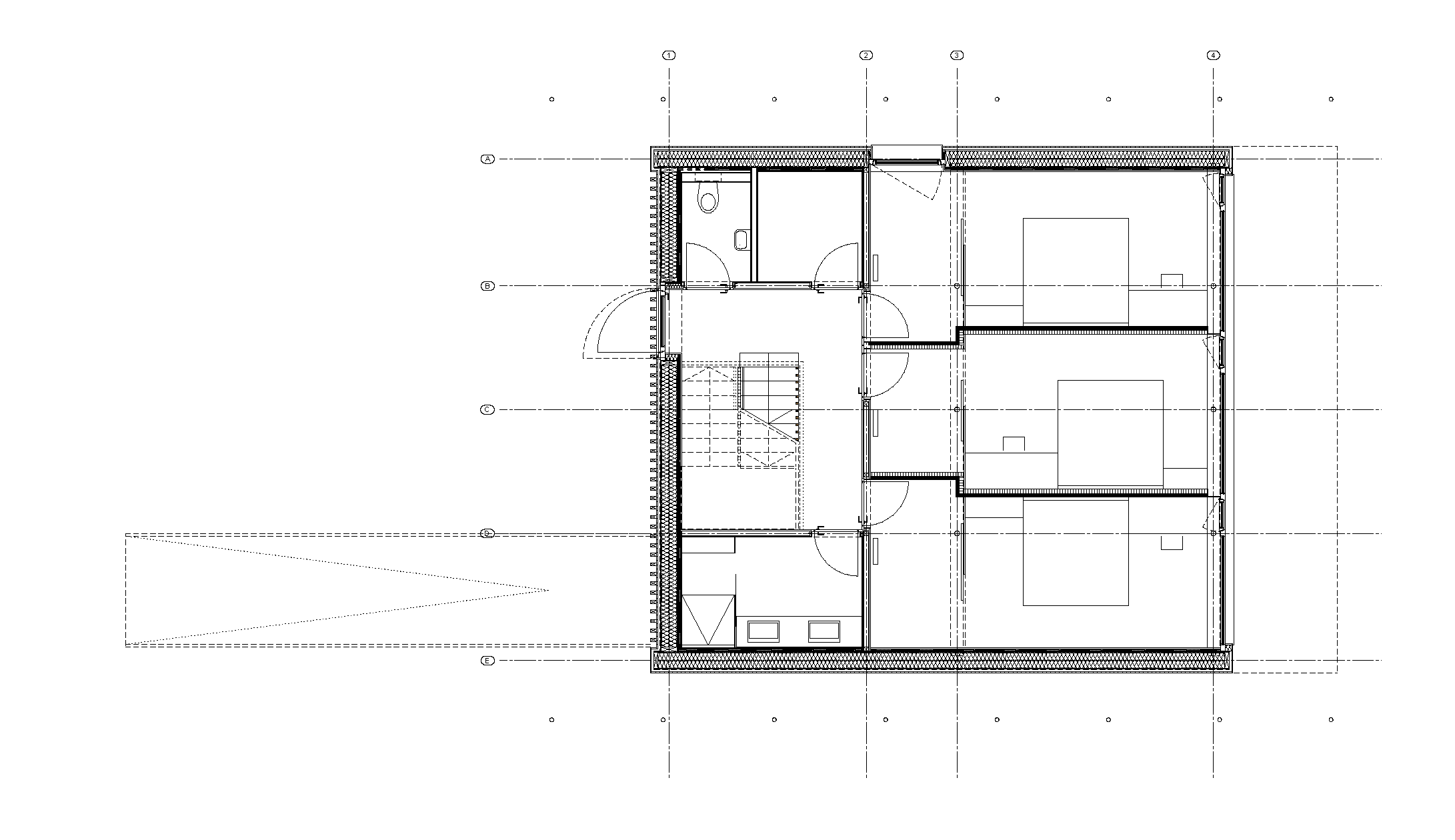
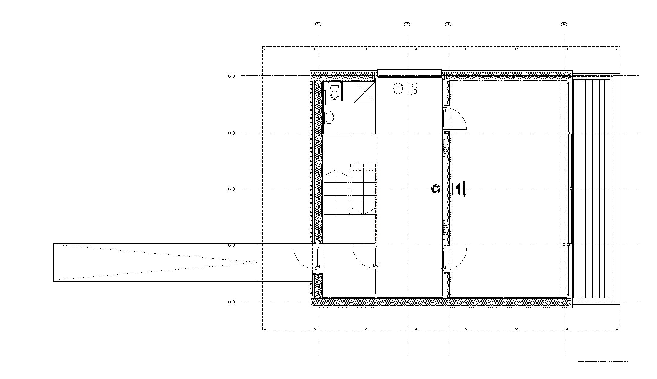
Seminar house, Chanteloup Les Vignes

Seminarhaus, Chanteloup Les Vignes, Projekt 07_49
Builder-Owner
EPAMSA
Location
Chanteloup les vignes
Completion
2010
Projectfacts
Energie 12 kWh/m²a
Seminar house, Chanteloup Les Vignes
Seminar house, Chanteloup Les Vignes
Seminar house, Chanteloup Les Vignes
Seminar house, Chanteloup Les Vignes

Projectdetails

Project support
Building Site Manager
Generalunternehmer
ERE Européenne de Réalisations et d´Etudes, Paris
Technical planning
Structural Engineering
Heating Ventilation and Sanitary Planning
Publikationen
Nachhaltiges Bauen – Chanteloup les Vignes
Z-187Claire BoullandChalets | Maison bois, Ausgabe Nr. 49, S.80-852011
Chanteloup les Vignes – Seminarhaus
Z-176amc – Le Moniteur Architecture, Nr. 194, April 2010, S.102-1032010
Chanteloup les Vignes – Seminarhaus
Z-182Claire BoullandChalets | Maison bois, Okt./Nov. 2009, S.70-742009
Copyrights
Photography
more Projects