A low energy concept that blends with the urban surroundings.
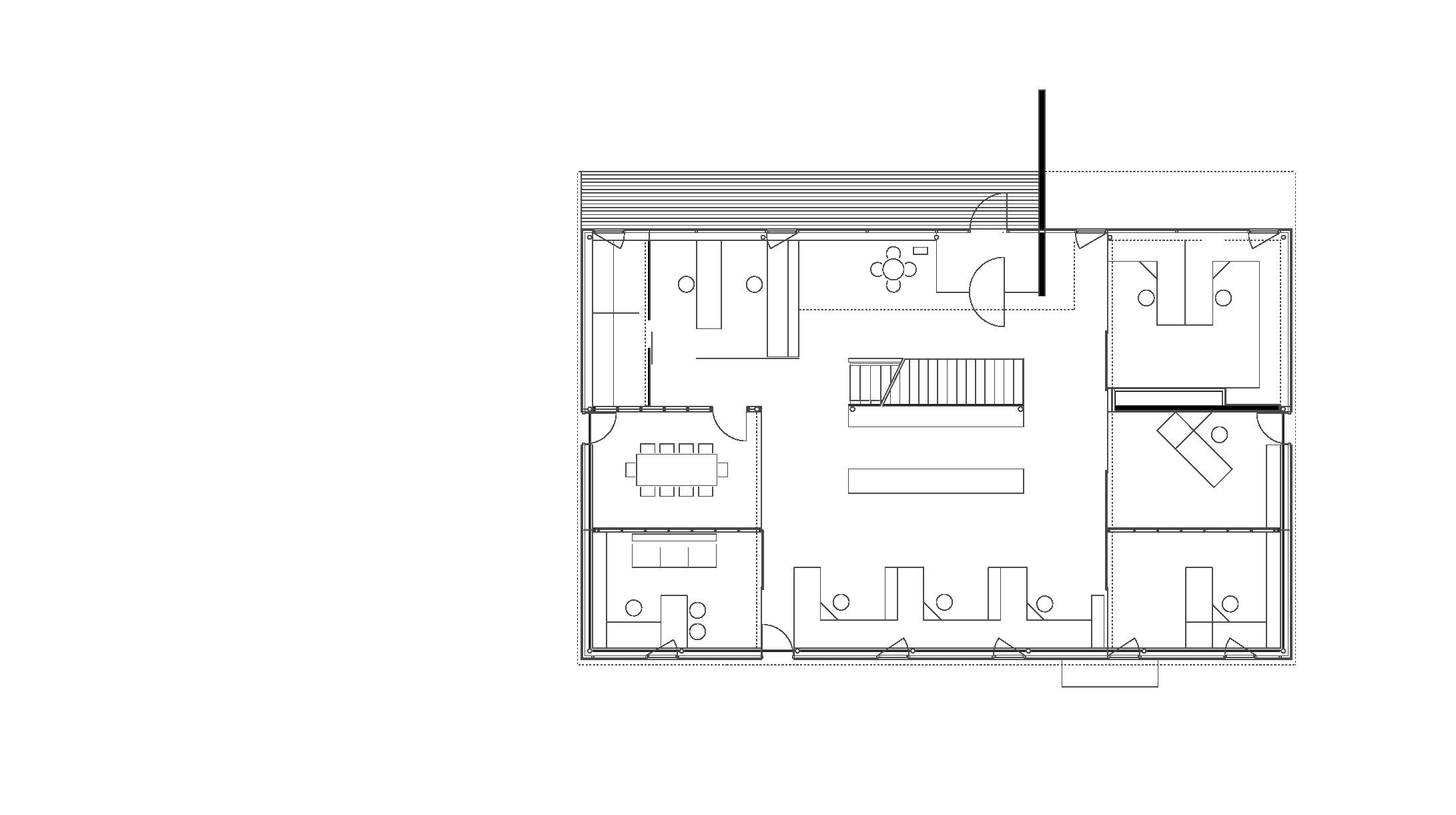
The office building of the advertising agency – DIE DREI – in Dornbirn, Rohrbach sits in an urban area of old timber houses and new single-family and multi-family houses.
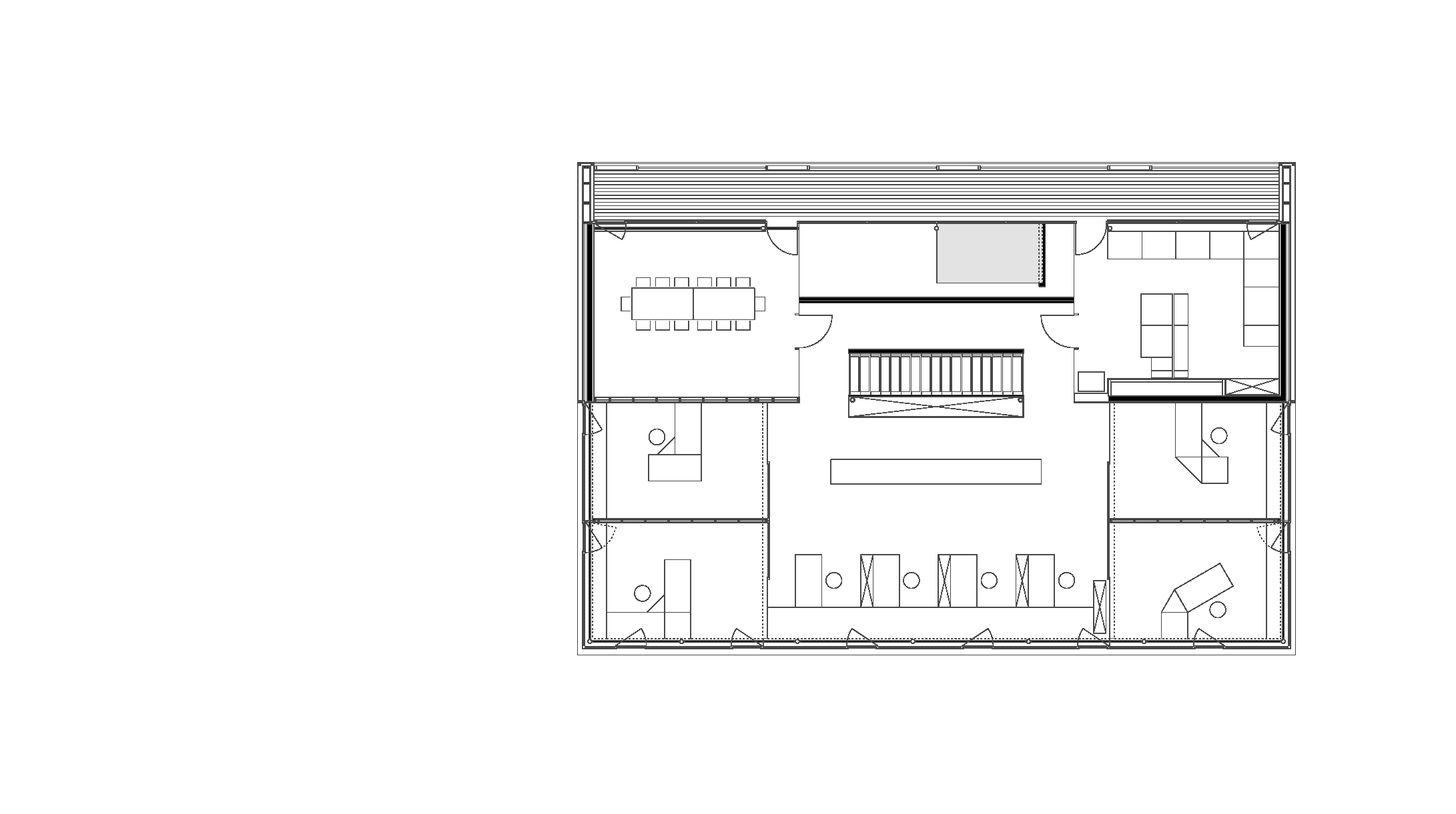
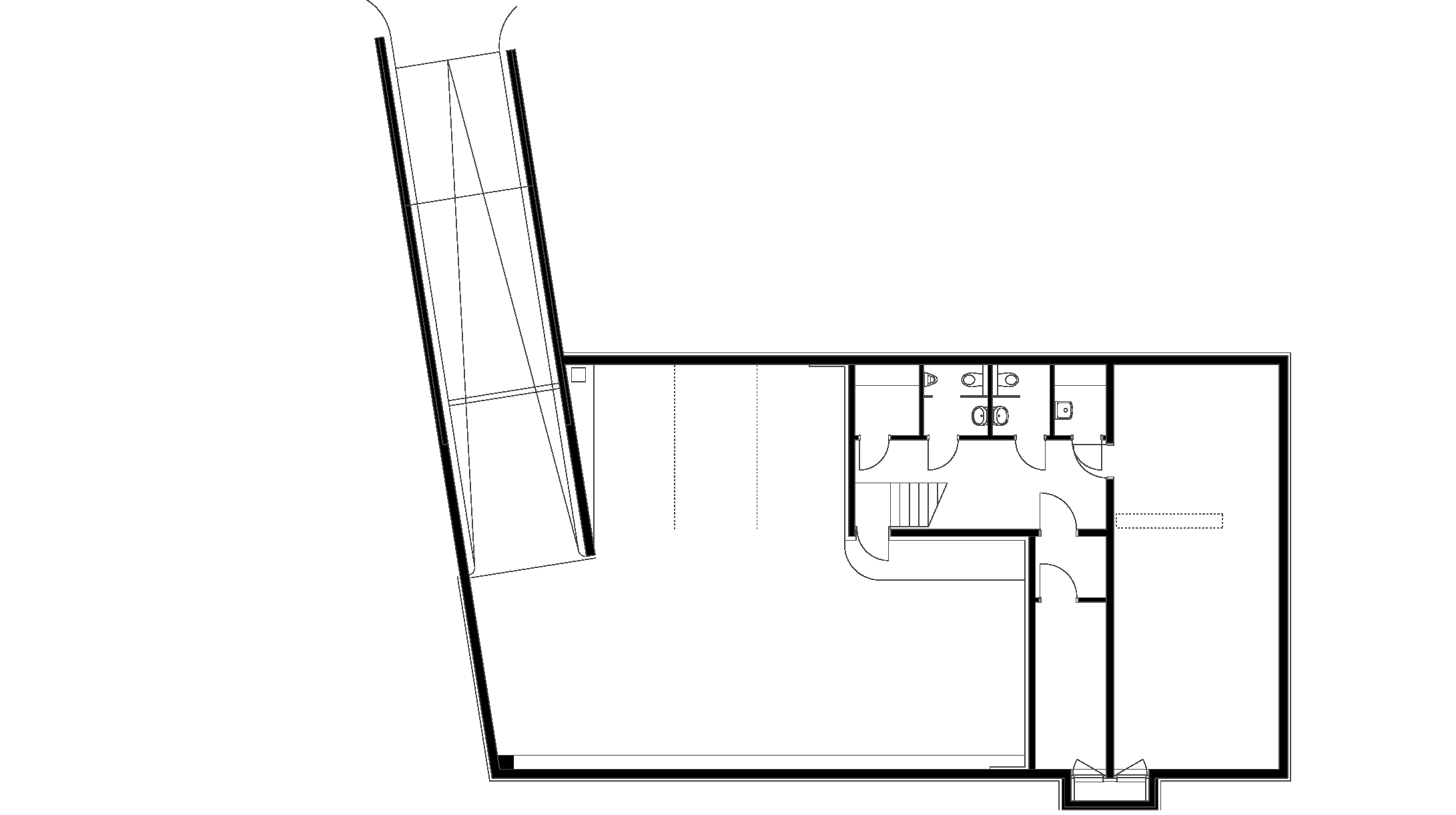
The property includes an underground car park and office space on the ground floor and first floor. It is designed as a low energy building and equipped with controlled ventilation. The building shell consists of timber prefabricated elements with 30 cm mineral wool insulation.
To improve the indoor climate in the summer, the ceiling of the ground floor is made of reinforced concrete (night cooling through window ventilation). The facade concept for the upper floors is realised in Larch timber that changes with weathering, and so the building can relate to the existing timber houses of the surroundings. A Corten steel was used for the facade cladding on the ground floor.















