A carpenter’s timber family home that combines old character with modern spaces.
»Our goal was to combine the old and the new in such a way that the character of the old Wälderhaus was preserved while achieving a high quality of living. To reach this goal, we were in multiple conversations and discussions with Hermann Kaufmann, their suggestions and ideas where an indispensable help.«
Builder Jodok Fetz
When a carpenter builds their own home, great things are possible.
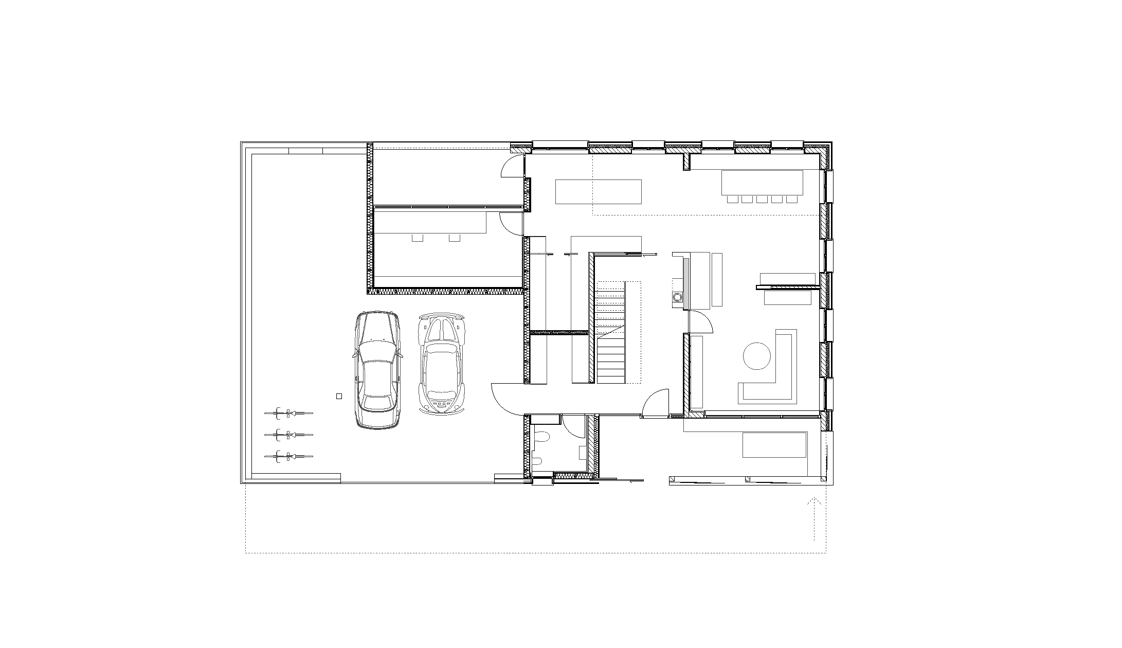
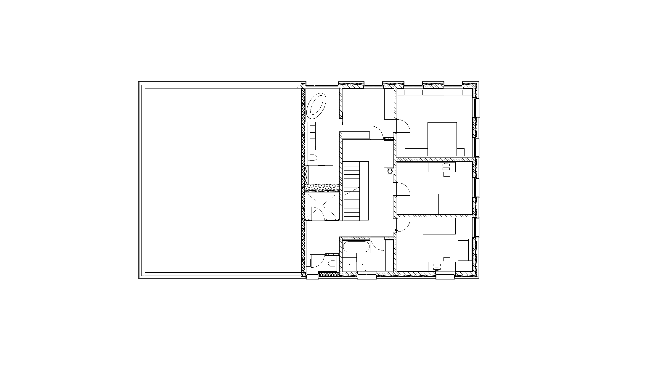
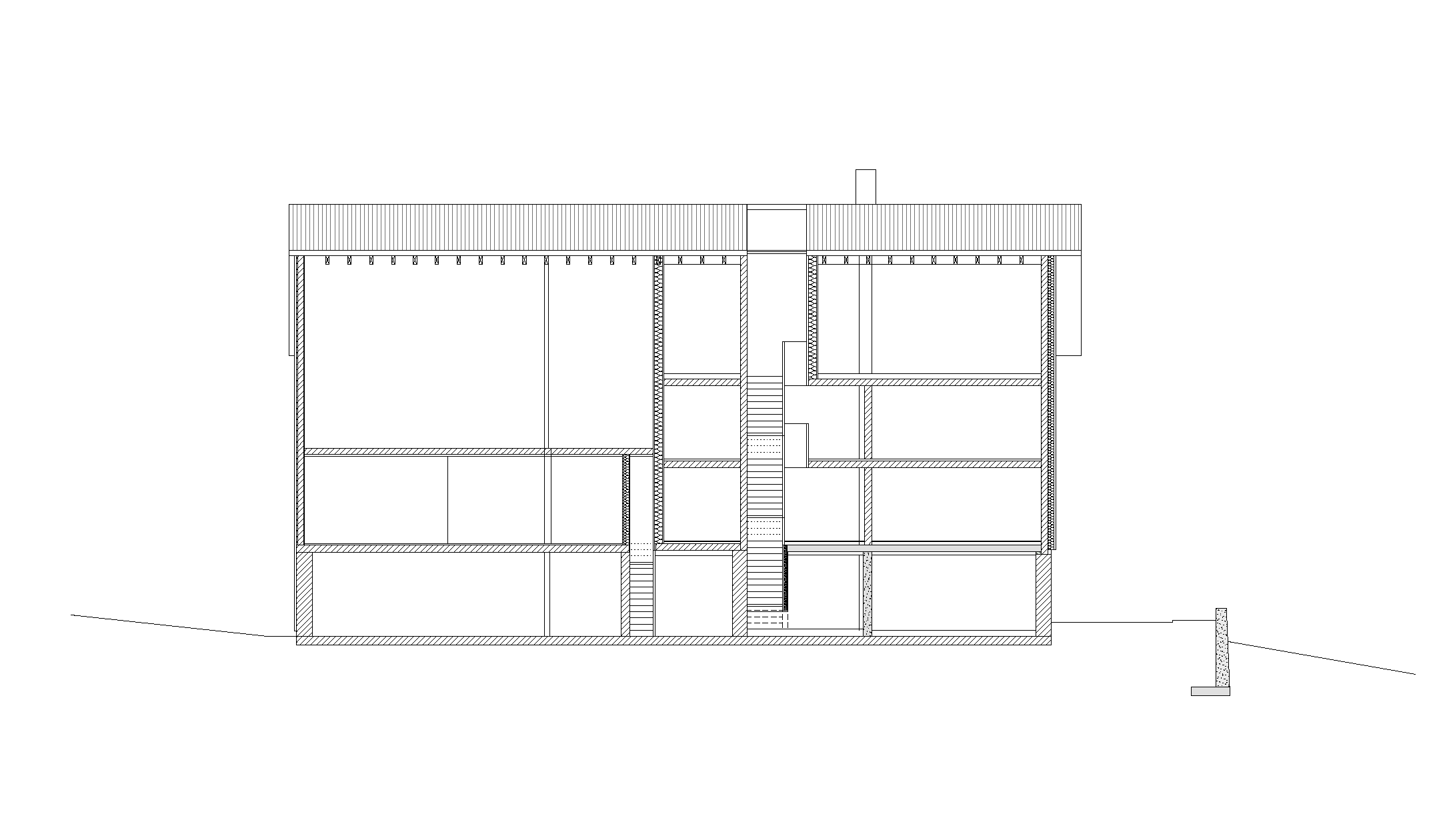
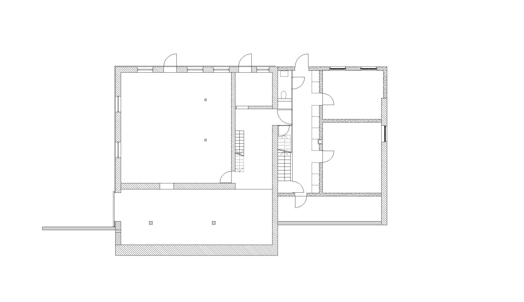
The alignment of the building is altered to regain the characteristic shape of the Bregenzerwald House. The core, without the roof, of the main house is simply lifted onto the prepared new foundations. This results in much more space. The house is also reorganised; now in the basement area, where there used to be stables, is the cellar with a laundry room. The timber staircase is moved and incorporated into the beam structure. It is made by the client, as are the white fir panelling and wooden floors. In the west, the office literally stretches into the business wing, as does the loggia with an unobtrusive viewing slit. Transitions are also seen in the shingle facade of the building on the gable front, which flows into vertical timber cladding.

















