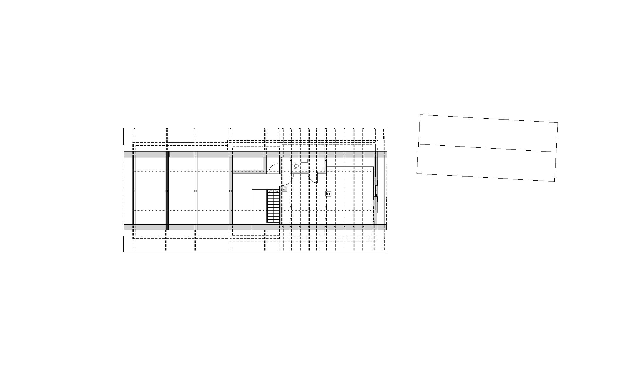
Hofsteigstraße G, Wolfurt

Hofsteigstraße G, Wolfurt
Builder-Owner
Armin Giselbrecht
Location
Wolfurt
Completion
2016
Projectfacts
n.b.ar. 352 m², GFA 545 m²,
GBV 2056 m³
Energie 39 kWh/m²a
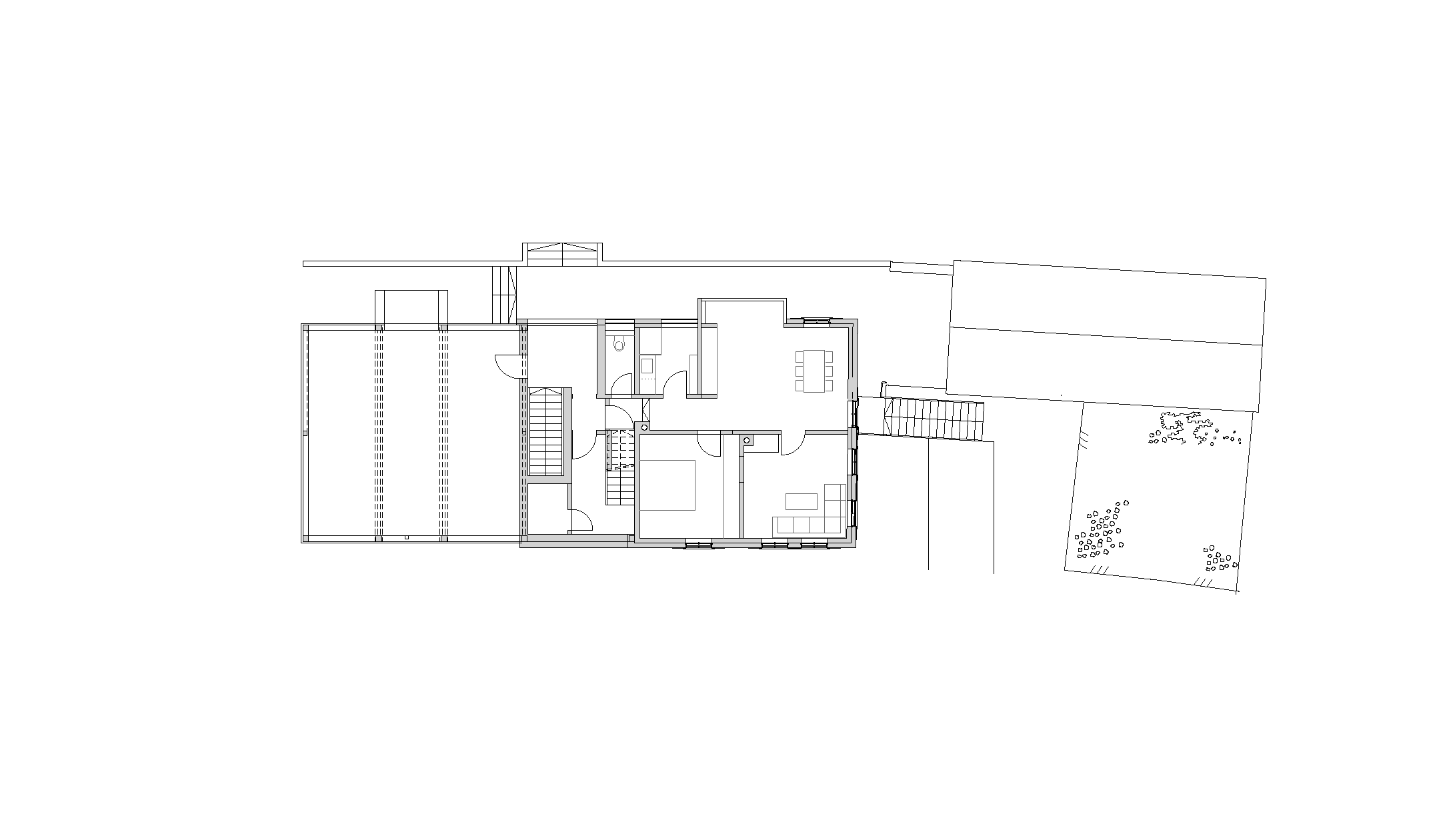
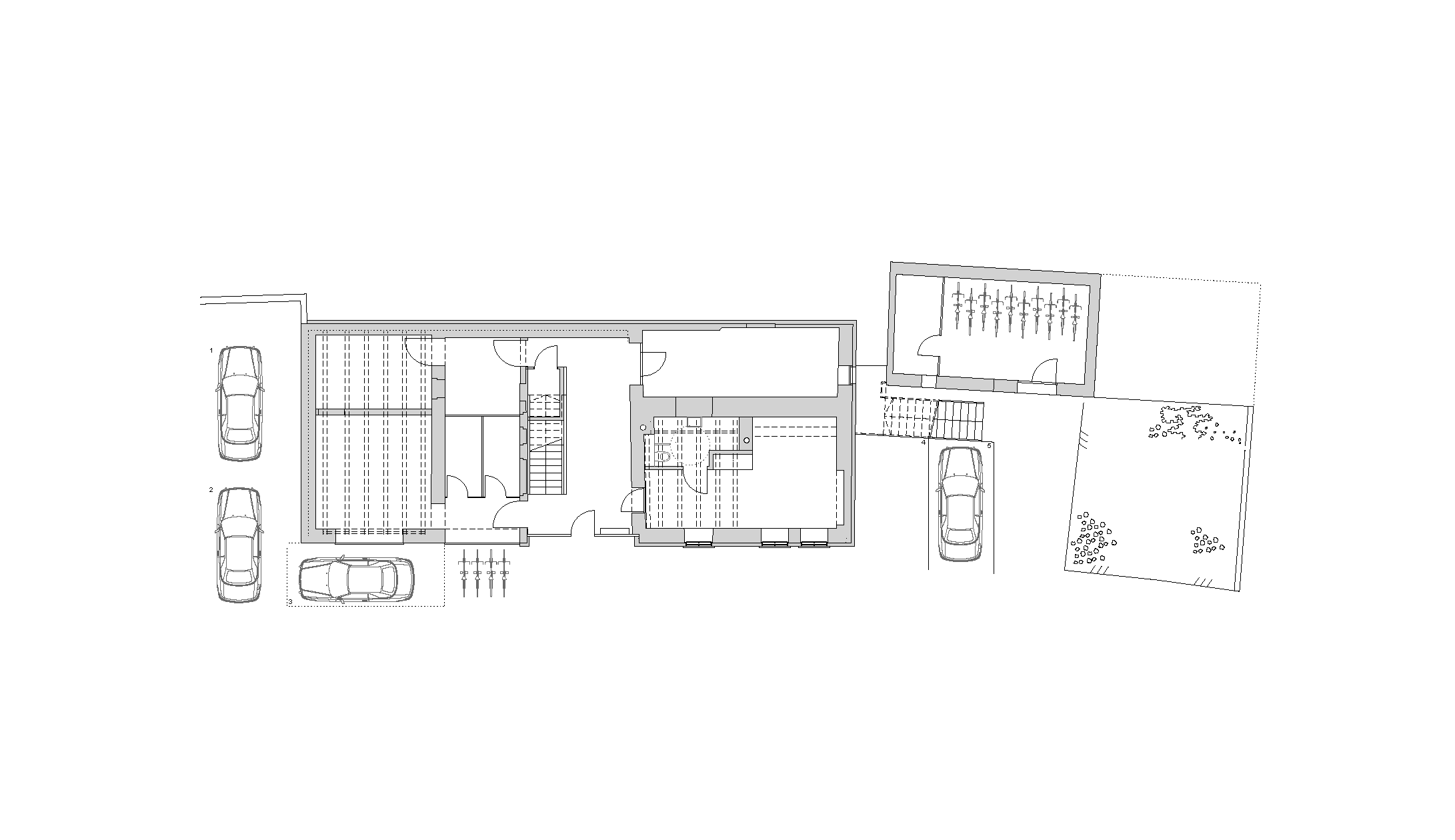
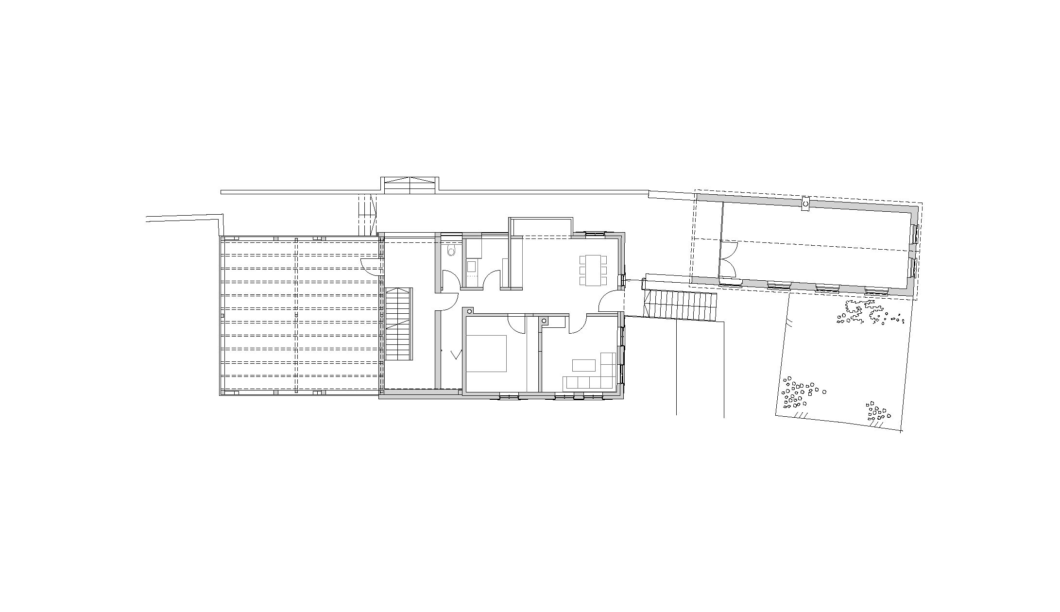
Hofsteigstraße G, Wolfurt
Hofsteigstraße G, Wolfurt
Hofsteigstraße G, Wolfurt

Projectdetails

Project support
Project Leader
Copyrights
Photography
more Projects