Uncomplicated resonance.
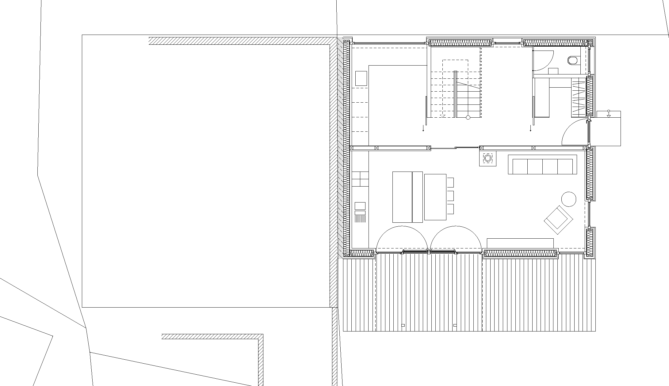
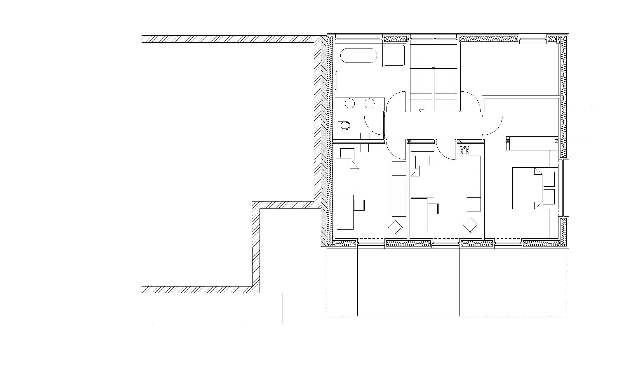
The house, for a family of musicians in the centre of Hard, Vorarlberg, is simple and pure in its formal language and yet full of warmth and sound. Its dimensions and orientation were set as it was built on the footprint of a demolished building to save on expensive foundations.
It is entirely made of prefabricated spruce timber elements. Open beam ceilings reduce disturbing flutter echoes with their geometry. The organisation of the living space is based on the rhythm of the load-bearing wall panels in the central axis of the building, which follow the logical pattern of the standing purlin roof. In the centre of the house is a wood burner; over this is the storage heater tank in the attic, so comfortable warmth is distributed throughout the entire building volume.













