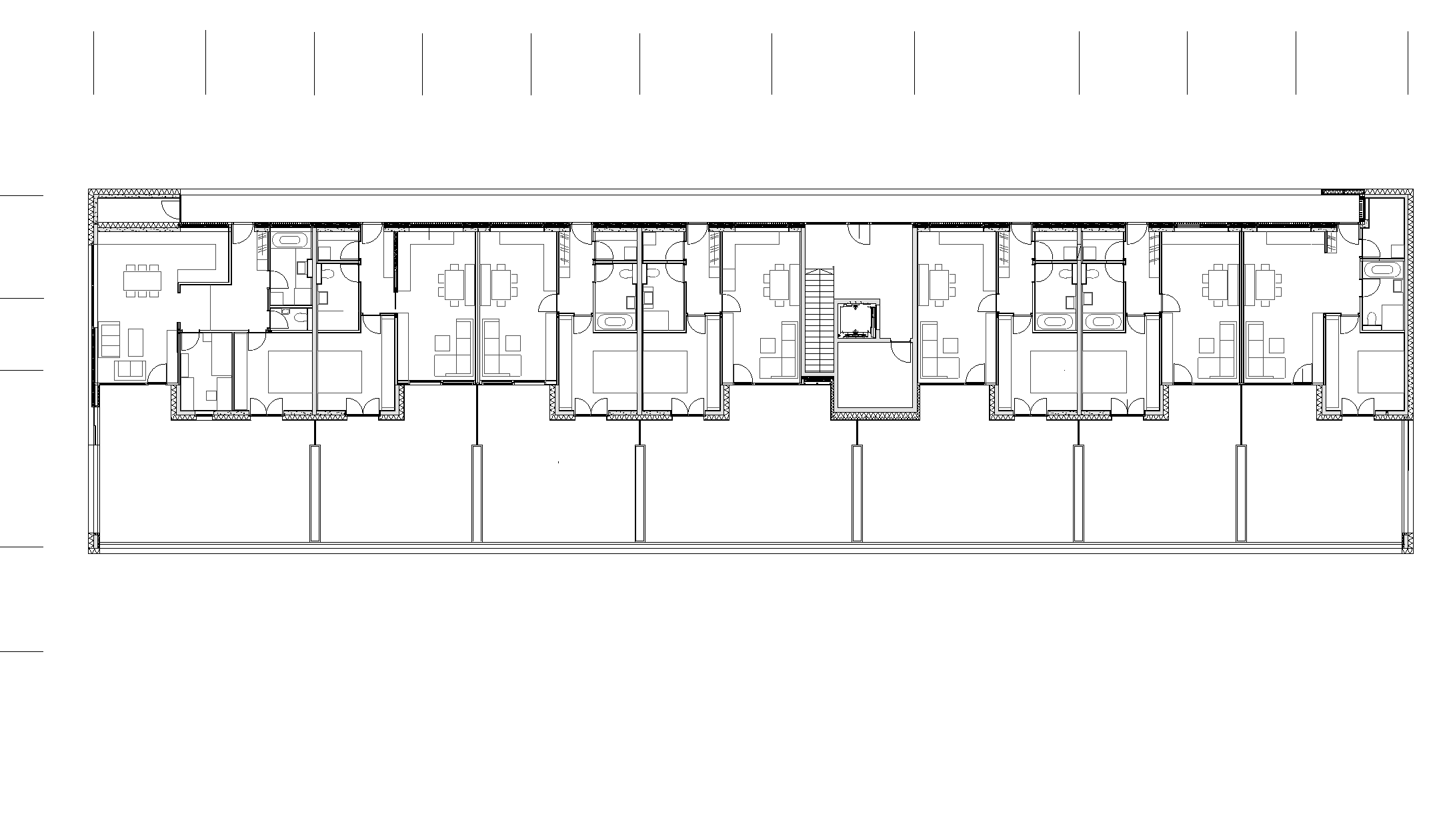
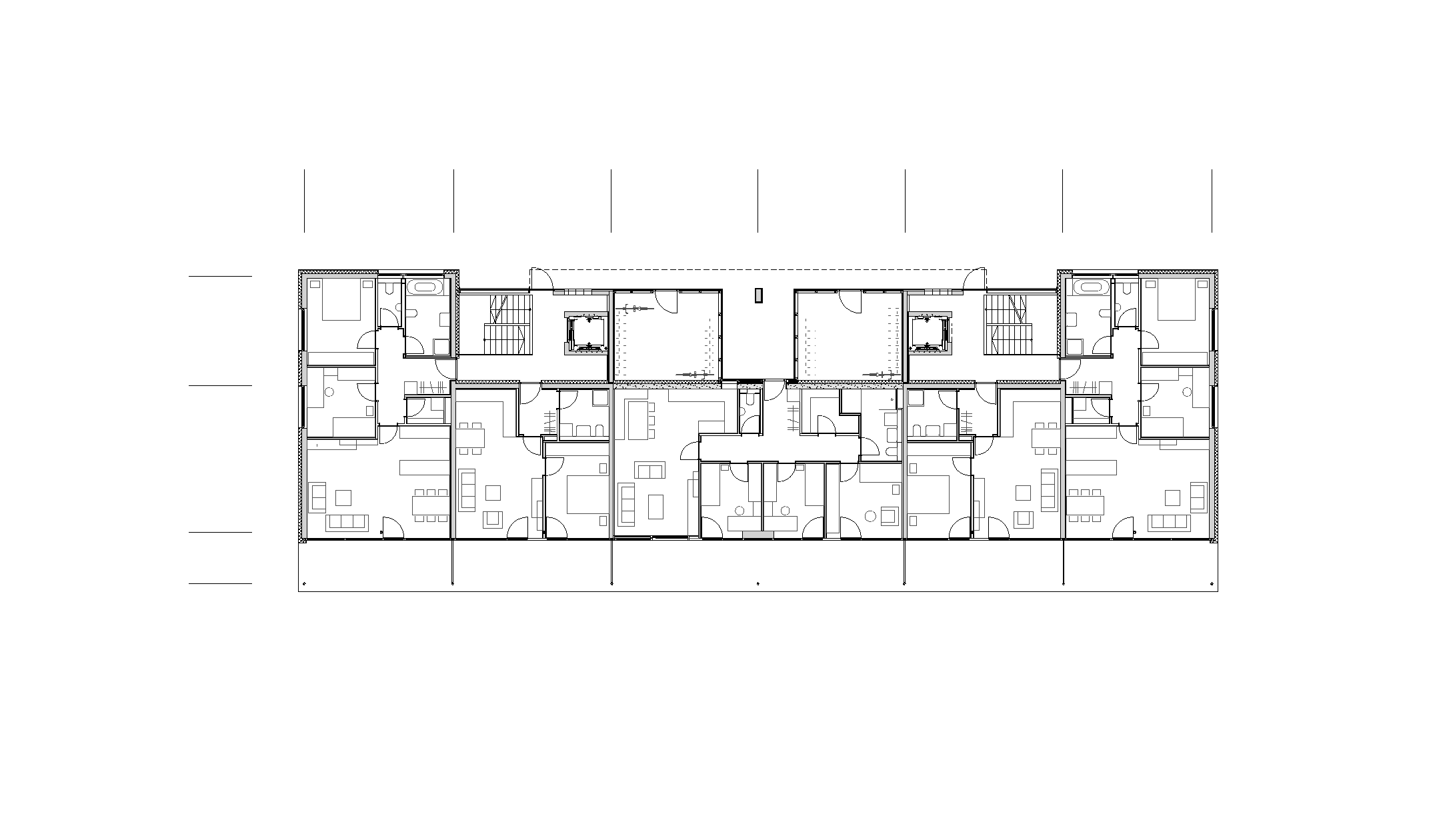
Lustenauerstraße, Dornbirn

Lustenauerstraße, Dornbirn
Builder-Owner
I+R Schertler Alge, Lauterach
Location
Dornbirn
Completion
2012
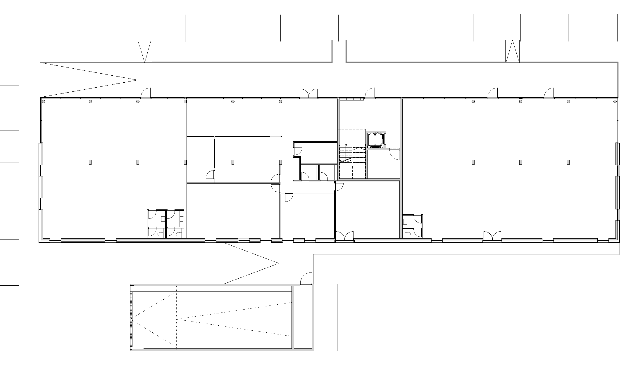
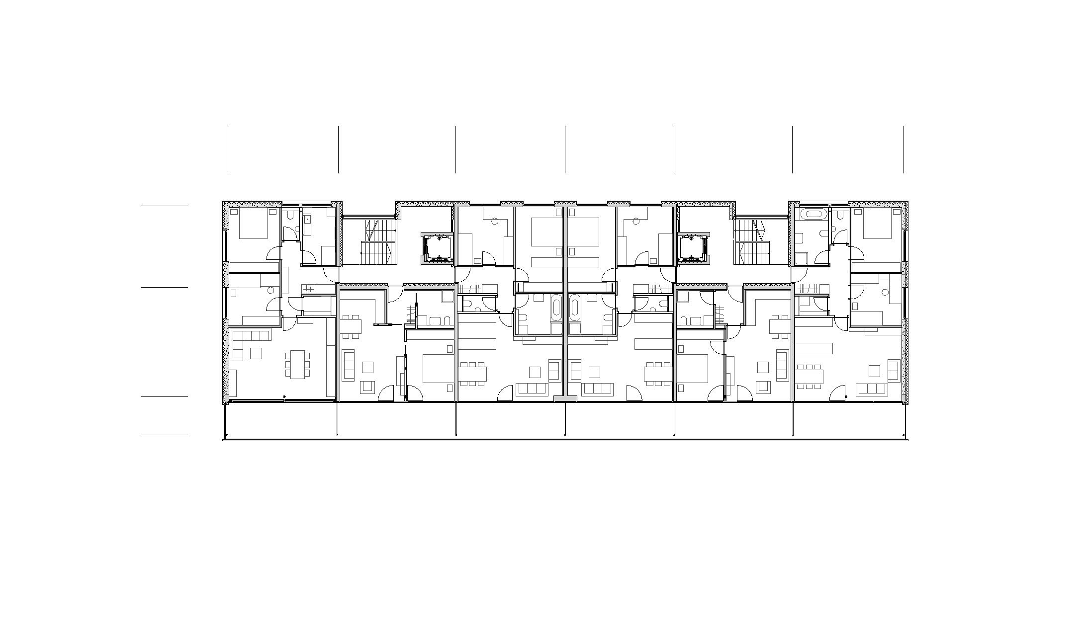
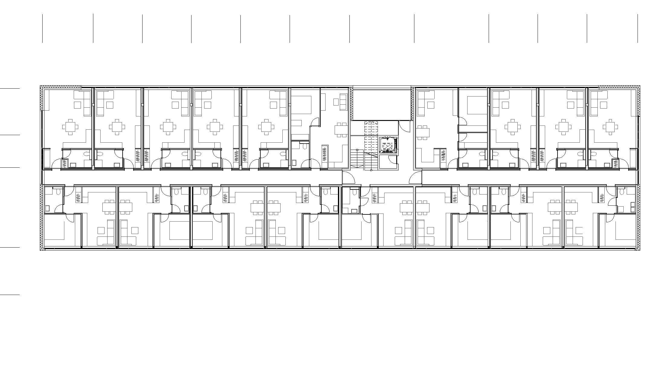
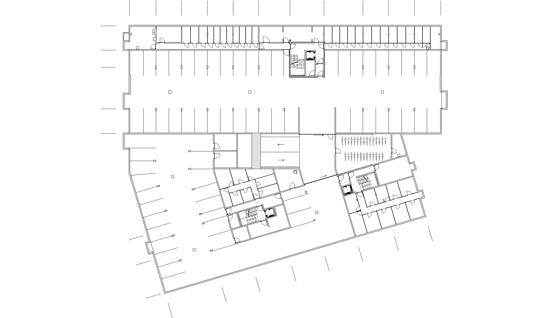
Projectfacts
n.b.ar. 2.907,4 m², GFA 2.221,2 m²,
GBV 8.474,6 m³
Energie 30,9 kWh/m²a

Projectdetails

Project support
Technical planning
Structural Engineering
Plan-und Technik Gesellschaft mbh, St. Johann/Pg.
Heating Ventilation and Sanitary Planning
GMI Ingenieure Messner Peter GmbH, Dornbirn
Copyrights
Photography
more Projects