Morscher, Mellau

Morscher, Mellau
Builder-Owner
Kornelia und Günter Morscher
Location
Mellau
Completion
2007
Projectfacts
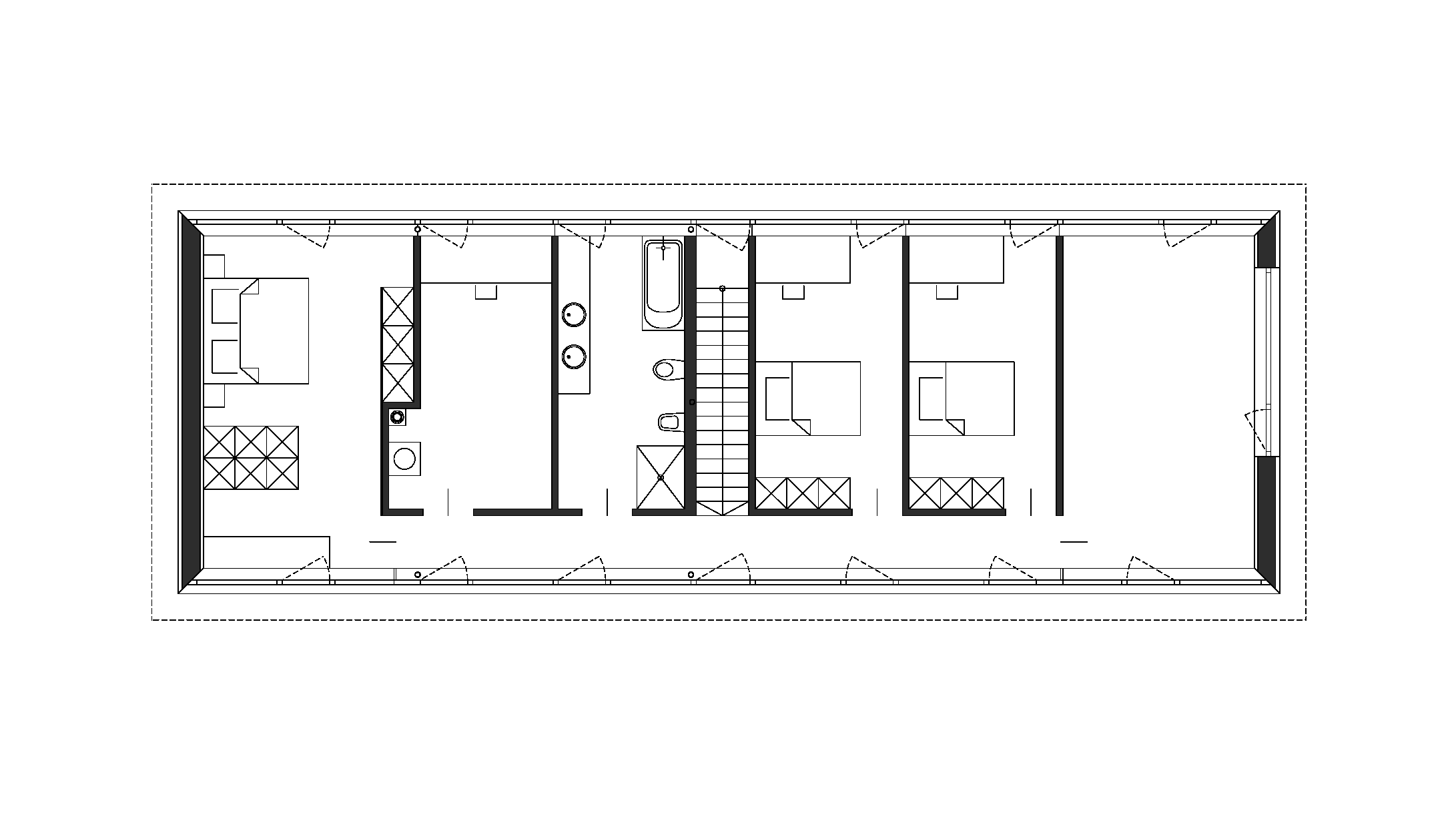
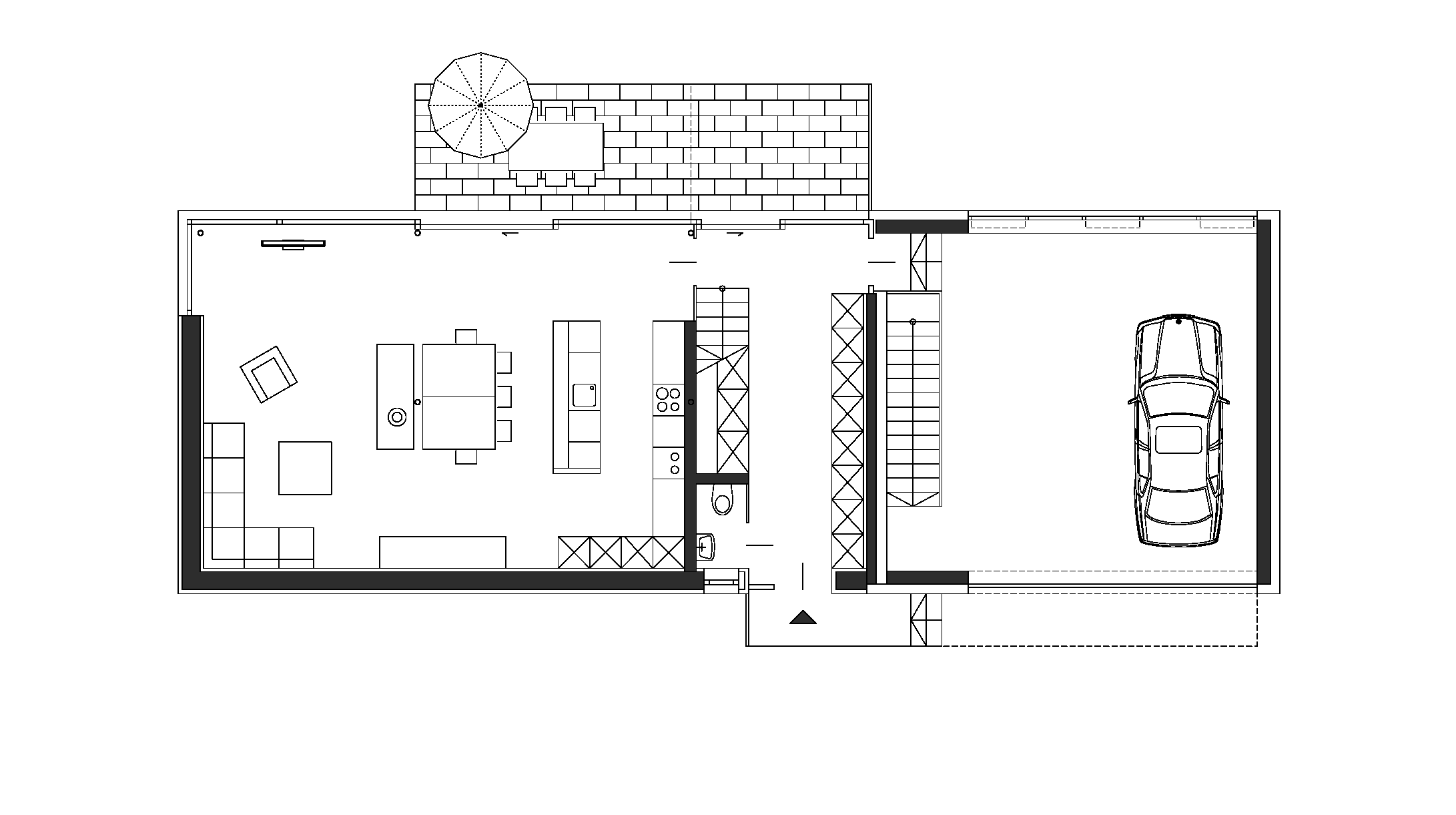
n.b.ar. 411,5 m², GFA 483 m²,
GBV 1.408 m³
Passivhaus
Morscher, Mellau
Morscher, Mellau
Morscher, Mellau
Morscher, Mellau

Projectdetails

Project support
Project Leader
Günter Morscher
Technical planning
Structural Engineering
DI Ingo Gehrer, Höchst
Heating Ventilation and Sanitary Planning
Geotechnical Engineering
DI Ingo Gehrer, Höchst
Certificates
Passivhaus, klimaaktiv Gold
Publikationen
Im Schatten der Kanisfluh – EFH Morscher Mellau
B-062Barbara Sternthal, Harald EisenbergerDie schönsten Passivhäuser, S.26-332011
EFH Günther Morscher
Z-179Laurence ReudesEco Maison Bois, Nov./Dez. 2010, Nr. 7, S.302010
Copyrights
Photography
more Projects