A new subversion in traditional Bregenzerwald architecture.
Is a flat roof right in the Bregenzerwald? This question occupied the architect and builder and all the community representatives when starting this project. After a detailed discussion process, it was finally agreed that in this situation, this roof shape is possible due to the structurally diverse neighbourhood.
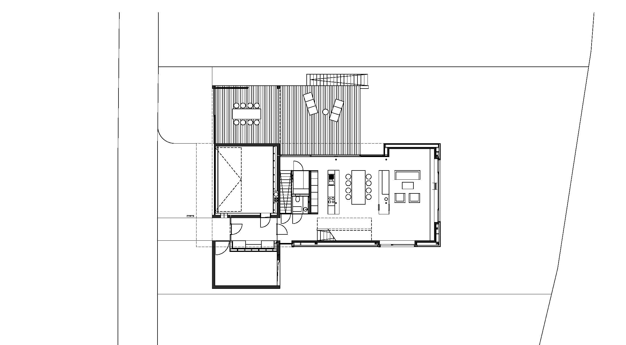
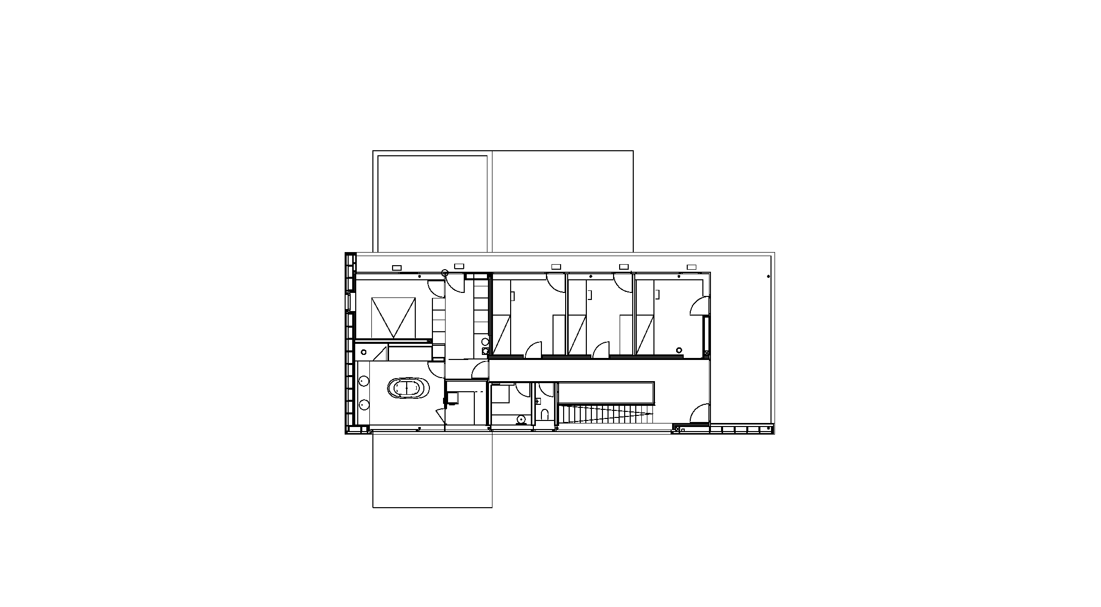
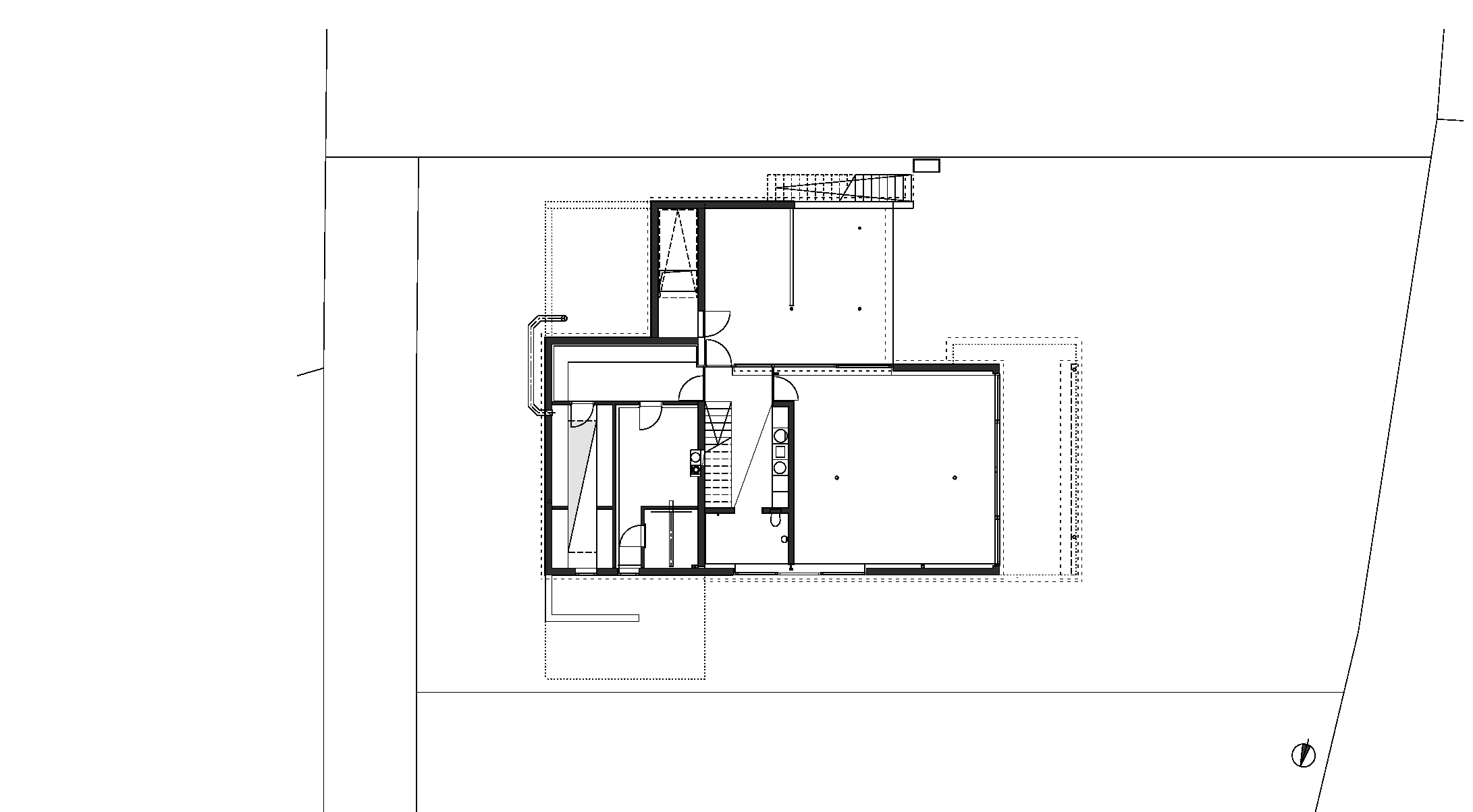
The quality of a house depends not only on the right roof shape. This house takes over many attributes of the Bregenzerwald house such as the elongated body, the materialisation, the relationship with the terrain and the simple and clear design that tries, despite its “strange” roof shape, to embrace dialogue with the architectural tradition.










