From the old we make the new.
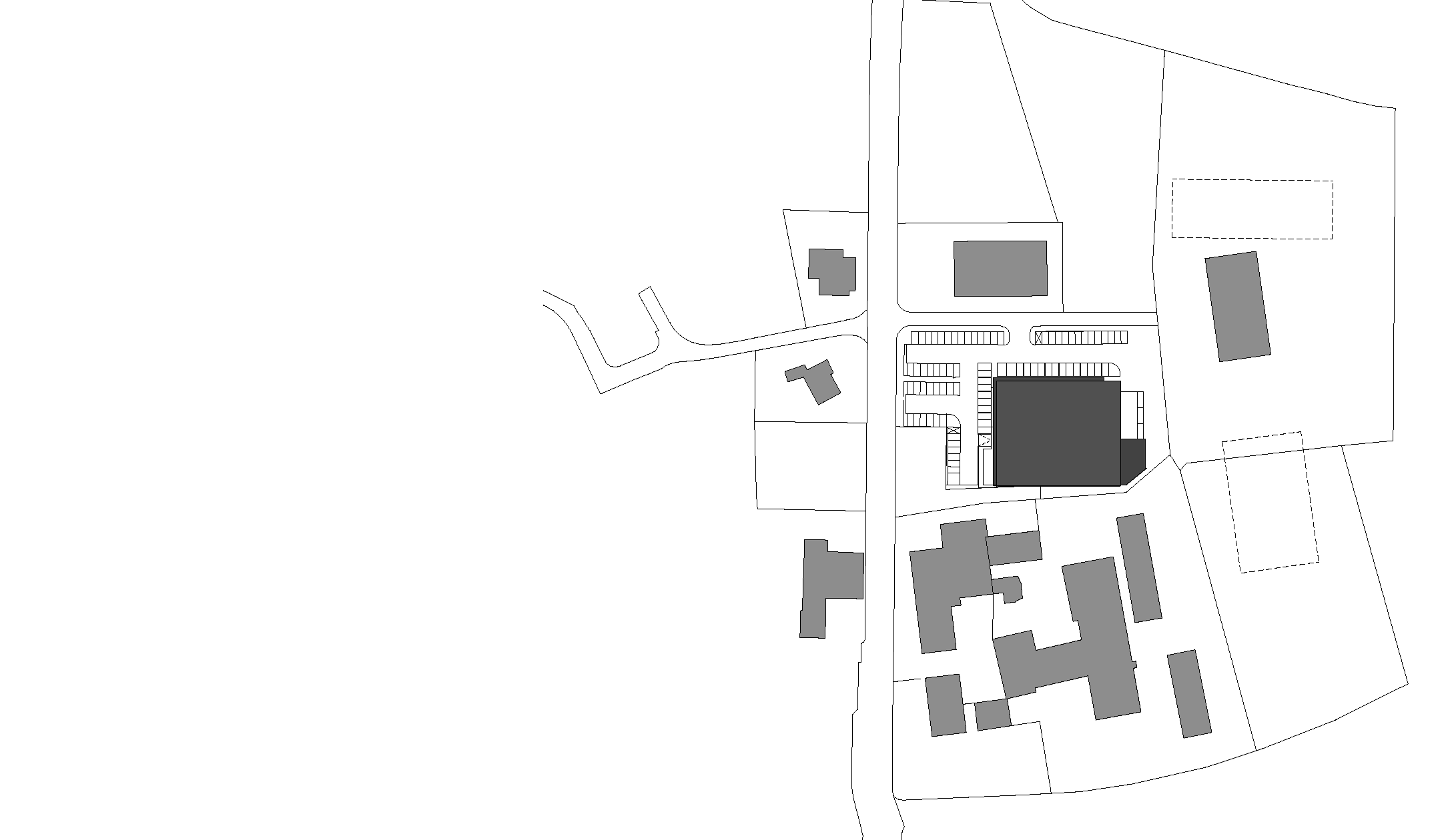
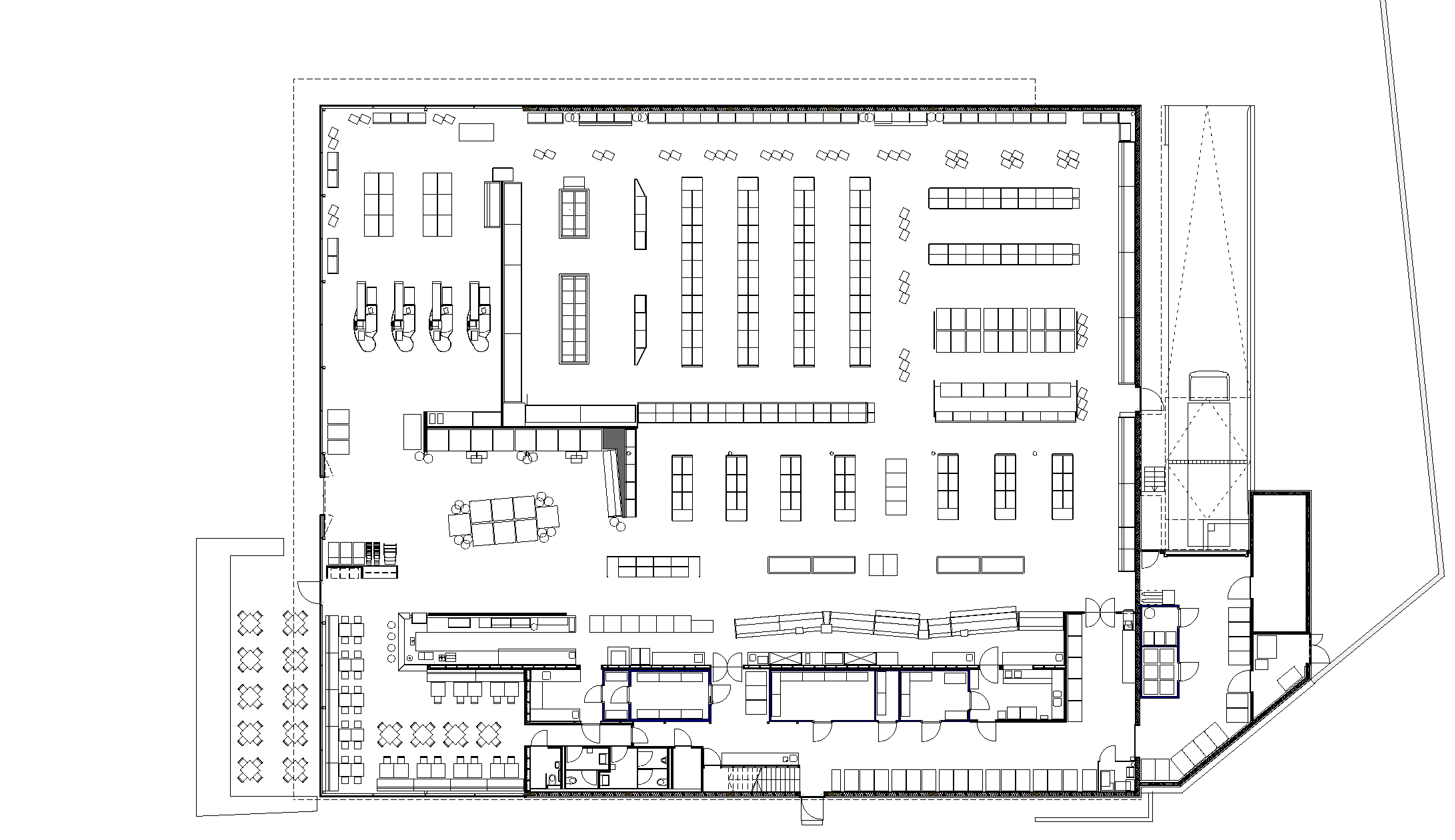
Originally built in the 1990’s, Sutterlüty in Lochau had to be rebuilt due to structural defects which had caused damage to the roof. The existing foundations had to be considered with regards to size and design making the load transfer points and roof spans for the new construction, fixed. The new generation Sutterlüty stores offer high-end market like spaces and a unified operating principle, while the external appearance of all stores are unique.
It was necessary to dissolve the ridged volume of the building, and once the covered space required was calculated, we designed an overhanging feature that became a design highlight, and an element of the facade structure. While the actual insulated outer shell is clad in either aluminium or glazing, the protruding roof overhangs are designed as lightweight, translucent, transparent shrouding that is back-lit at night. This allows the store to get the necessary attention because it is set back from the road.
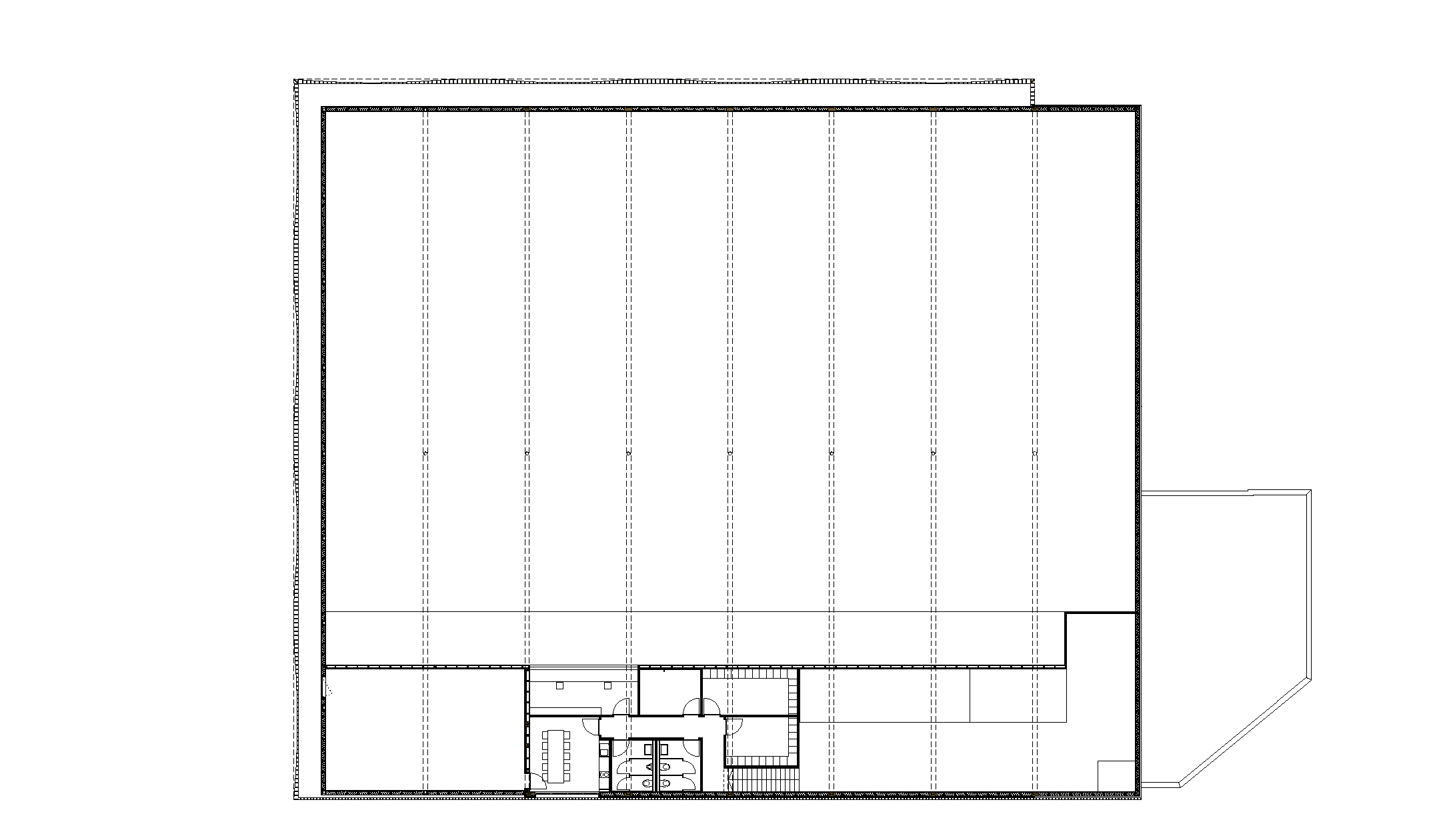
The actual construction is made of very simply held visible laminated beams on steel columns; the outer shell consists of highly thermally insulated, prefabricated timber frame elements. For the design of the aluminium panelling on the ground floor, the artist Annabell Stübe was brought in, we derived the motif from her artistic forest photographs.







