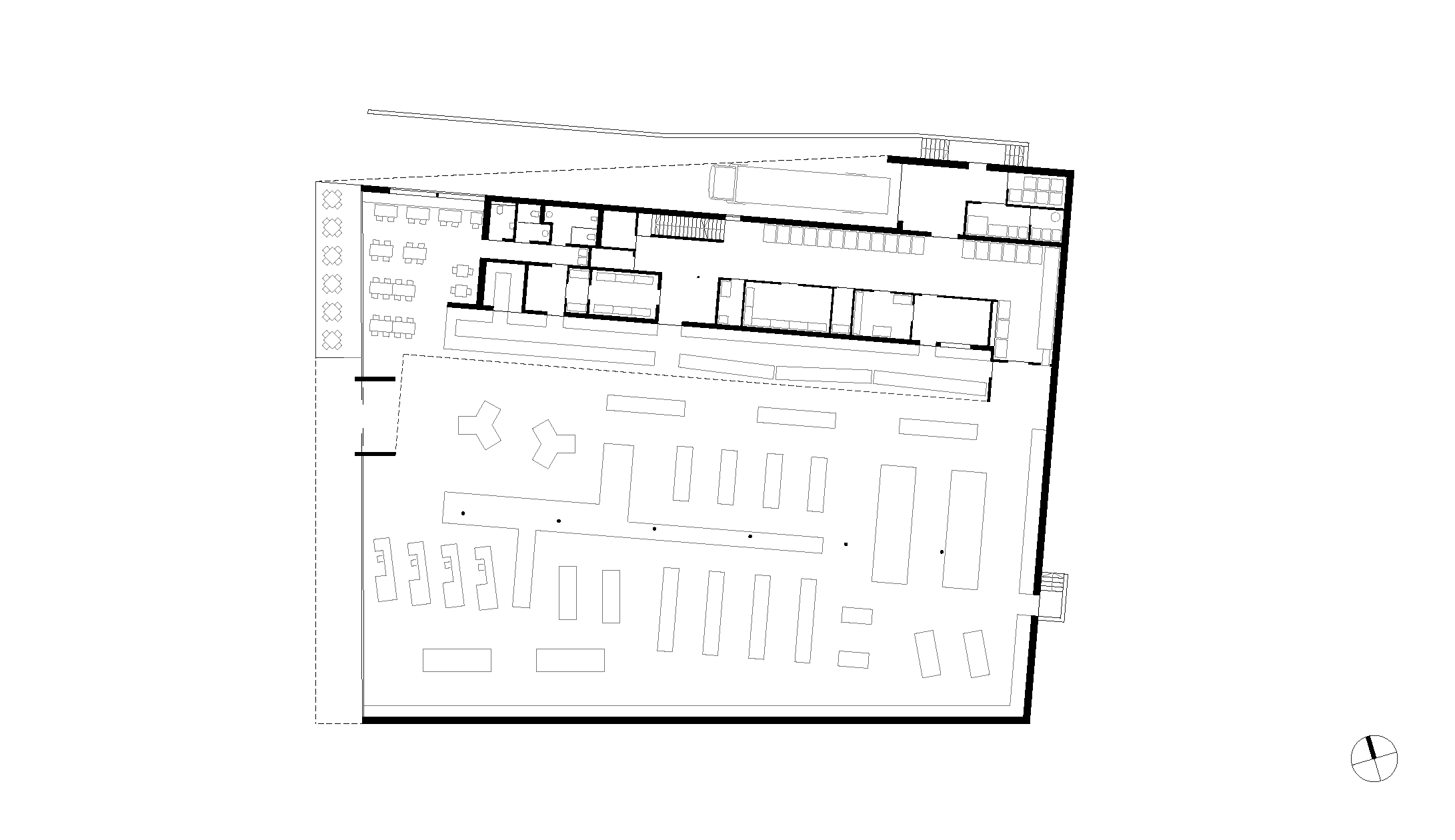
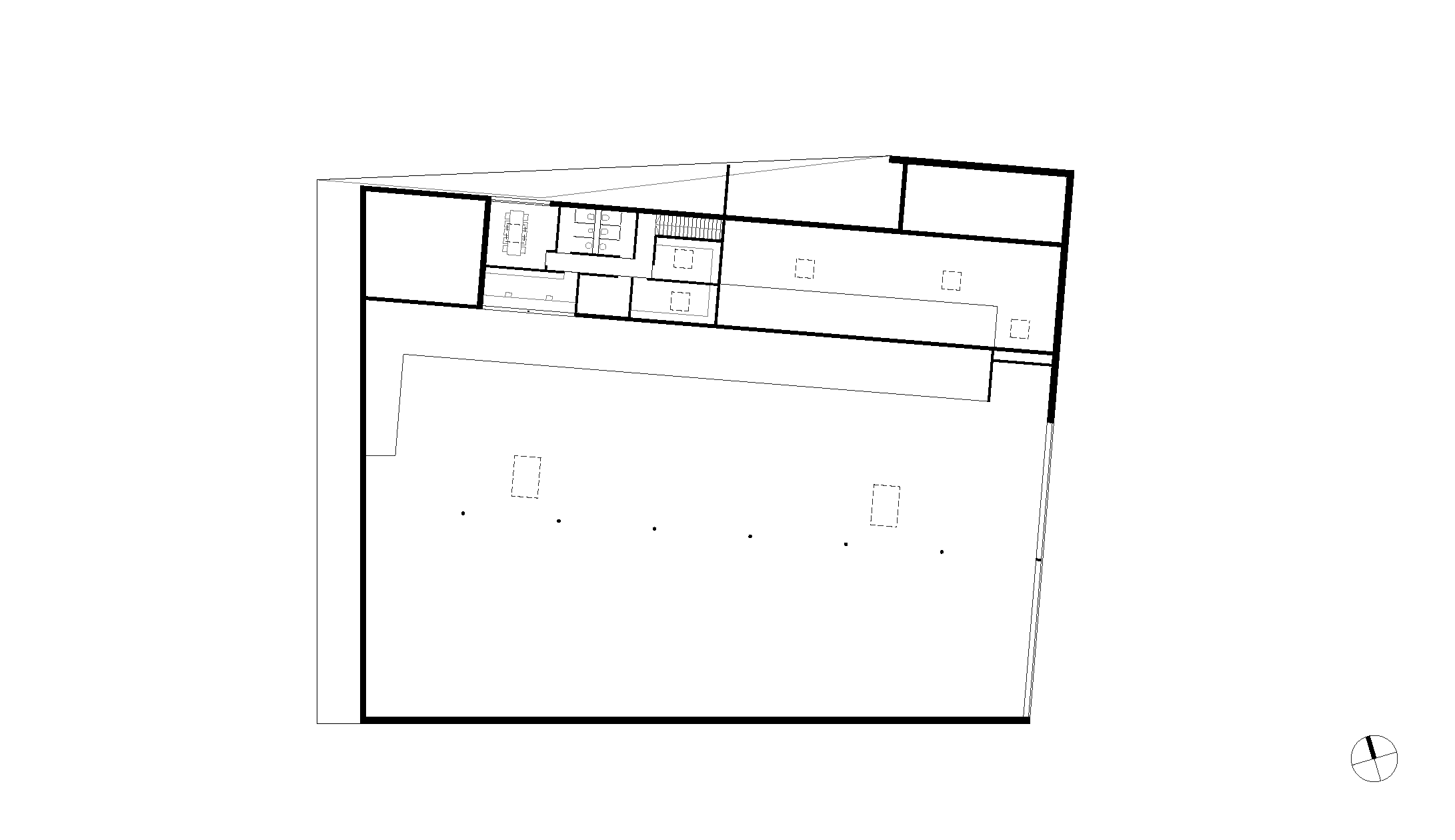
Sutterlüty, Rankweil

Sutterlüty, Stiegstrasse – Rankweil
Builder-Owner
Sutterlüty Immobilien GmbH & Co KG, Egg
Location
Rankweil
Completion
2014
Projectfacts
n.b.ar. 1.739 m², GFA 1.908 m²,
GBV 12.250 m³
Energie 39 kWh/m²a
Sutterlüty, Stiegstrasse – Rankweil
Sutterlüty, Stiegstrasse – Rankweil
Sutterlüty, Stiegstrasse – Rankweil

Projectdetails

Project support
Project Leader
Cost Planning
Bmstr. Ing. Schmelzenbach Reinhard, Riefensberg
Building Site Manager
Bmstr. Ing. Schmelzenbach Reinhard, Riefensberg
Technical planning
Structural Engineering
Mader & Flatz Ziviltechniker GmbH, Bregenz
Heating Ventilation and Sanitary Planning
Copyrights
Photography
more Projects