A gem on the lake in ever-changing foliage.
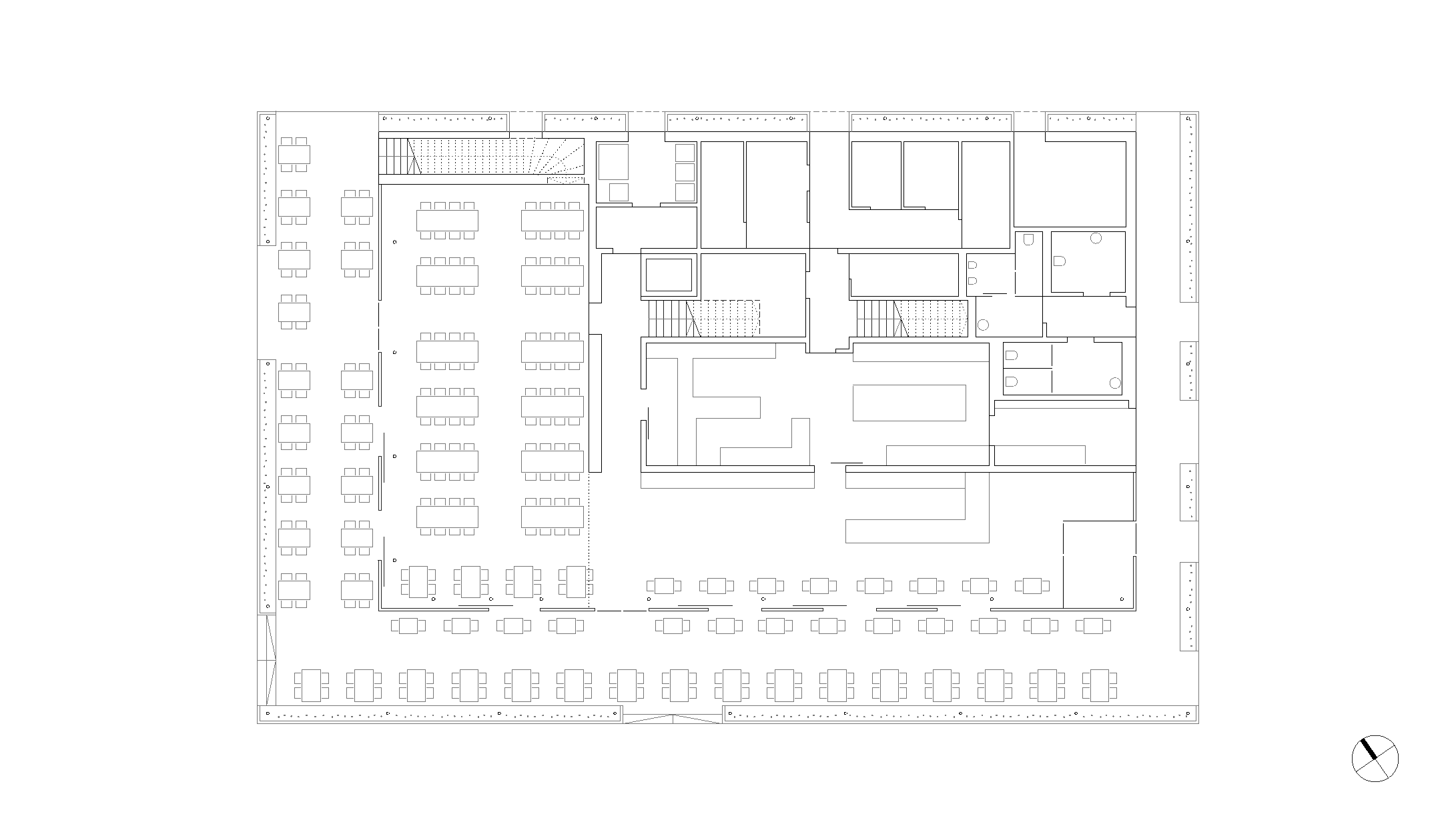
A richly planted ribbon of vegetation meanders between rugged molasse rocks and the inky blue, reflective surface of Lake Constance. Uferpark West stretches northwest of Überlingen’s historic town centre; its generously designed play and recreation areas were created as part of the Landesgarten-schau 2020. A versatile timber gem provides catering for its visitors and weary explorers of the long-distance cycle path; during the exhibition period, it can be adapted as a district pavilion.
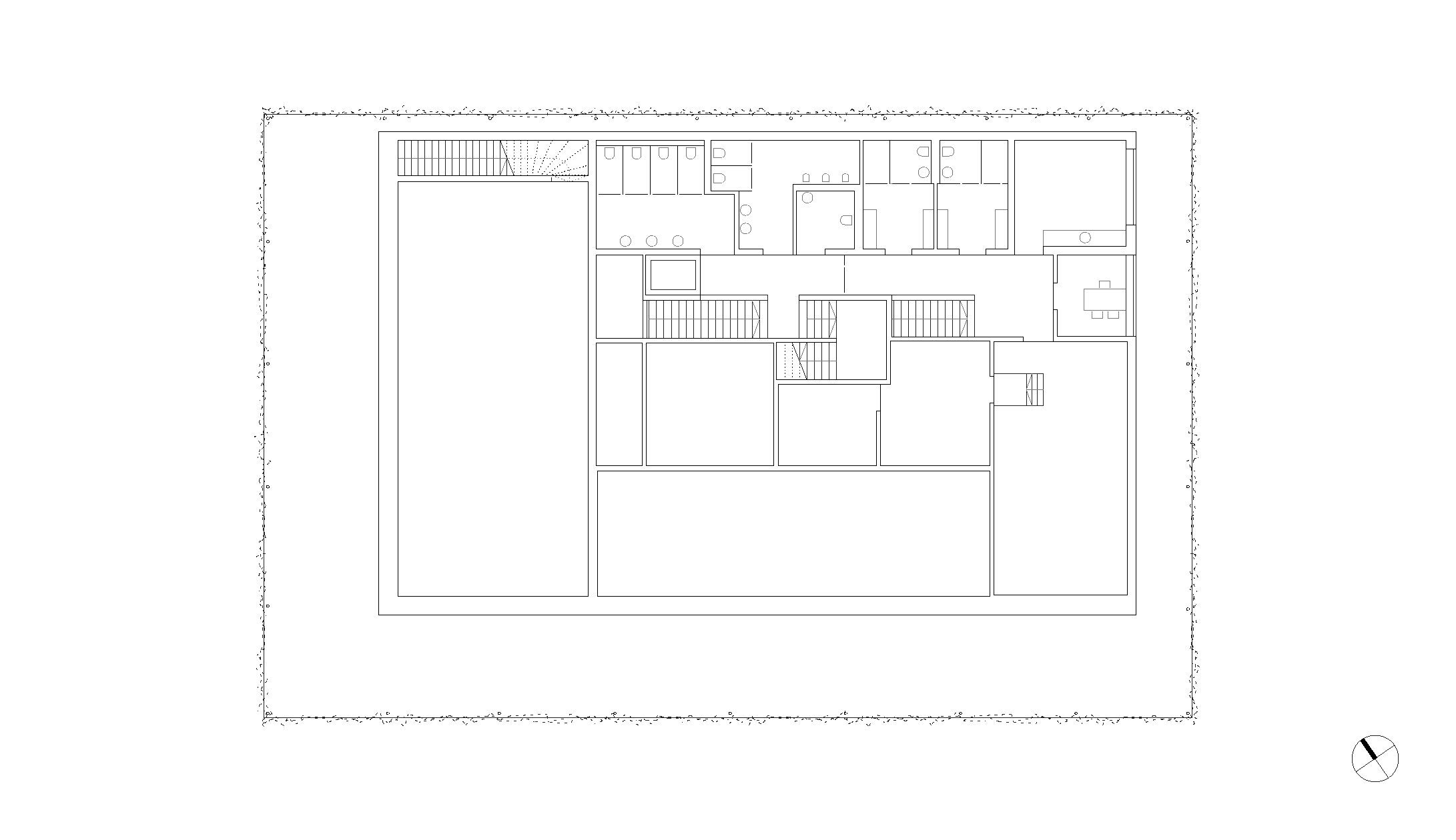
The two-storey building sits on the north-eastern edge of the plot, leaving enough space to the south and west for sun-flooded terraces with a wide view over the water. The large, glazed guest room also opens up to the warm afternoon light, while the kitchen and service facilities are organised as a compact core on the closed rear side facing the railway and road routes. To keep the footprint of the volume as small as possible, the sanitary, staff and technical rooms are located on the upper floor, which is fully accessible, and on the extensively greened roofscape the bar deck offers a quiet lounge area with a panoramic view.
The building was designed as a sustainable timber construction and built on the basis of ecological guidelines. Only the foundations are solid, the wall and ceiling elements made of cross-laminated timber are insulated with mineral wool and clad on their outside with fine vertical formwork made of silver fir. A filigree structure of suspended steel tubes embraces the entire building as a space-creating element and is enclosed by a permeable stainless-steel mesh that serves as a climbing framework for various types of climbing plants. The seasonal change in the density and colour shading of the foliage creates organically changing views that place the pavilion in a lively dialogue with the surrounding parkland.













