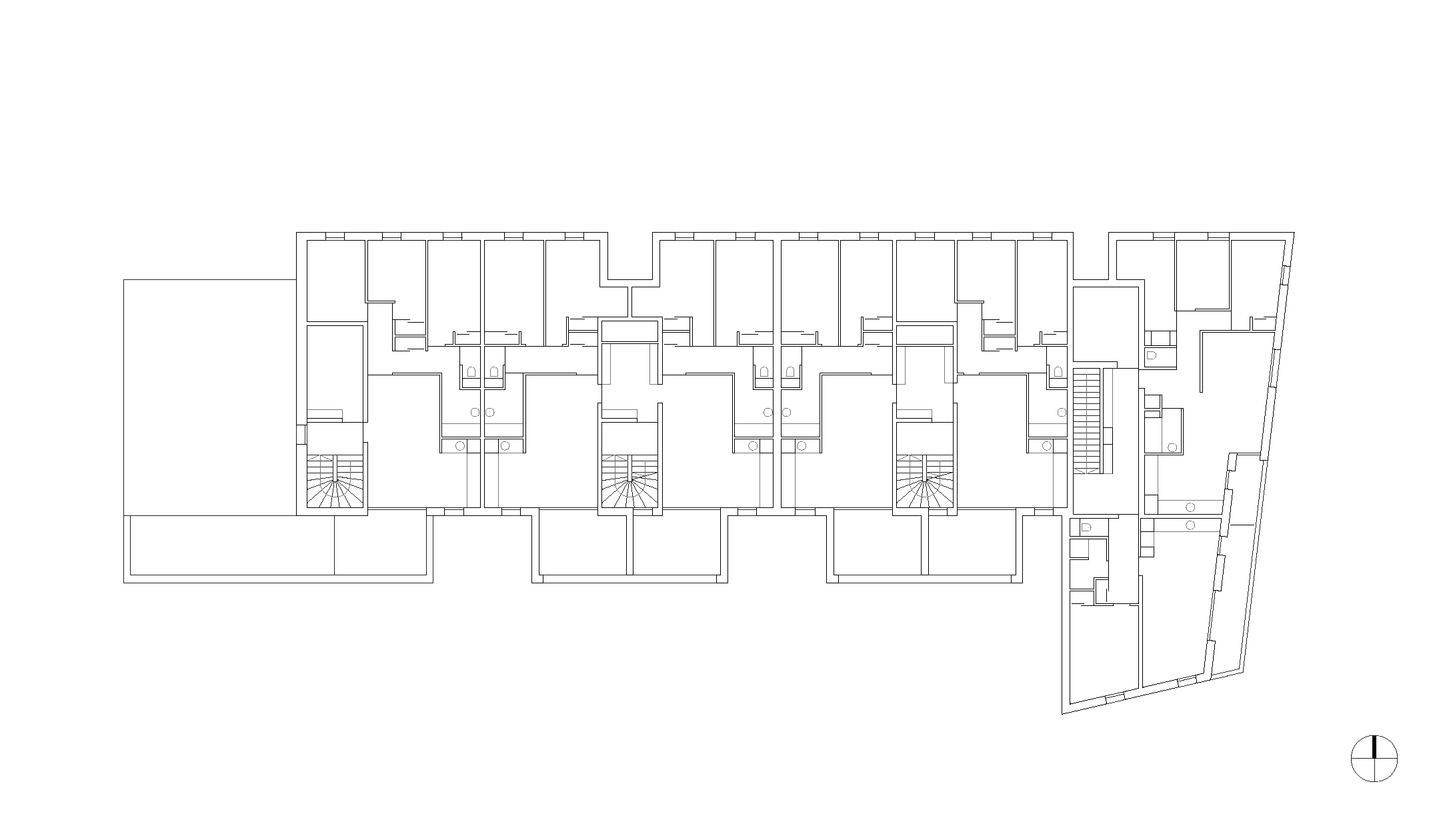
Z.A.C. du Val de Sermon, Mordelles

Z.A.C. du Val de Sermon, Mordelles
Builder-Owner
Archipel Habitat, Rennes
Location
Mordelles
Completion
2016
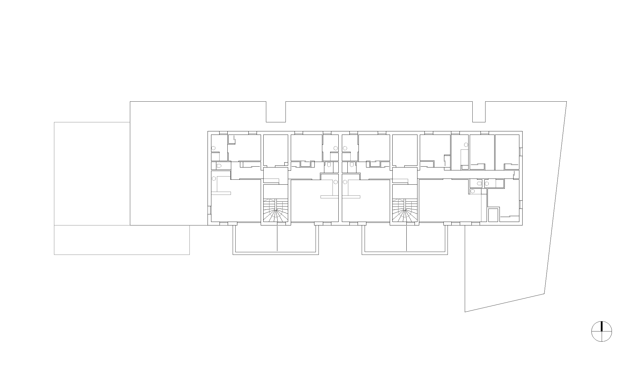
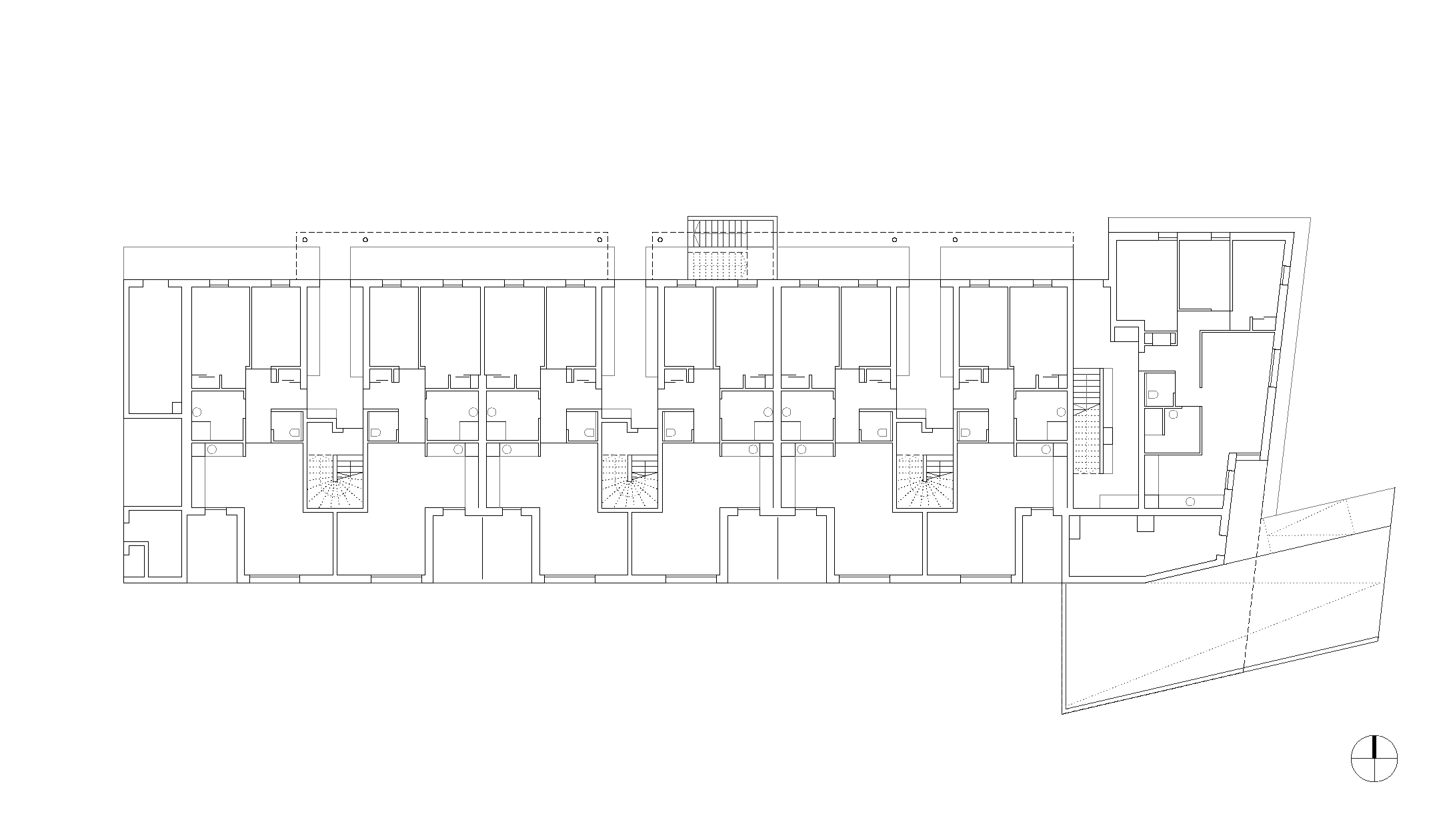
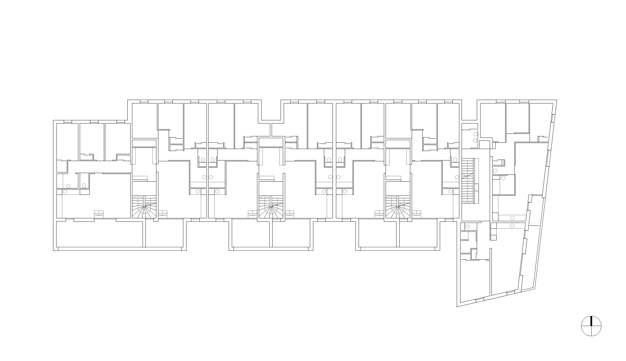
Z.A.C. du Val de Sermon, Mordelles
Z.A.C. du Val de Sermon, Mordelles
Z.A.C. du Val de Sermon, Mordelles

Projectdetails

Project support
Building Site Manager
Baukoordination
Michael Dutay, Arbatt, Saint Grégoire
Cost Planning
CMB Philippe Morançais, Le Mans Cedex 2
Technical planning
Structural Engineering
Certificates
Copyrights
more Projects