An expansion for a building and carpentry company.
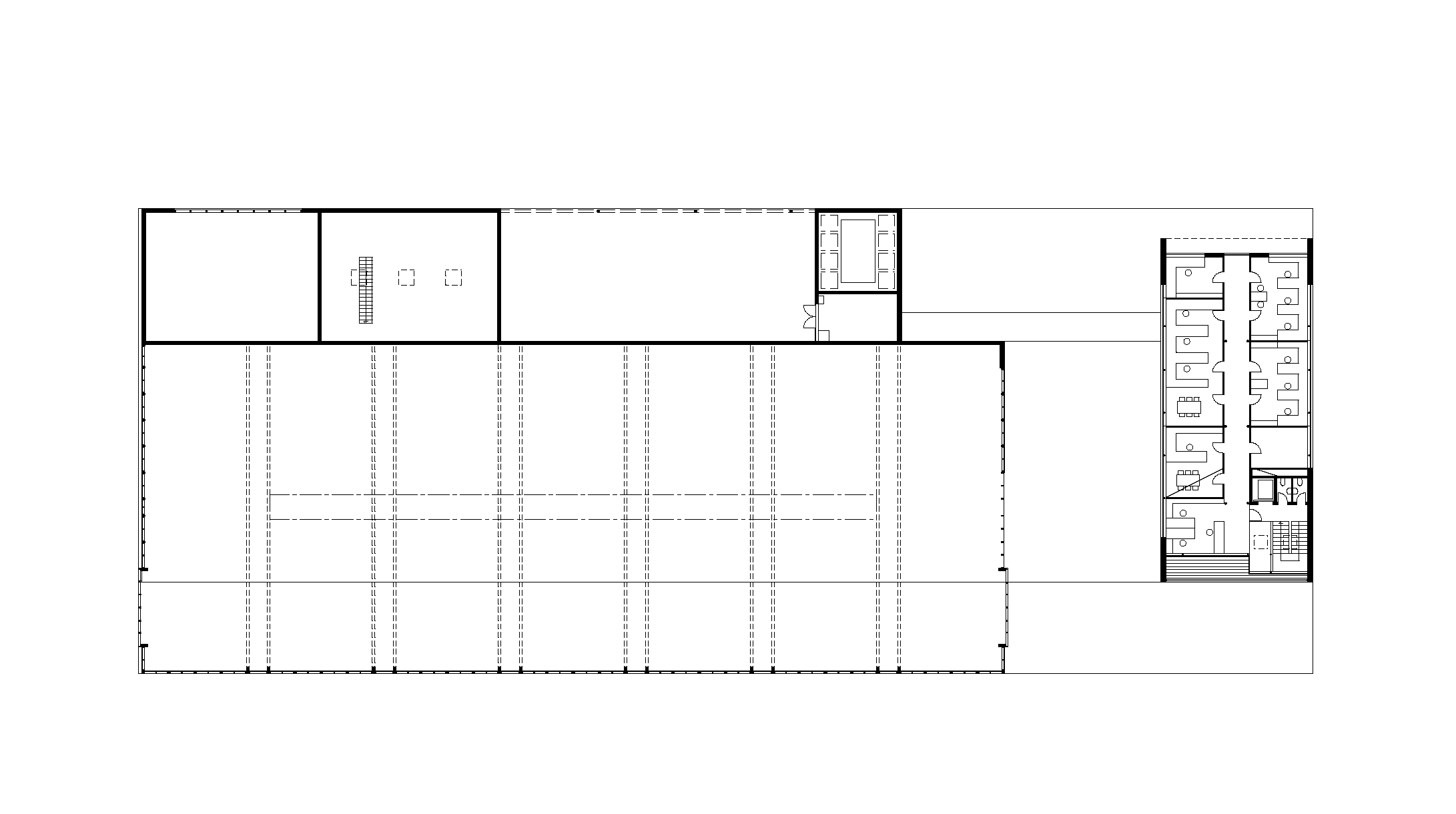
Dobler Holzbau is a master builder and carpenter in Vorarlberg, Austria. The new company headquarters is located in the Interpark Focus area in Röthis. The project consists of the office building, the assembly hall for carpentry, the building yard as well as a metal workshop and storage rooms. The possibility of an expansion of operations is possible to the west. The office building is a massive supporting frame made of concrete slabs on steel columns, with highly insulated facade elements in prefabricated timber construction with copper sheet cladding.
The carpentry hall is a pure timber construction made of laminated timber beams that are stretched across the hall, and a purlin construction is used between the main girders. The facade cladding, made of timber triple-layer boards, was colour-coated at the request of the client. The buildings are heated with the central woodchip plant. The office building is additionally equipped with a basic ventilation system.






