Eine neue Generation individuell konzipierbarer Holzfamilienhäuser.
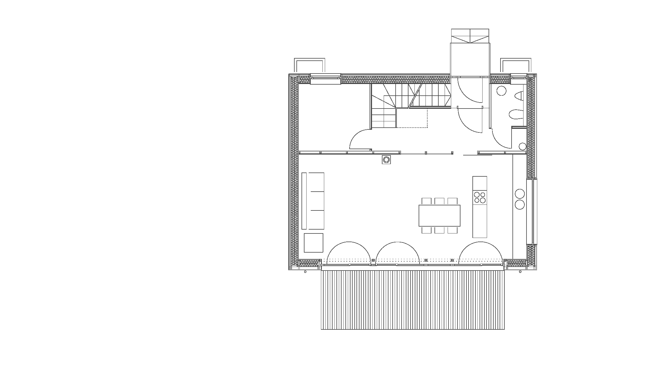
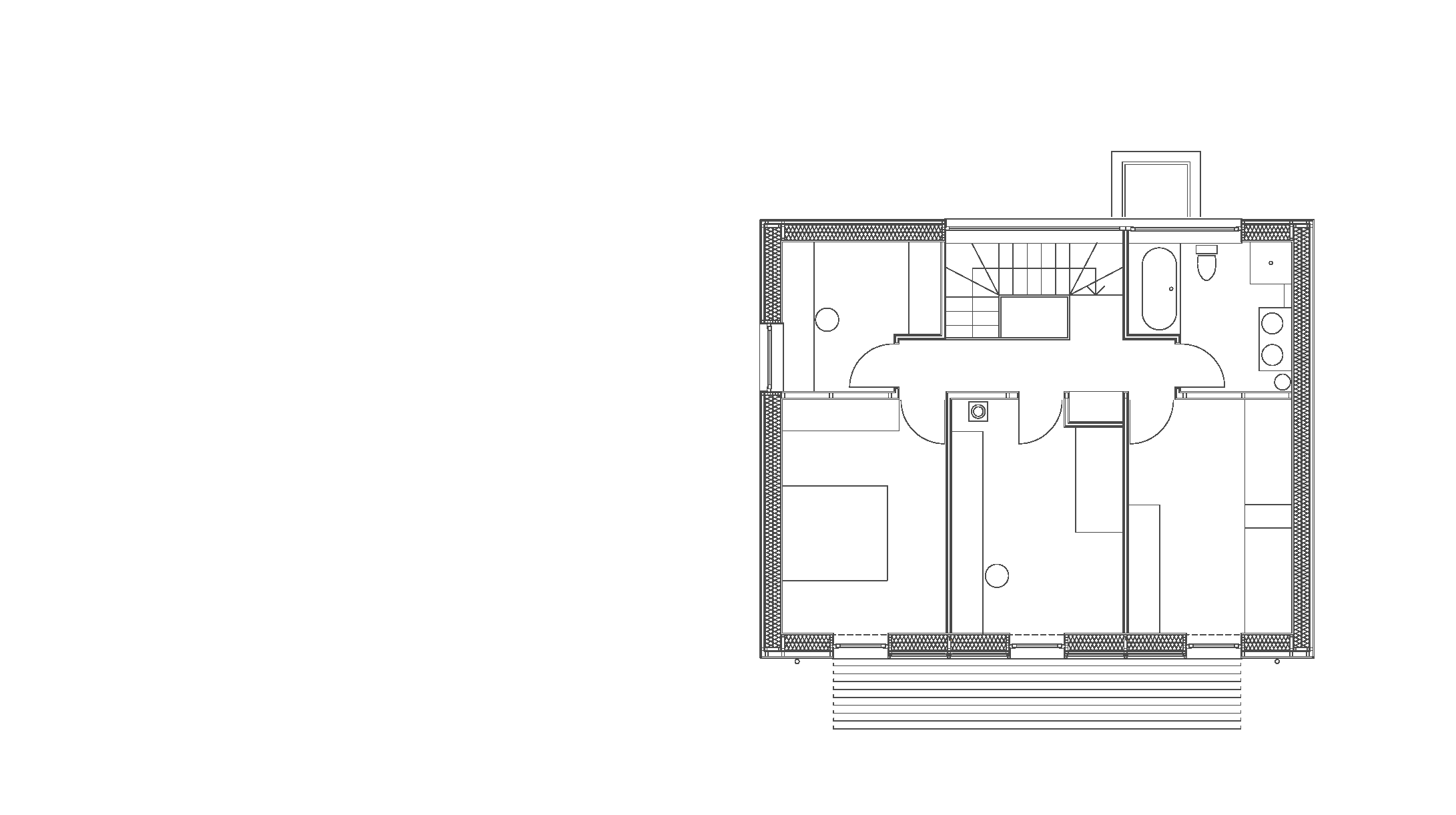
Das Haus Burger ist ein Pilotprojekt für die neue Generation von Einfamilienhäusern, die ich zusammen mit dem Zimmereibetrieb Berchtold Ges.m.b.H. in Wolfurt entwickelt habe. Die Grundlage bildet ein einfaches, flexibles Bausystem, das aus einem Detailkatalog besteht, womit Häuser ganz individuell konzipiert werden können. Dabei ist der Entwurfsvorgang nach wie vor notwendig, da es keine Typenhäuser gibt, sondern jeder Bau nach den Erfordernissen des Grundstückes, der Um- gebung und des Bauherrn entwickelt wird. Die Details sind auf Niedrigstenergie bzw. Passivhaus- standard hin konzipiert, d.h. es kann damit eine wärmebrückenfreie Gebäudehülle mit K-Werten um 0,1 W/m2K und einen NLQ-Wert (Luftdichtigkeit) von 0,5 errichtet werden.
Das Haus Burger steht in einem Einfamilienhausgebiet und ist als Nachverdichtungsprojekt auf das elterliche Grundstück gebaut. Dabei steht das Haus an der Ostseite direkt an der Grundstücksgrenze, womit durch einen direkten Zubau eine weitere Wohneinheit errichtet werden kann.
Das einfache Niedrigenergiehaus ist auf Grund seiner Geometrie sehr kompakt und ermöglicht dadurch die Beheizung über Wohnraumlüftung bzw. kleinen Wandhypokausten in den einzelnen Räumen im Obergeschoß.
In das Heizkonzept ist ein Holzofen integriert, der im Wohnbereich steht (direkte Beheizung) und der so- wohl die Zuluft als auch die Hypokausten erwärmt. Der Keller ist gänzlich unbeheizt. Die Sonnen- kollektoren dienen zur Warmwasserbereitung und sind in die Fassade eingebaut.







