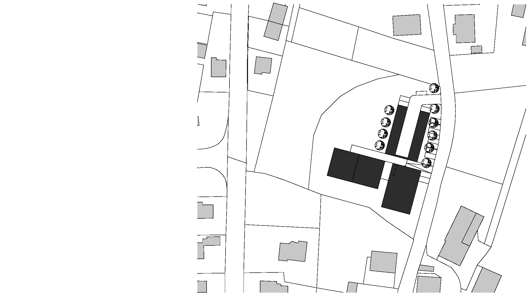
Die Dörfer im unteren Rheintal sind traditionell Reihendörfer mit alten Bauernhäusern in Holz. Die Wolfurter Hofsteigstraße, an der diese Wohnanlage steht, ist nach wie vor geprägt davon. Der alte Straßenverlauf und mehrere alte Bauernhäuser an dieser Straße sind erhalten. Die durch diese Randbedingungen (Lage an der alten Straße) notwendige Materialisierung hat die Wohnanlage herausgehoben aus dem Alltagsbrei der heute gängigen Wohnbaugestaltungen. Die Anlage ist Beweis, dass es trotz niedriger Baukosten gestalterische Möglichkeiten gibt.
Bei der Anlage wurde der Situation entsprechend aus der Größe der Volumen, ihrer Lage zueinander und der Berührung mit dem Gelände eine kompakte Figuration geschaffen, die die Beiläufigkeit der Bebauung zumindest an diesem Ort verfestigt. Die Lage der gedeckten Parkplätze bereichert dieses städtebauliche Konzept. Das heißt, die Wohnanlage nimmt in ihrer Präsenz auch eine übergeordnete ästhetische Aufgabe wahr. Wohltuend, dass ein Teil des Grundstückes aufgrund des Freihaltebereiches der Hochspannungsleitung unbebaut geblieben ist. Von Westen hat man einen Blick auf einen dünn bebauten Hang mit größeren Distanzen zwischen den Objekten, welche sich dem alten Gefüge anpassen.
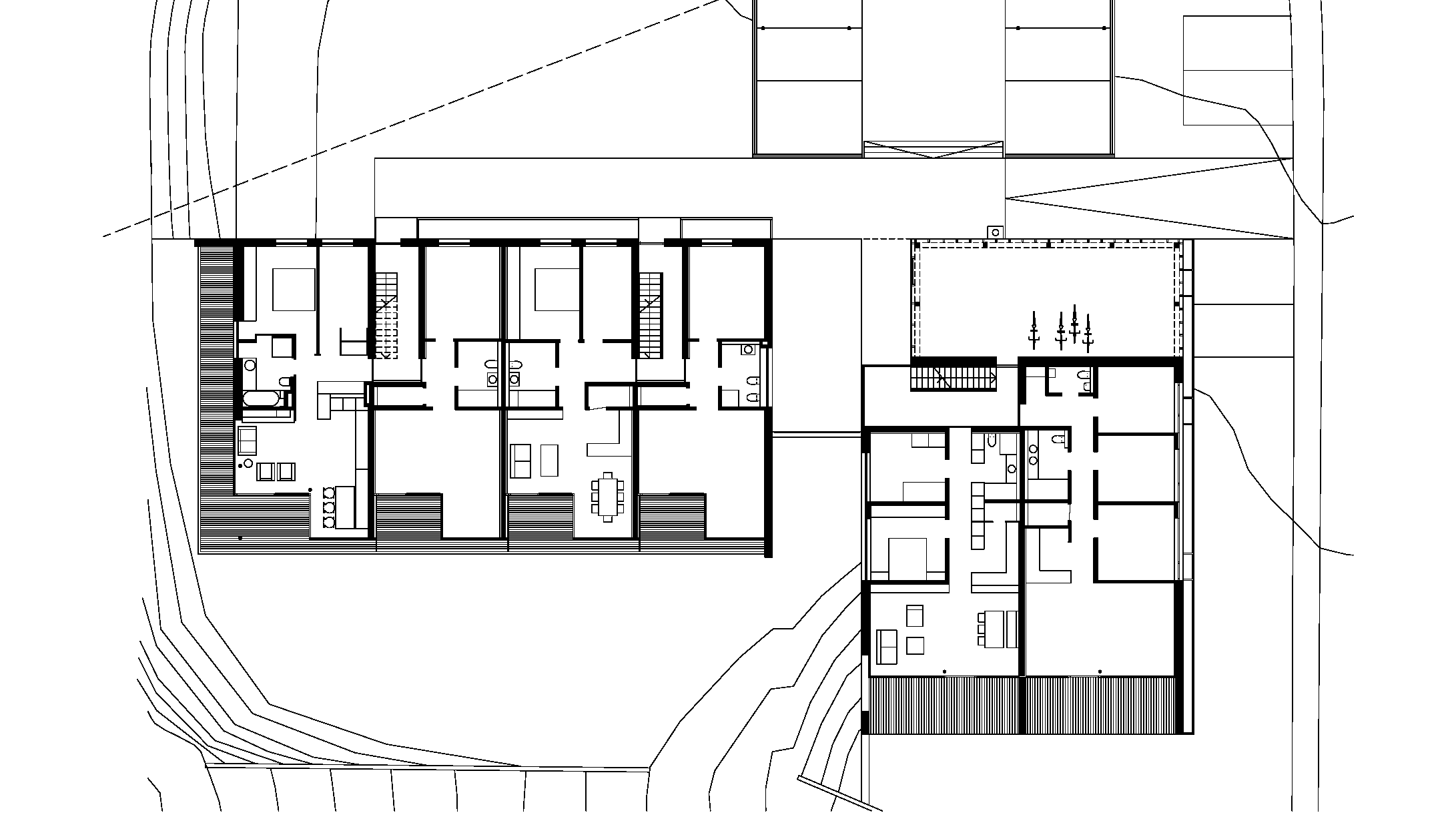
Der Neubau ist eine „Verneigung an die Vorfahren“ – die alte Schreinerei die hier stand, wird nicht schmerzlich vermisst, der Neubau füllt diese Lücke – fast unbemerkt.






