Modernes modulares Design errichtet in 8 Monaten.
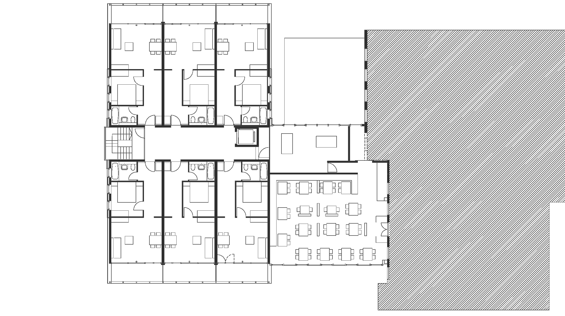
25 Kleinappartements, Speisesaal, Hallenbad und Fitnessräume wurden mit einem fünfgeschossigen Trakt talseitig an den bestehenden Hotelkomplex angefügt.
Die Konstruktion ist eine Betonschotenbauweise, außen mit Holz verkleidet (Lärche sägerauh). Gut belichteter Mittelgang, großzügige Zimmer. Die an beiden Giebelseiten angefügte Schicht der Balkone ist in leichter, struktureller Holzbauweise ausgeführt.
Die traditionelle Haustypologie wird so transformiert, dass der Kulisseneffekt und die Disproportionalität der meisten Hotelbauten des internationalen Alpin-Stils vermieden wurde. Bauzeit acht Monate.







