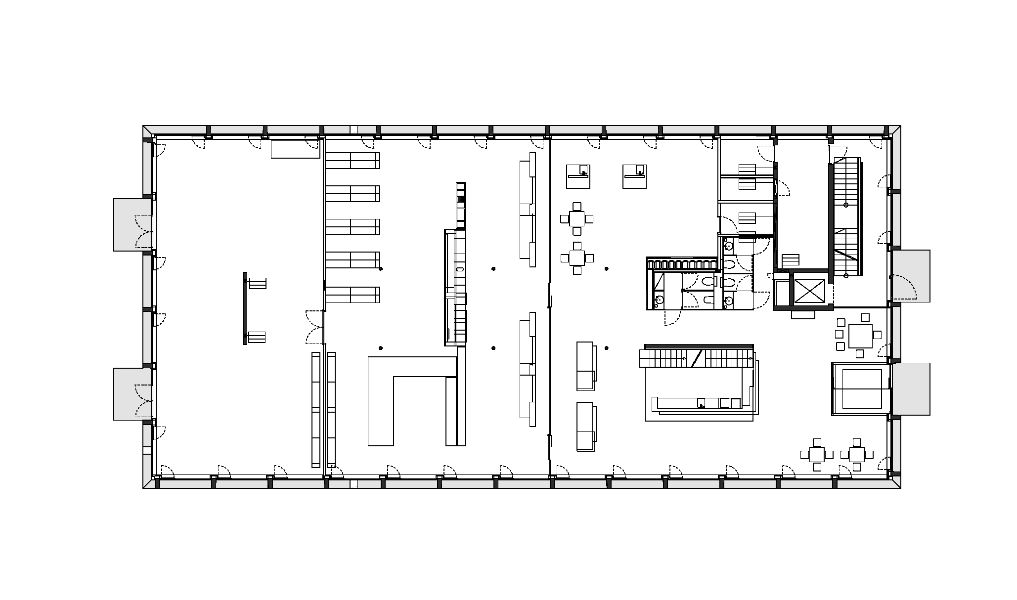
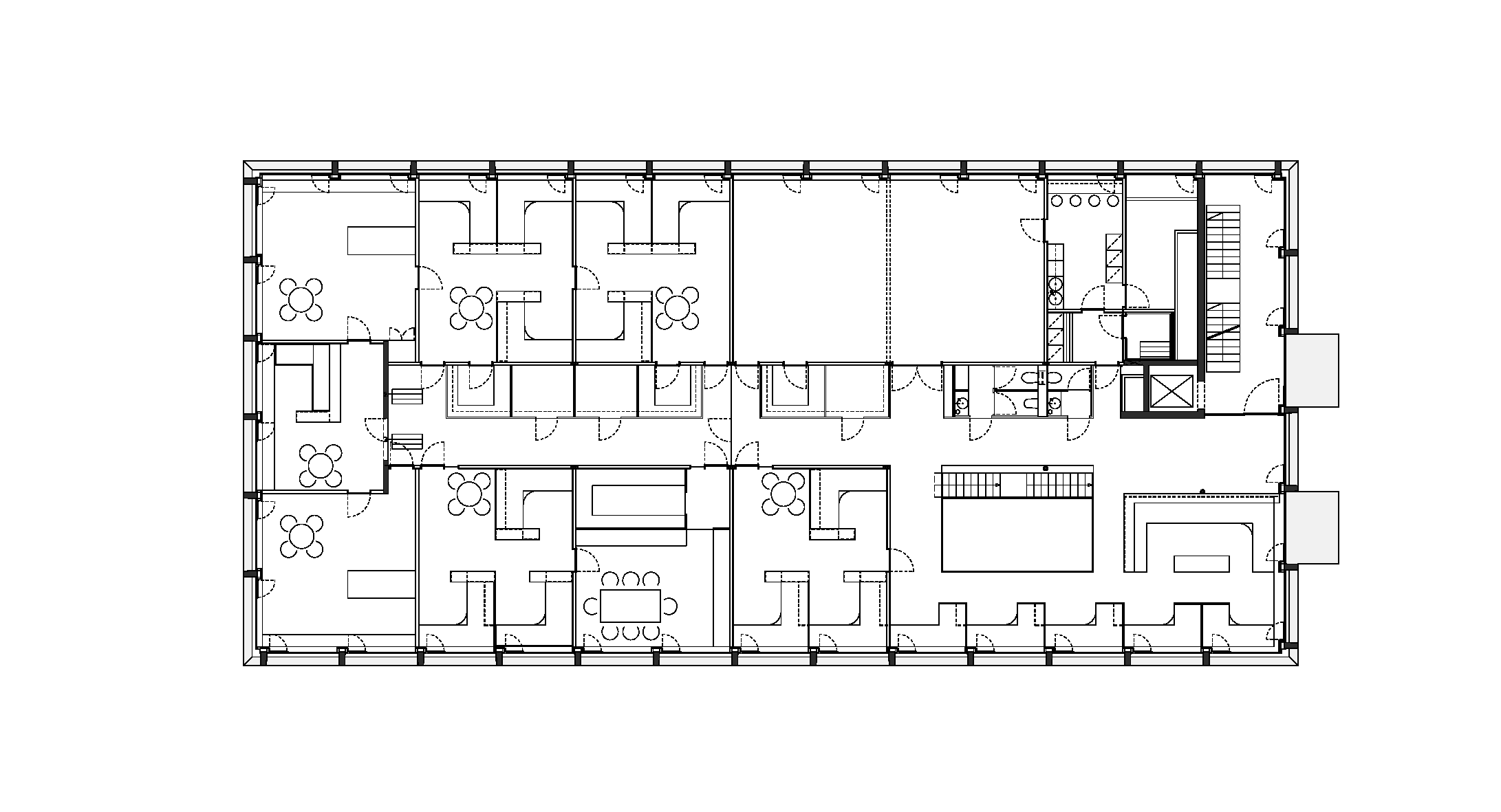
Offene, flexible Arbeitsbereiche.
Im Ensemble mit dem bereits vor drei Jahren fertig gestellten Betriebsgebäude der Firma Jura bildet der Neubau des Impulszentrums Interpark Focus am Eingang des 120.000 m² großen Betriebsgebietes Interpark Focus den verwaltungstechnischen Mittelpunkt. Direkt über den Platz erschlossen gliedert sich der Neubau formal in einen dreigeschossigen Baukörper, einer verbindenden Glasspange und ein mit sechs Geschossen – die umgebende Bebauung weit überragenden Turm, in dessen Erdgeschoss sich ein Restaurant befindet.
Die an der Fassaden charakteristisch in Erscheinung tretenden dreischaligen Stahlbeton-Fertigteile tragen zusammen mit wenigen Stahlstützen im Inneren des Hauses die Stahlbetondecken, was eine freie Grundrisseinteilung und somit hohe Flexibilität ermöglicht. Neben einer Kühlung wurde das Gebäude mit einer Anlage zur kontrollierten Be- und Entlüftung ausgestattet.






