Entwerfen mit Holz als weg zu mehr Unterscheidung und Differenzierung.
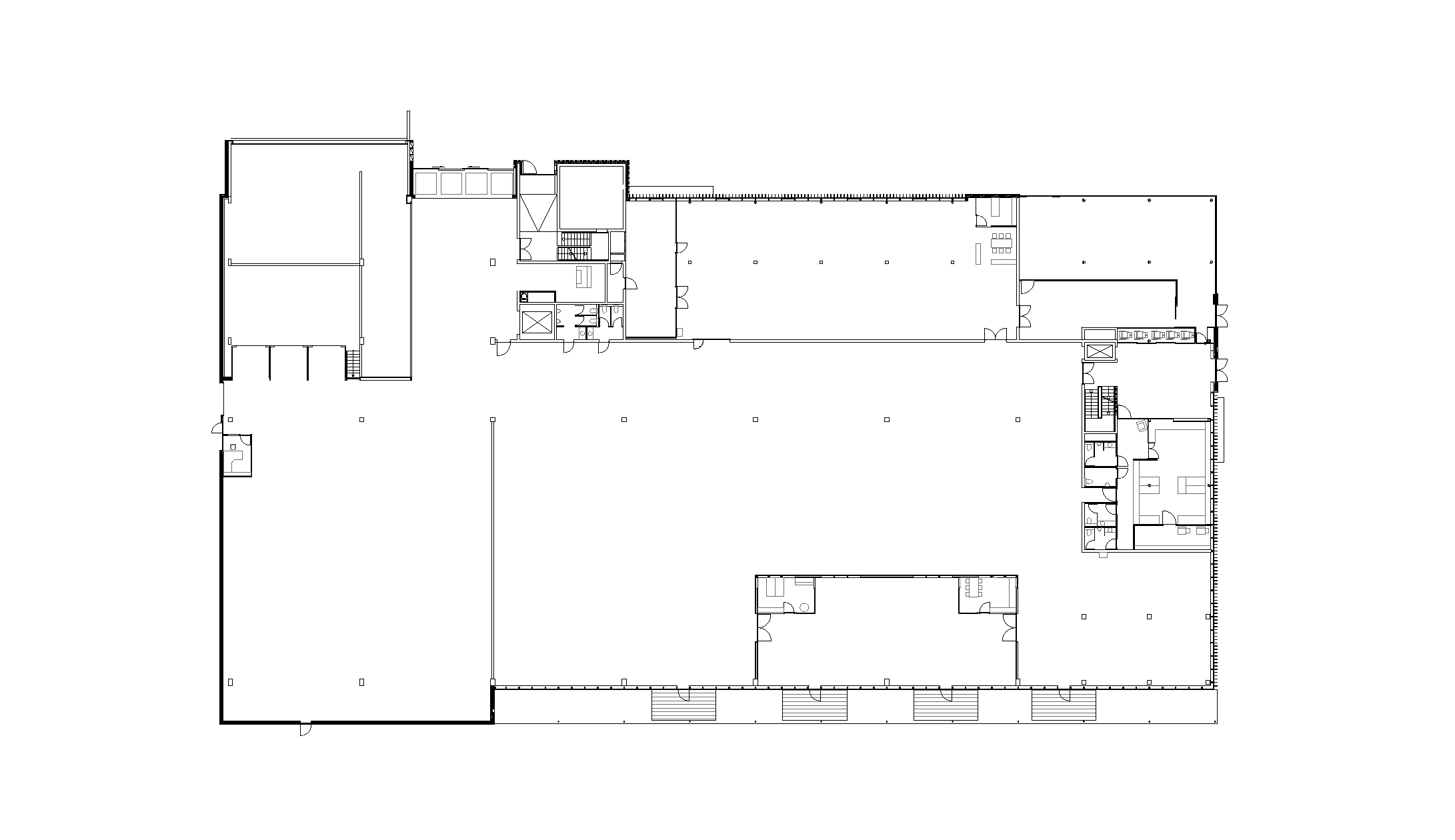
Die Tischlerei mit der dazugehörenden Verwaltung sowie die neue Energieversorgung werden westlich an den Bestand neu errichtet. Es entsteht zwischen Neubau und Bestand eine neue Personenerschließungszone, und damit die Möglichkeit, die derzeitige Vermischung zwischen Warenfluss und Personenfluss zu vermeiden. Kernidee für die Endausbaustufe ist die Schaffung eines großzügigen „Dorfplatzes“ mit verschiedensten Funktionen. Dieser verkehrsberuhigte besonnte Bereich dient als großzügige Kommunikationszone. An der Südgrenze des Grundstückes westlich des zu erhaltenden Gebäudes soll ein ruhiger Park entstehen, der eine andere Aufenthaltsqualität bietet als der Dorfplatz. Somit entsteht innerhalb des Gesamtareals ein differenziertes Außenraumangebot. Das neue IWL hebt sich deutlich durch seine Materialisierung von den üblichen Gewerbebauten ab. Wohl unterliegt die Gesamtkonzeption pragmatischen Kriterien wie Funktionalität und konstruktive Sinnhaftigkeit, das Hauptunterscheidungsmerkmal jedoch ist die konsequente Anwendung des nachwachsenden Baustoffes Holz. Einerseits setzt das IWL damit ein Zeichen hin zu ressourcenschonendem Bauen, andererseits bietet Holz bei richtiger Anwendung eine außerordentliche Qualität in Bezug auf Raumgestaltung und Atmosphäre. So wird eine weitgehend naturbelassene Holzanwendung vorgeschlagen, die auch den Verwitterungsprozess in Kauf nimmt. Die Fassaden sind so gestaltet, dass die sensiblen Fensterbereiche durch konstruktiven Wetterschutz geschützt sind.
»Bei der Planung und Umsetzung des neuen Werkstättengebäudes für die IWL Landsberg wurde besonderes Augenmerk auf die Entwicklung ressourcenschonender Bauteile und Produkte gelegt. Das heißt, innovative Bauteile, Baustoffe, Konstruktionen sowie technische Gebäudeausrüstungen unter den Kriterien der Nachhaltigkeit und Ressourcenschonung. «
Univ.-Prof. Arch. DI Hermann Kaufmann
Der gesamte Werkstättenbereich ist möglichst flexibel gehalten, die notwendigen Kerne liegen an den peripheren Bereichen, um eine Weiterentwicklung oder ein internes Wachstum nicht zu behindern. Eine teilweise Aufstockung ist sowohl in der ersten als auch in der zweiten Baustufe vorgesehen, die Aufstockung in der ersten Baustufe beherbergt die betriebliche Verwaltung, in der zweiten Baustufe könnte diese ins Verwaltungshauptgebäude umgesiedelt werden und die Räumlichkeiten als Werkstätten genutzt werden. Eine Anbindung an das neue Mensa- bzw. Verwaltungs- und Seminargebäude erfolgt im Zwischengeschoss über eine Brücke. Damit sind die einzelnen Funktionseinheiten intern verbunden. Das P-Gebäude wird als eigenständiger Baukörper an die Ostseite des Dorfplatzes situiert, mit eigener Anlieferungszone. Das bestehende Werkstätten- und Mensagebäude wird umgenutzt als Bereich für arbeitsbegleitende Maßnahmen.
Weiterlesen
Das Werkstättengebäude wird als Mischbauweise vorgeschlagen. Auf einer massiven Bodenplatte (Teilunterkellerung) werden Betonstützen gestellt, auf denen im Bereich der Aufstockung eine Betondecke aufgelegt wird. Im nicht aufgestockten Bereich wird eine Shedkonstruktion in Holz mit Nordbelichtung vorgeschlagen. Das zweite Geschoss soll gänzlich in Holz errichtet werden. Entsprechend dieser Typologie ist auch das Mensa-Verwaltungsgebäude geplant, über den Mensabereich wird eine Betondecke vorgesehen, die restlichen zwei Geschosse sind in Holzbauweise konzipiert.
Naturbelassenes Holz soll sowohl im Außen- als auch im Innenbereich das Hauptmaterial werden. Die farbliche Akzentuierung einzelner Bereiche soll sehr dezent erfolgen, vorgeschlagen wird die Einbindung eines in diesem Bereich erfahrenen künstlerischen Begleiters.
Die vorgeschlagene Holzbauweise in Kombination mit ausgewählten Materialien bietet eine gute Grundlage zur Erreichung der Ziele des energieeffizienten Bauens. Dabei soll auch besonderes Augenmerk auf die Verwendung von gesundheitlich unbedenklichen Materialien gelegt werden. Sämtliche Materialentscheidungen sollen diesen Kriterien unterworfen werden. Die Verwendung von langlebigen Materialien sowie die Baustruktur, die Flexibilität ermöglicht, garantieren niedrige Lebenszykluskosten. Ebenso sollen sämtliche technischen Ausstattungen und Leitungen zugänglich bleiben, um eine leichte Veränderung oder Wartung zu gewährleisten (Systemtrennung). Kompakte Baukörper in Zusammenhang mit optimierten Gebäudehüllen ermöglichen ein vernünftiges Energiekonzept, eine assivhausqualität wird angestrebt.
Die kompakte Bauweise des Gebäudes gewährleistet bei einer optimierten Gebäudehülle sowie hoher Tageslichtnutzung einen minimierten Energieverbrauch. Zur Wärmeerzeugung werden die Holzreste der Schreinerei genutzt. Für die Warmwasserbereitung wird die Abwärme der Drucklufterzeugung genutzt. Hierdurch kann insbesondere im Sommer ein ineffizienter, da kurzzeitiger Betrieb der Biomassekessel verhindert werden. Die Wärmeübergabe in den Produktions- und Lagerbereichen erfolgt durch Deckenstrahlplatten, welche sich durch hohe Flexibilität bei der Einrichtung der Produktionsfläche sowie geringe Staubaufwirbelung auszeichnen. Die Sheddächer dienen zum einen der natürlichen Belichtung in der Gebäudetiefe, als Lüftungsmöglichkeit sowie als Montagefläche für die Photovoltaikmodule. Das neue Verwaltungsgebäude wird in der Kantine und in den Seminarräumen mit einer Lüftungsanlage mit Wärmerückgewinnung ausgestattet. Durch den Einsatz eines Erdwärmetauschers wird die Zuluft zusätzlich vorkonditioniert, so dass im Zusammenspiel mit dem Atrium als Pufferzone und der freien Nachtlüftung auf eine aktive Kühlung des Gebäudes verzichtet werden kann. Ergänzend kann bei hohen Komfortansprüchen die Fußbodenheizung durch einen Grundwasserwärmetauscher auch zur stillen Kühlung verwendet werden.












