Ein wenig herablassend klingt’s, wenn der rundum versorgte Urbanist den Blick über seinen dicht besiedelten Ballungsraum hinaus schweifen lässt und feststellt: Platz haben sie ja, da draußen auf dem Land.
Irrtum Entgegnet einer, der sich dank langjähriger Beschäftigung mit dem Thema aus erster Hand auskennt: „In den vergangenen siebzig Jahren ist so viel Land zugebaut worden wie in der gesamten Siedlungsgeschichte unserer Gemeinde nicht“, weiß Arnold Hirschbühl, Bürgermeister von Krumbach im Bregenzerwald. Diesem Platzverbrauch Einhalt zu gebieten, ist ihm Anliegen, seit er vor zwanzig Jahren die Raumpolitik des Ortes verantwortet.
»Bescheidenheit ist der Schmuck dieser Häuser.«
Arnold Hirschbühl, Bürgermeister
Und als Bauer, der er lange war, weiß er wie jeder Handwerker: Der Betrieb läuft nur dann rund, wenn jeder Griff sitzt – was möglich wird, wenn jedes Ding seinen Platz hat. Die Ordnung der Dinge erleichtert das Leben – und ordnen heißt: Unterschiede machen. Entscheidend für den Bürgermeister ist, das Feld vom Dorf zu unterscheiden, den Rand vom Zentrum
Leichter gesagt als getan: Strukturwandel und Abwanderung sind auch an Krumbach nicht spurlos vorübergegangen, der Ortskern fiel leer. Am Anfang stand daher die Frage: Was ist ein Dorf in unserer Zeit, was sind die Aufgaben ländlicher Politik, wie kann das Dorf attraktiv bleiben? Die Krumbacher Antwort: Pfleglicher Umgang mit Land und Baubestand; bauliche Verdichtung im Dorfkern mit Öffnung für neue Bewohner; Stärkung der Infrastruktur, nicht zuletzt des öffentlichen Verkehrs und der Kultur.
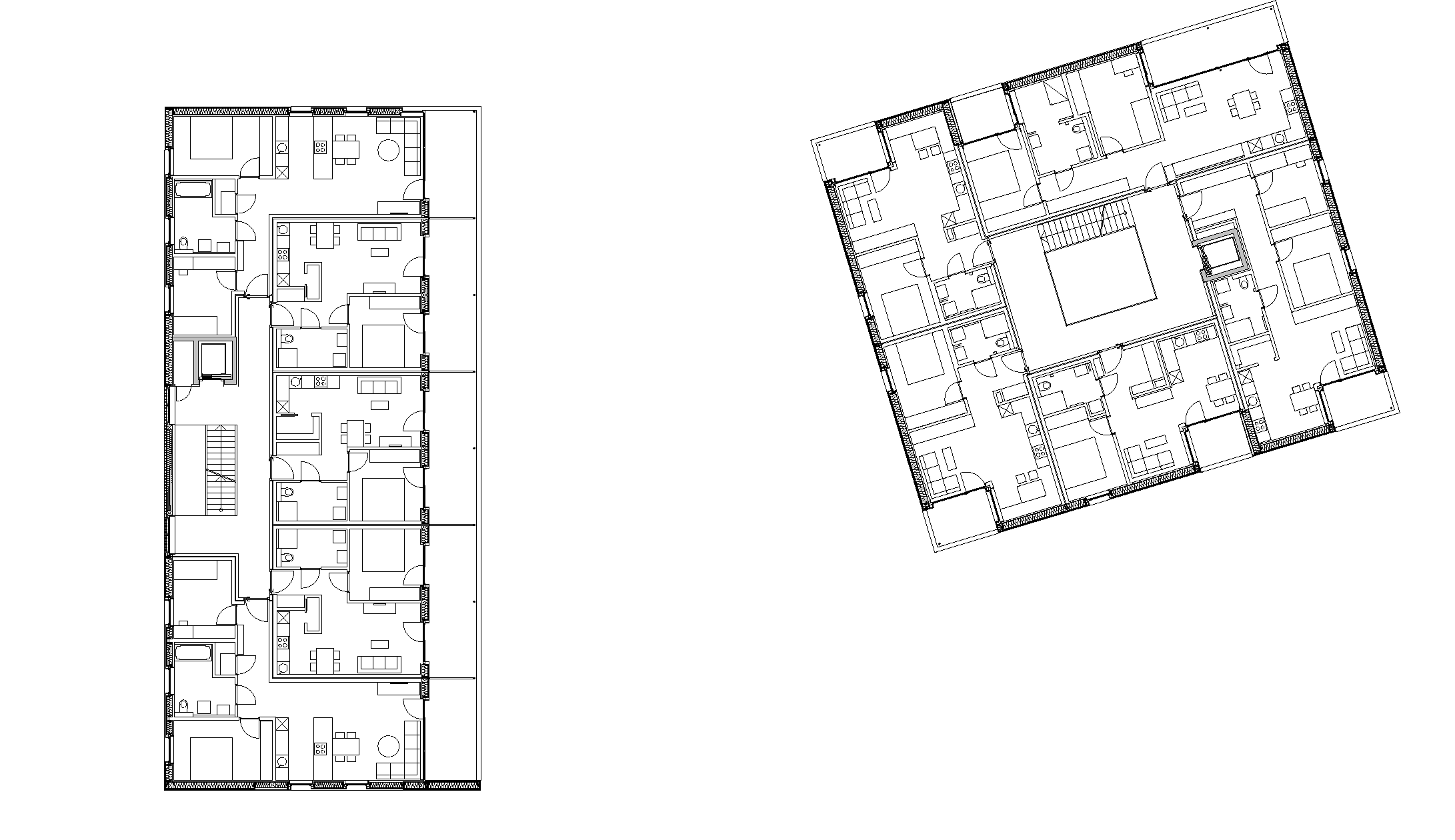
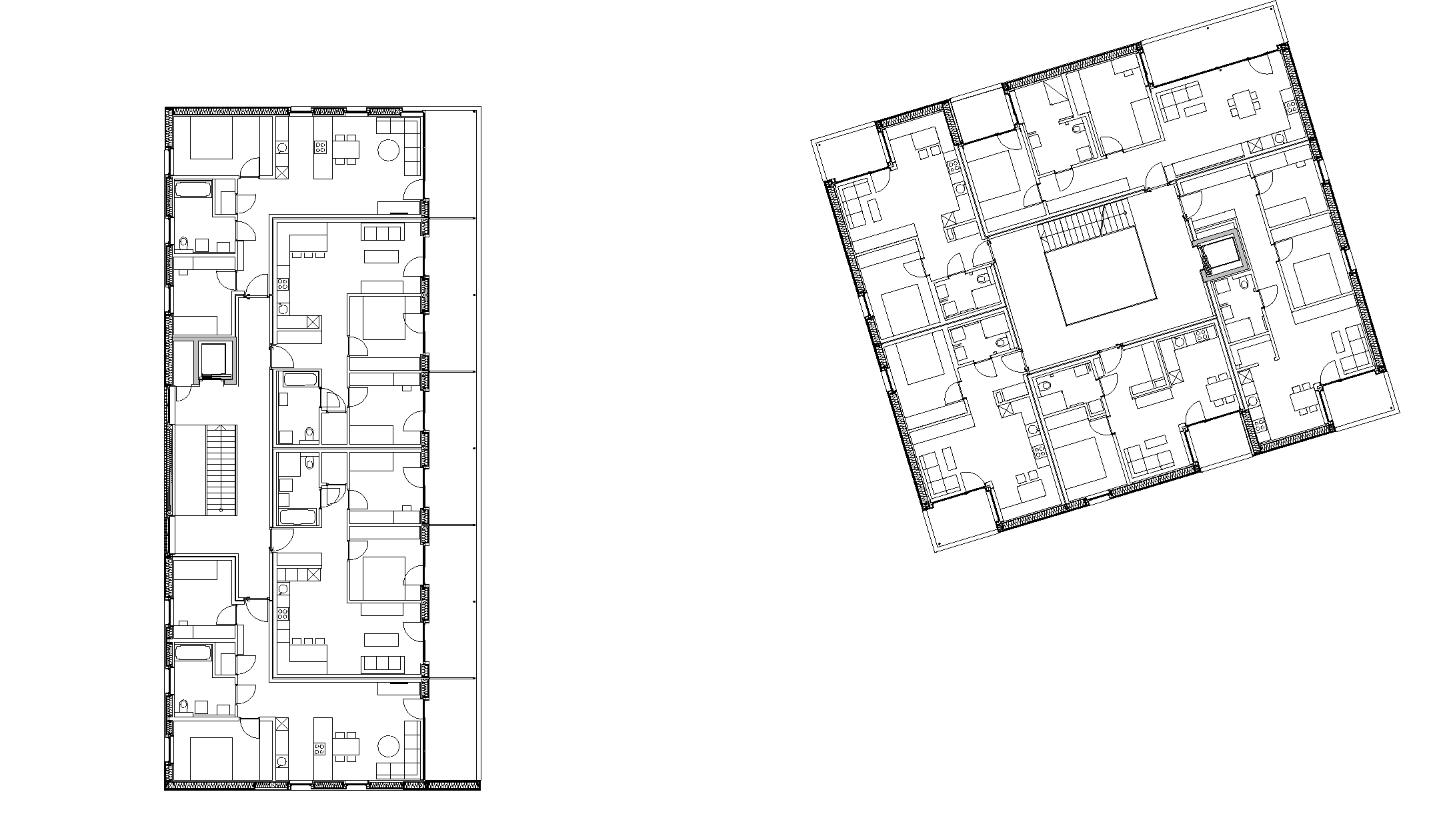
Nachdem in den vergangenen Jahren vor der Kirche ein regelrechter Dorfplatz entstanden war mit renoviertem Gemeindehaus, Dorfladen, Café, Friseur, Bank und Post sowie als letztem Baustein einem Pfarrhaus mit Dorfsaal, Bibliothek und Musikräumen, hat sich in jüngster Zeit ein zweiter Schwerpunkt entwickelt. Zwischen Bauernhäusern sind in Sichtweite vom Dorfplatz neue Wohnhäuser errichtet worden. Im Lande der Häuslebauer bemerkenswert daran: Es handelt sich um Geschoßwohnungsbau, hauptsächlich Wohnungseigentum, jedoch auch Miete oder Mietkauf. Vorwiegend Holzbau mit einem Wohnungsstandard, wie er heute im Lande selbstverständlich ist und großzügigen Balkonen als Erinnerung ans einstige Gärtle.
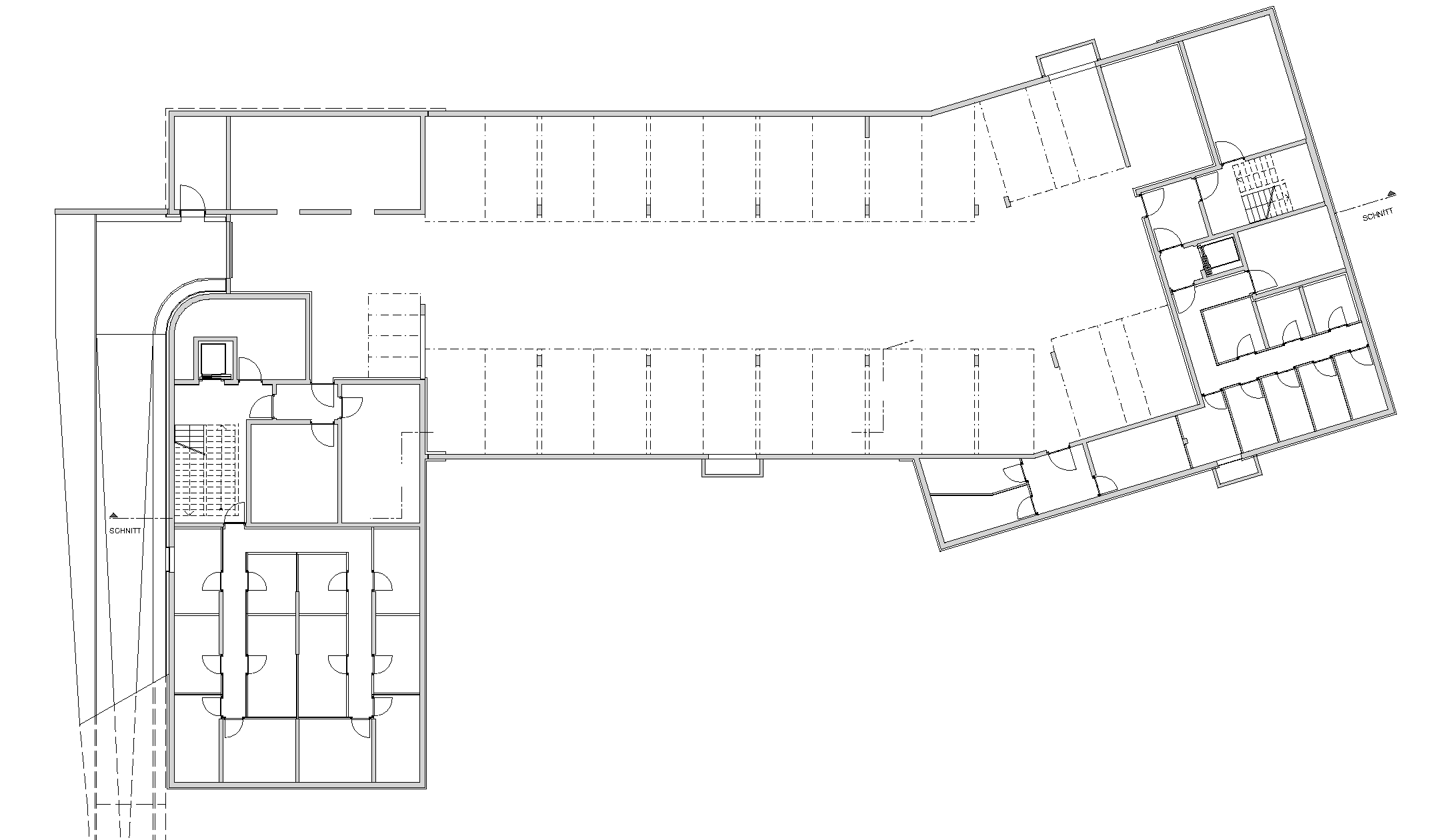
Nachdem die Nachfrage bei den ersten beiden Bauten die Erwartung übertraf, hat die Gemeinde vor fünf Jahren im Rahmen eines Zukunftstages die nächsten Schritte formuliert; so bildete sich das Programm für ein Mehrwohnhaus und eine Generationenwohnanlage. Mit erstem ist ein Haus mit gemischter Wohnnutzung – Einzelperson und Familie, Miete und Eigentum – unter einem Dach gemeint, mit letztem ein Haus, das jüngeren Bürgern und älteren Dorfbewohnern, denen ihr Haus über den Kopf gewachsen ist, angemessenen Lebensraum bietet, Elternbetreuung und betreutes Wohnen mit Gemeinschaftsraum und Arztpraxis eingeschlossen.
Die Gemeinde stellte den Grund in Zentrumslage zur Verfügung; in einem geladenen Wettbewerb wurde die optimale Lösung ermittelt; ein gemeinnütziger Wohnbauträger organisierte Planung und Finanzierung; ein Bauträger setzte die Pläne ins Werk; die Ausführung bestritten vorwiegend heimische Handwerker. Alle Beteiligten waren in der Gemeinde bekannt, was unbürokratische Abläufe erlaubt, Akzeptanz sichert und die Wertschöpfung im Land hält.
Weiterlesen
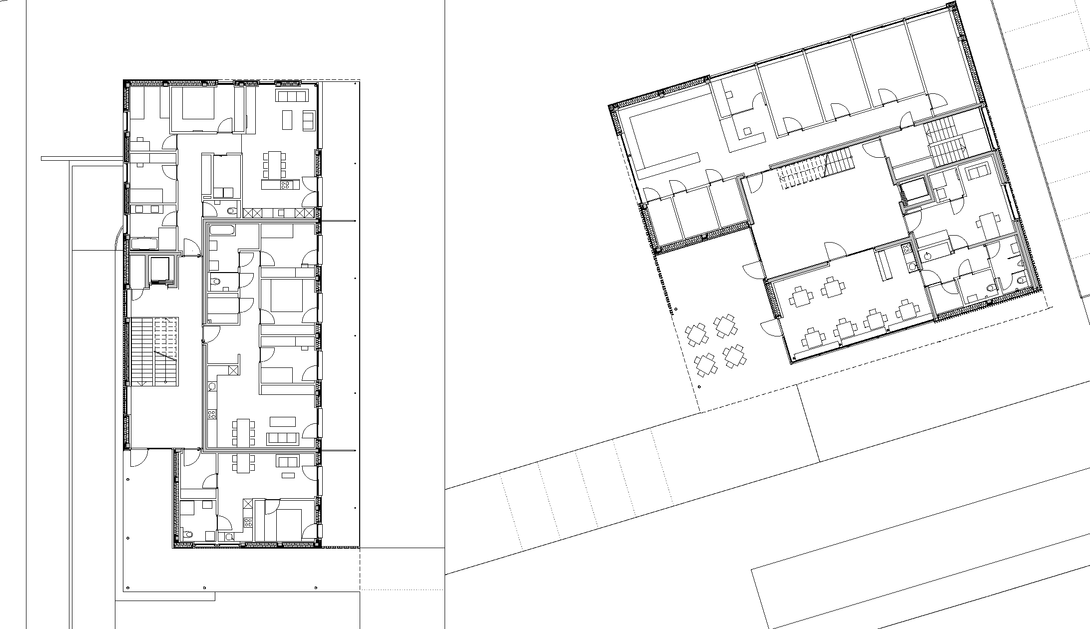
Den Wettbewerb konnte der Architekt Hermann Kaufmann für sich entscheiden, zwar kein Krumbacher wie die anderen Mitstreiter, jedoch dank jahrelangem Engagement im Ort „Fast- Krumbacher“. Der Entwurf sieht auf gemeinsamen Keller mit Tiefgarage zwei typische Baukörper vor: Ein langer Bau in gebräuchlicher Ost-West-Ausrichtung, der sich stirnseitig an die Straße schiebt und den Raum schließt; im Zentrum der zweite Bau von annähernd quadratischem Grundriss mit flachem Zeltdach, das – geschickt verborgen – über Dach das Innere belichtet. Beide Bauten sind ab dem Erdgeschoß Holzbauten, Passivhausstandard.
Wo Dinge ihren Platz haben, können sie sich entfalten; die beiden Bauten sind jedes für sich Variationen von Wälderhäusern –bäuerliches Einfirsthaus und Amtshaus. Das legt ihre Lage fest – am Rand und im Zentrum. Mit dieser Stimmigkeit gelingt, was den Ort weiterbringt: Ein weiterer Platz entsteht. Ein Platz, der sich vom Dorfplatz unterscheidet, hat er doch seine Mitte im großen Dach der Bushaltestelle. Dort der Platz der Geschäfte und Versammlung, hier der Platz des Kommens und Gehens. Was wiederum abgestimmt ist auf die umliegenden Bauten: Belebte Häuser mit Zugang zum Platz; nur das Generationenhaus öffnet sich im Erdgeschoß auf ganzer Breite und bezieht den Begegnungsraum mit raumhoher Verglasung ins Dorfgeschehen mit ein.
Wenn gleich die Dimension der Bauten ans Limit reicht, integrieren sie sich dank des einheitlichen Holzkleides ins Dorf, ihre Gestaltung ist sachlich – „ihr Schmuck ist ihre Bescheidenheit“, wie Arnold Hirschbühl bäuerlich- hintersinnig meint. „Der Lederhosenstil aus unserer Jugendzeit hat uns äußerste Zurückhaltung gelehrt“, ergänzt Hermann Kaufmann. Genauer gesehen offenbart sich freilich feine Differenzierung in Struktur, Geometrie und Proportion – am Rand betont lagernd, im Zentrum aufragend rhythmisiert, nach Norden geschlossen, nach Süden offen, zum Platz über freiem Erdgeschoß schwebend.
Und dann gibt’s da im Zentrum noch eine grüne Wiese – „die wollen wir frei lassen“, so der Bürgermeister, „da lassen wir Platz für die, die nach uns kommen.“ So gibt’s, ganz anders als mancher meint, da draußen tatsächlich viel Platz – und das Dorf wird so zu einem neuen Platz, wo es sich Leben lässt.









