Das Gebäude wurde bis auf Decken, Stiegenhaus, Aufzug und wenige tragende Wände ausgehöhlt und in ein modernes, den heutigen Anforderungen entsprechendes Bürogebäude umgebaut. Die Fassade wurde mit neuen Eichenfenstern und einem Vollwärmeschutz saniert, im Dach wurde eine großzügige Verglasung eingebaut.
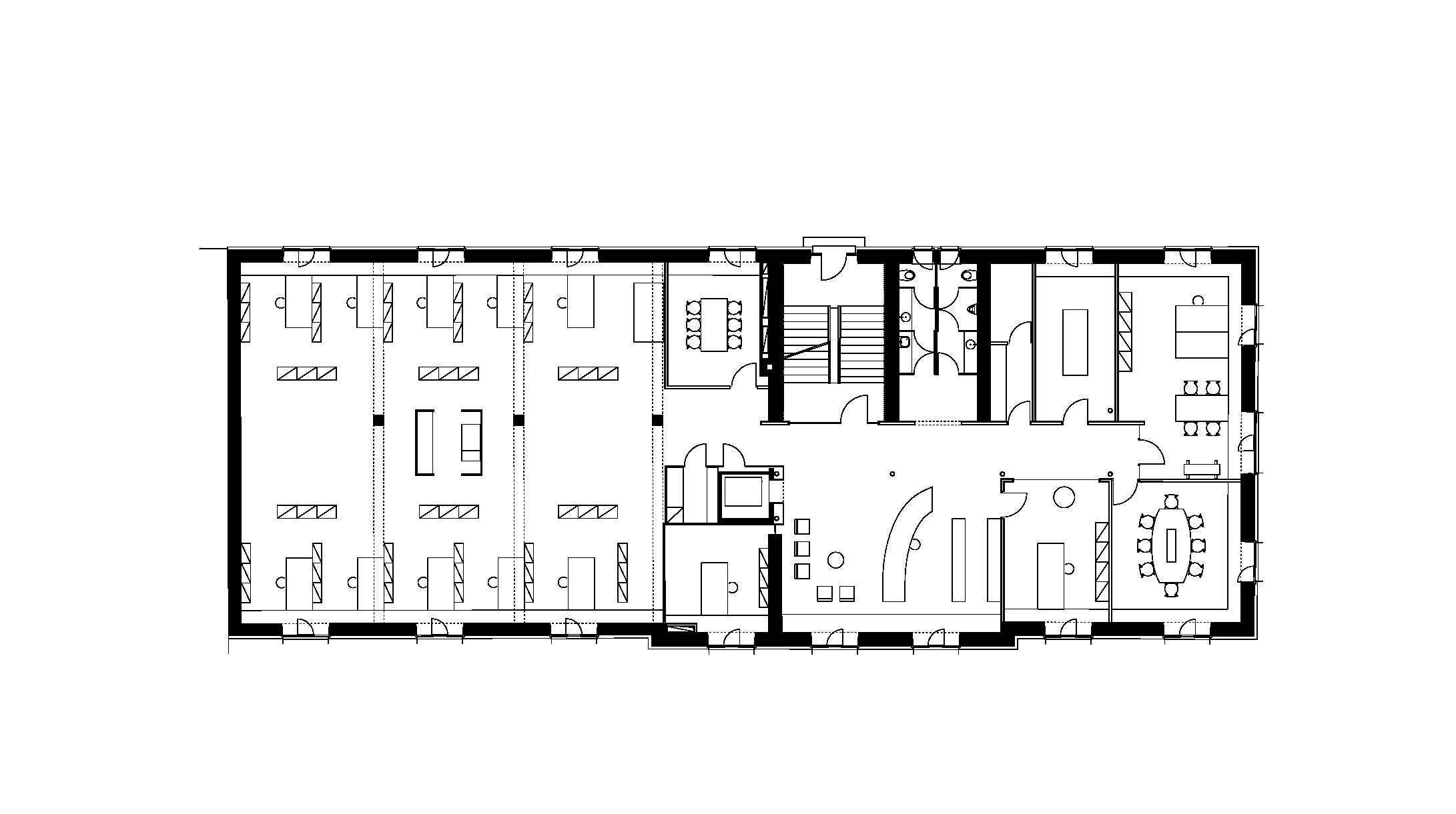
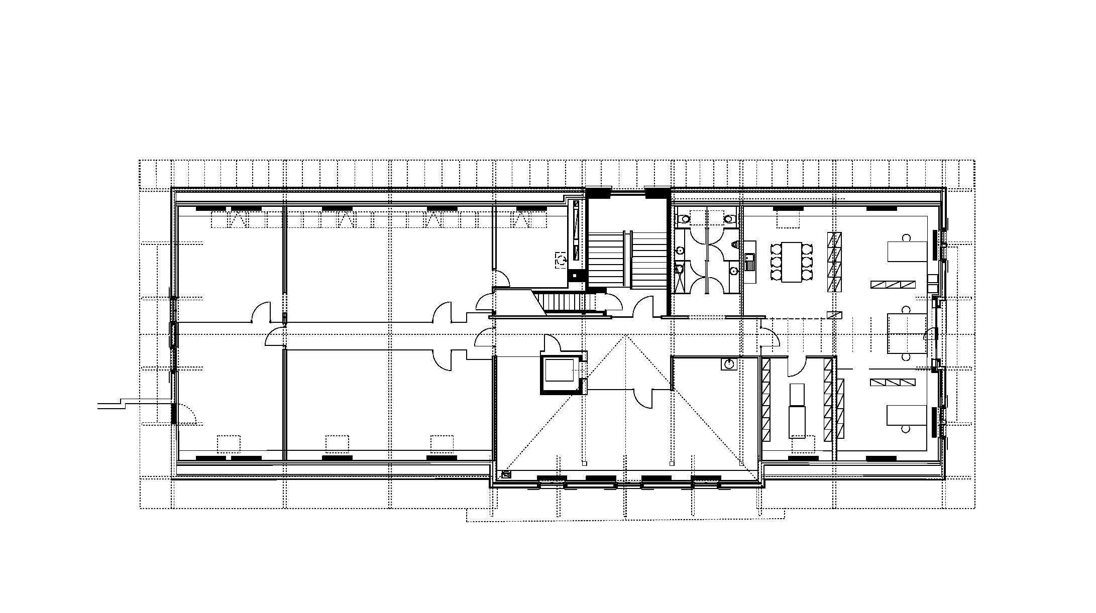
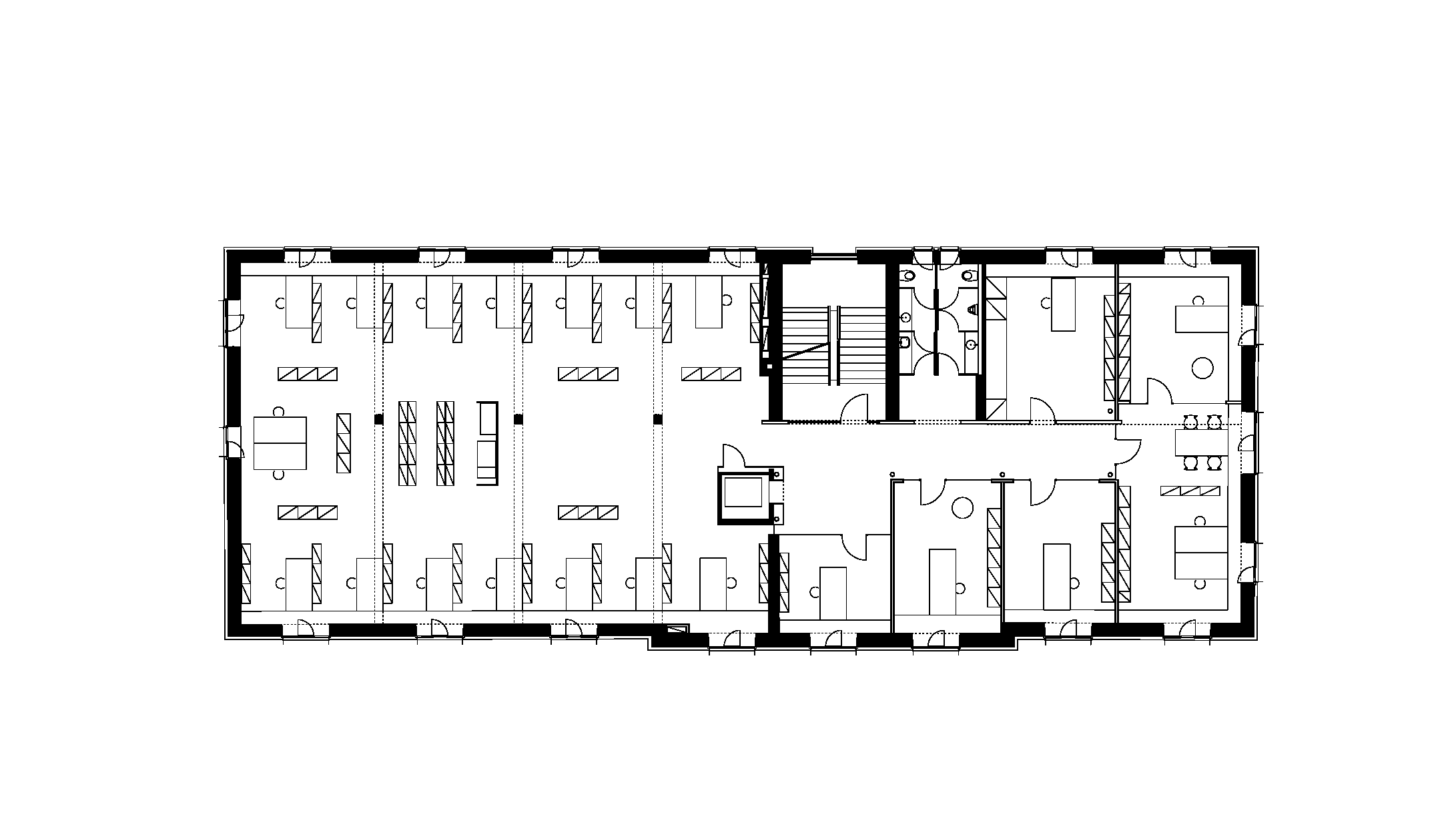
Im EG befindet sich ein Seminarraum (Sutterlüty-Akademie) sowie die Cafeteria für Seminarteilnehmer und Büroangestellte. Außerdem ist im EG ein gekühltes Käselager untergebracht. Im 1.OG befindet sich der Empfang, Chefbüro, Sitzungszimmer und ein Großraumbüro. Im 2.OG sind ebenfalls ein Großraumbüro, Einzelbüros und Besprechungsräume der Sutterlüty GmbH. Im ausgebauten Dachgeschoß sind vermietete Büroräumlichkeiten, welche die Möglichkeit einer Erweiterung offen lassen.





