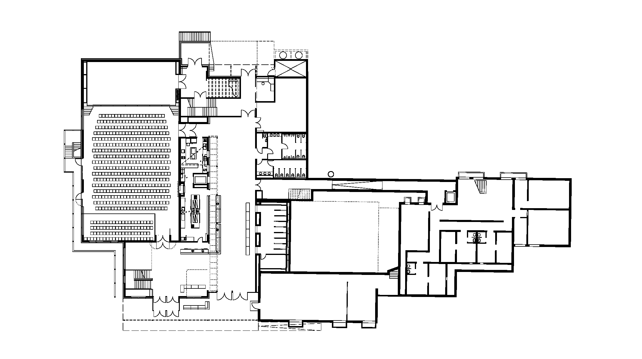
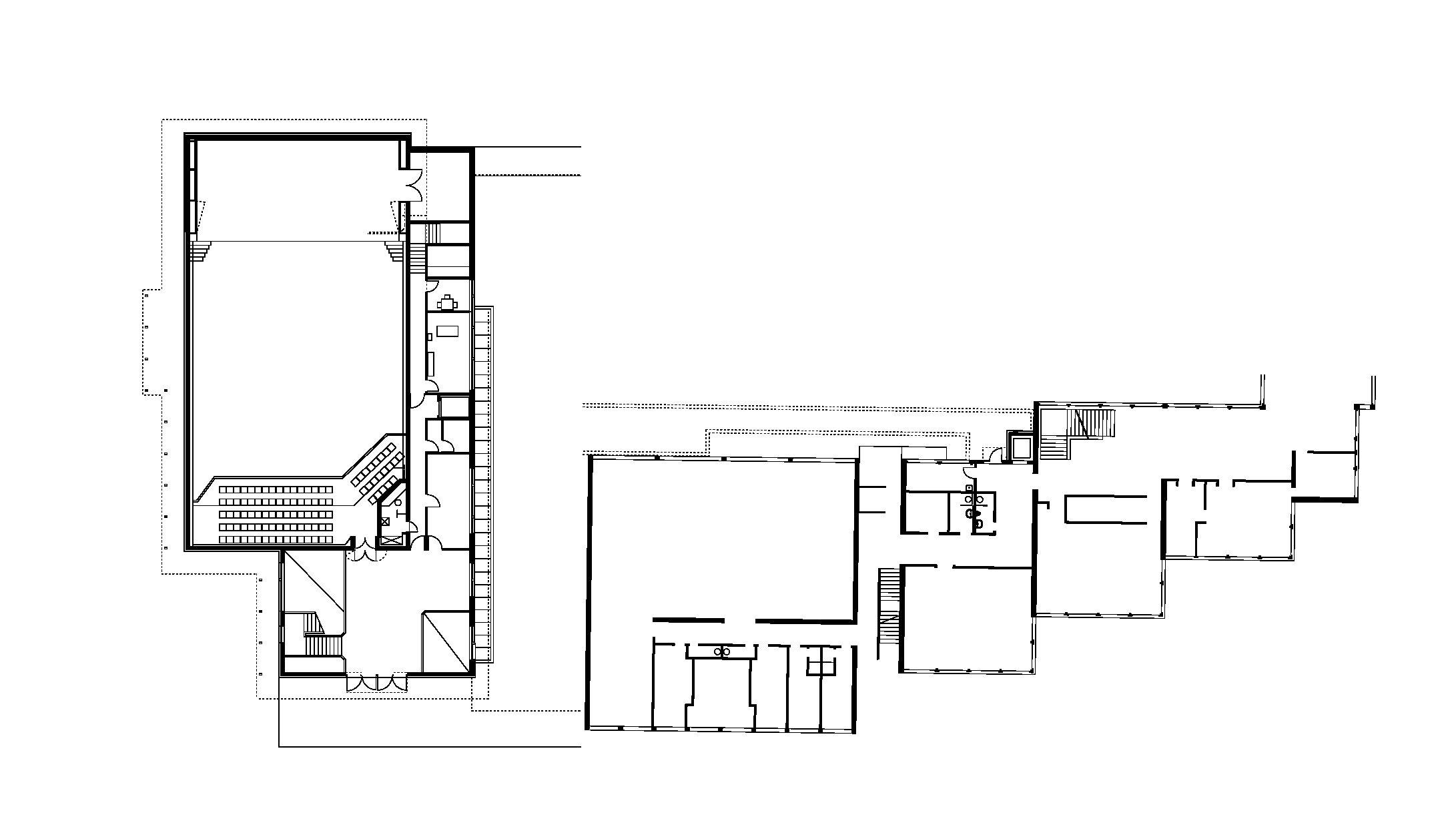
Gentle expansion to a precious festival hall.
The original work by DI Bartle Moosbrugger, carried out in 1984, had become inadequate for a smooth execution of various activities, especially the Schubertiade festival. Therefore the hall was extended by seven meters and the side rooms, especially the foyer, generously expanded. The architectural challenge was to keep the quality of the existing buildings, and to add the new rooms gently, without altering the overall image of the hall, which now has a high profile. This explains the restrained and serving design approach in the newly added parts.










