New headquarters of Raiffeisenbank Mittelbregenzerwald.
In the middle of the village of Egg in the Bregenzerwald, Austria the new headquarters of the Raiffeisenbank will be built. One of the goals of the new building is to build a simple, but functional building with a strong connection to the Bregenzerwald region.
»When people speak of the Bregezerwald, they often use the words ‘plain’ or ‘simple’. That is increasing wrong. To describe the Bregenzerwald, at least in terms of architecture, people should say ‘grand’, ‘incredible’ and ‘ingenious’. This definitely applies to the bank in Egg.«
Best of Austria 2010/2011
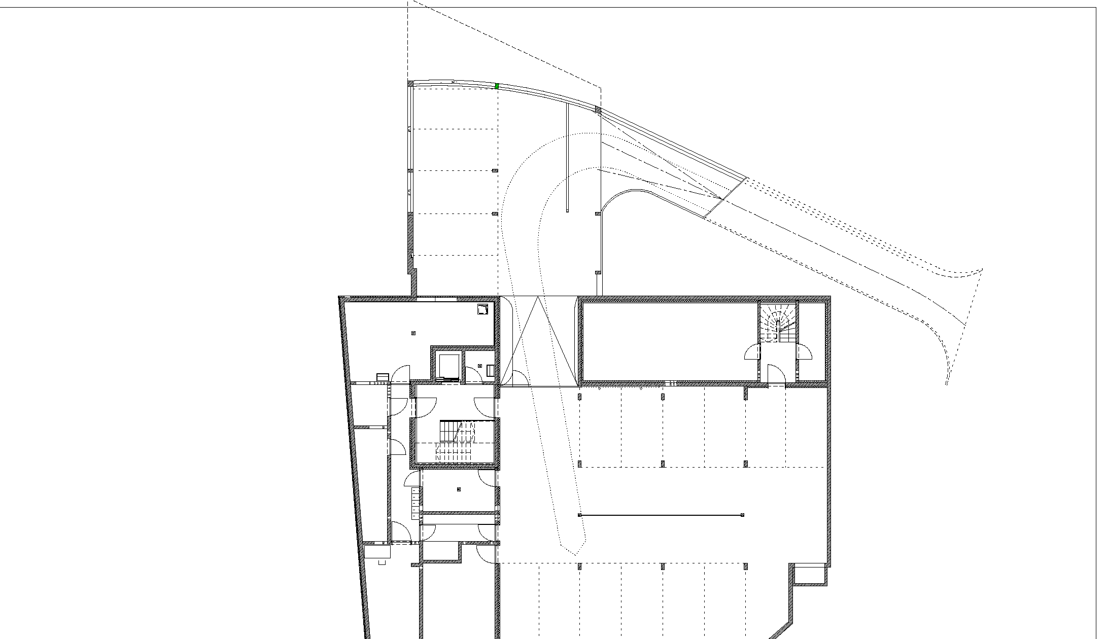
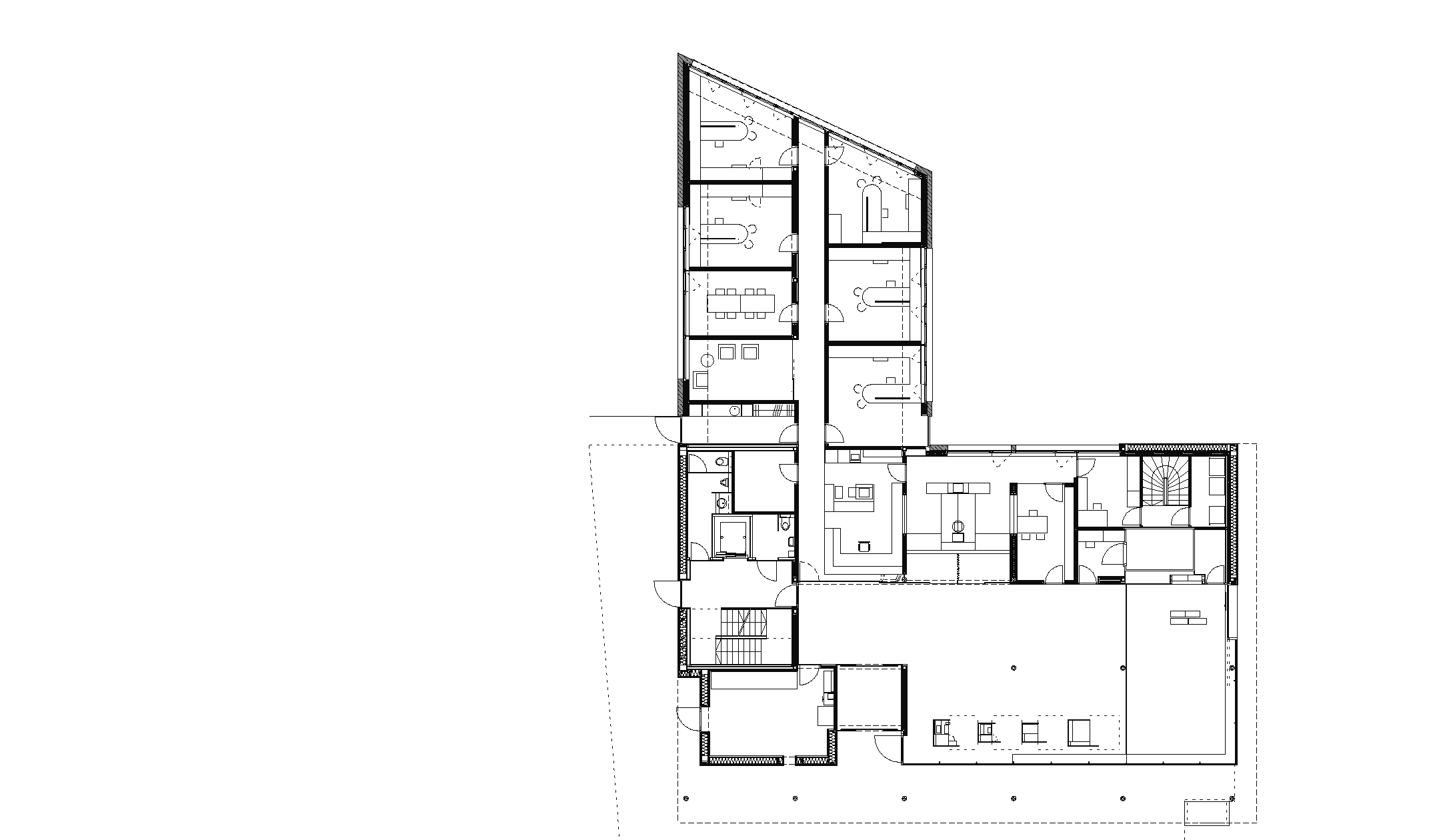
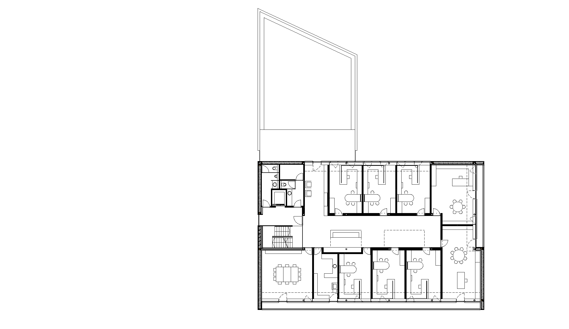
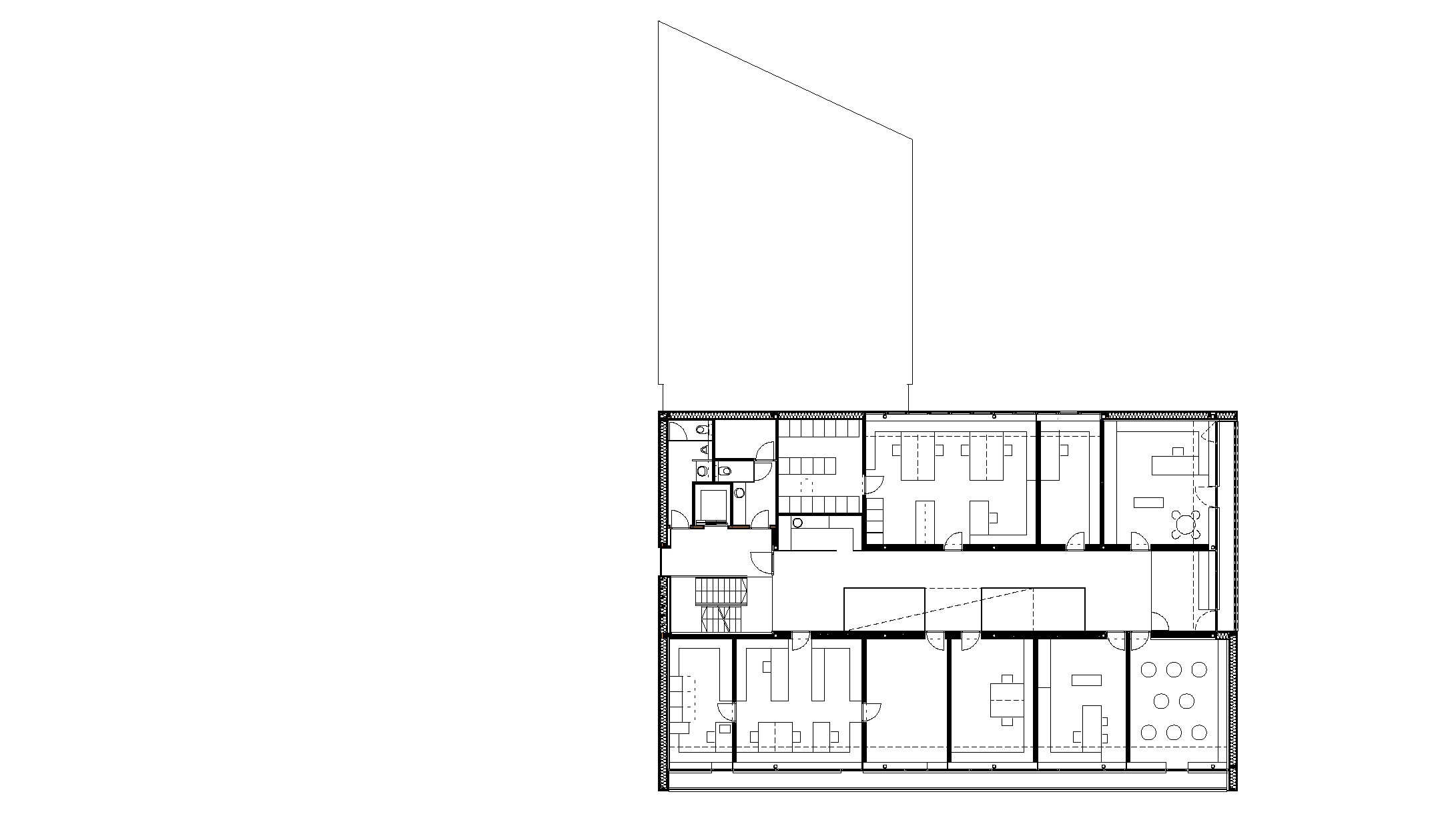
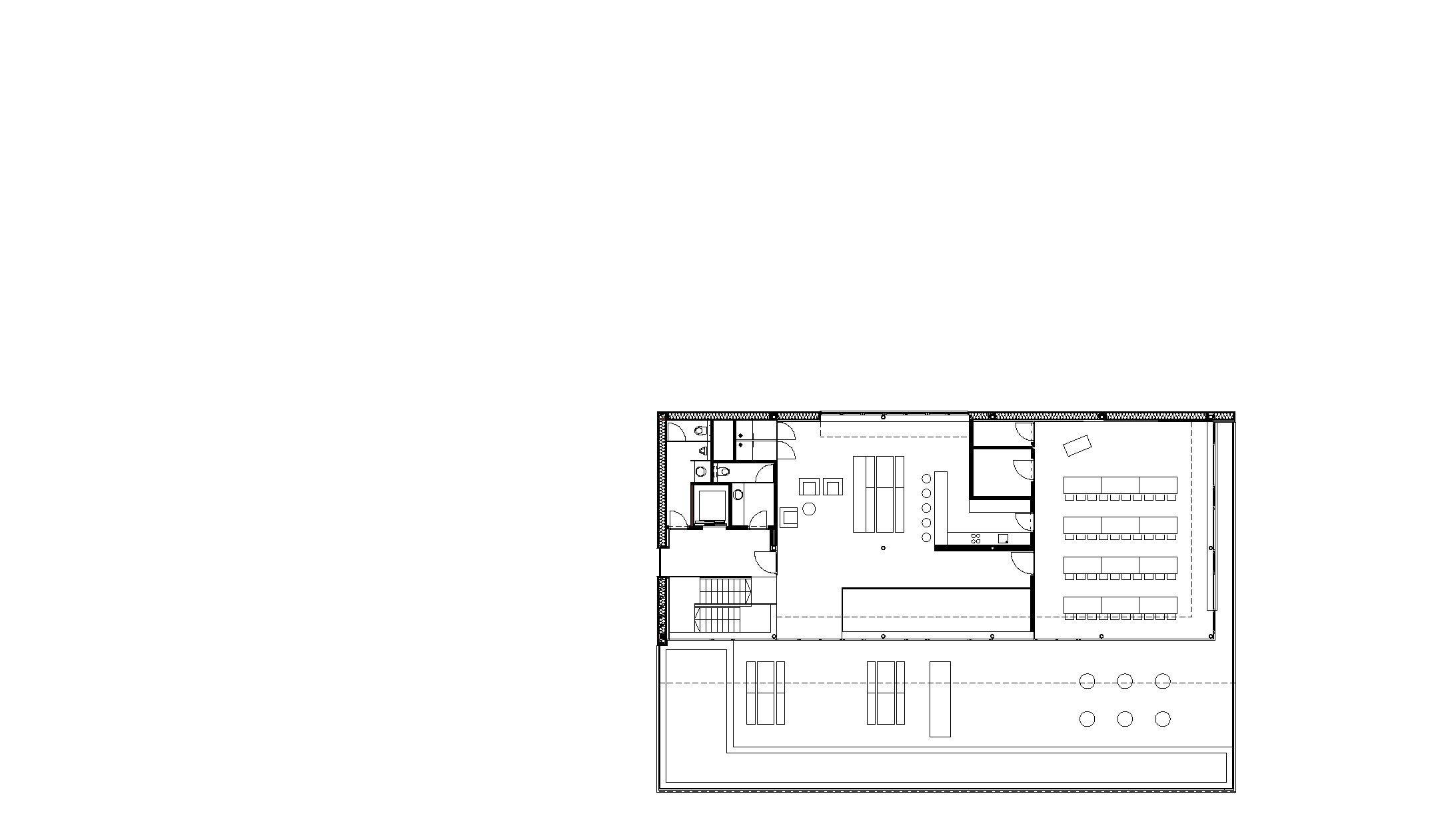
The plan is to build a 4-storey, fully timber-framed bank with a total floor space of more than 1,400 m². The individual storeys were assigned to the respective business processes. The ground floor serves the private customer care in a generously sized customer reception. The first floor accommodates the corporate customer service and the executive board, while the administration can be found on the second floor. The third floor is intended as a social area for employees or for training. There is a spacious roof terrace that offers a generous panoramic view of Egg.
The upper floors are connected by spacious airy walkways, which direct the light into the centre of the building. The facade is mostly executed in untreated larch shingles. The timber outer walls, which are more than 40 cm thick, are insulated with cellulose. Inside the insulation is either hemp or, where necessary, mineral wool. In terms of sustainability, domestic timber varieties are the focus of the interior design. Untreated domestic silver fir for walls, fixtures and doors, and the oak furniture compliments and accentuates this.
Another focus is to build a sustainable and high-quality building. By using a photovoltaic system and the connection to the local heating network, an energy balanced is achieved and the building is emission-free over the year. An overall sophisticated energy concept reduces the energy consumption to a minimum, so that a Passive House standard is almost reached. The added value for the Bregenzerwald region is the fact that approximately 85% of the work was awarded to Bregenzerwald craftsmen or to customers of the bank.

















