Vienna’s first 100 apartment Passive House development.
We answered a tender process in Vienna for a new style of development. The goal is the construction of approximately 100 flats, all reaching Passive House construction standards. In Vienna this is the first Passive House standard project. Also, a first for the city is the realisation of the seven-storey building in mixed timber construction.
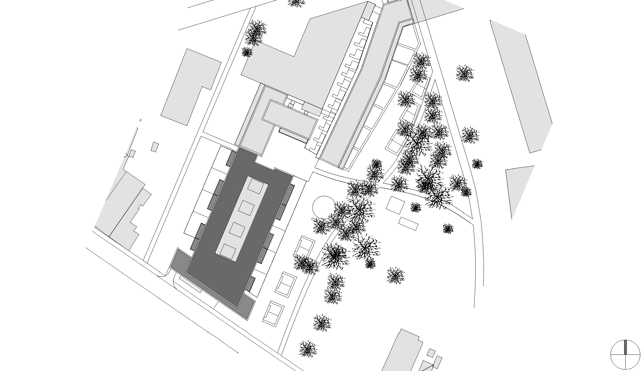
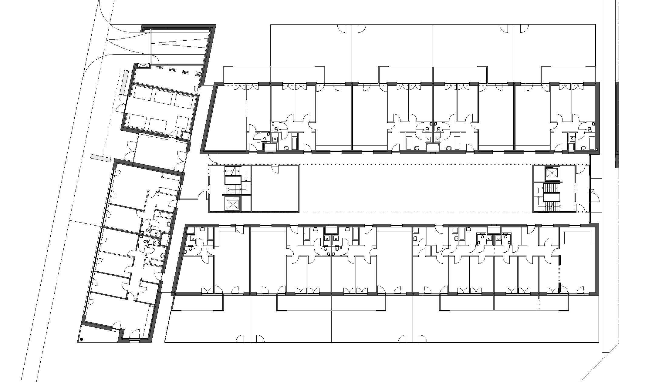
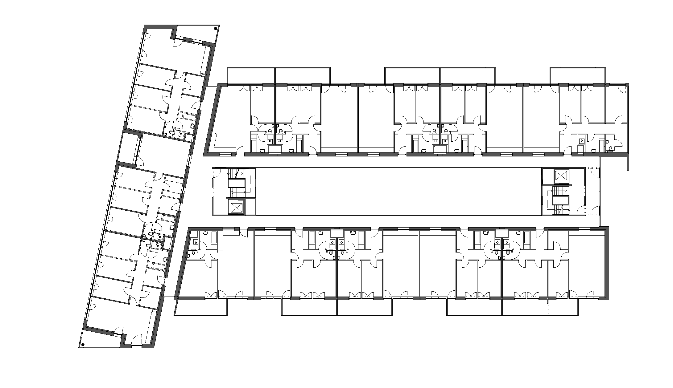
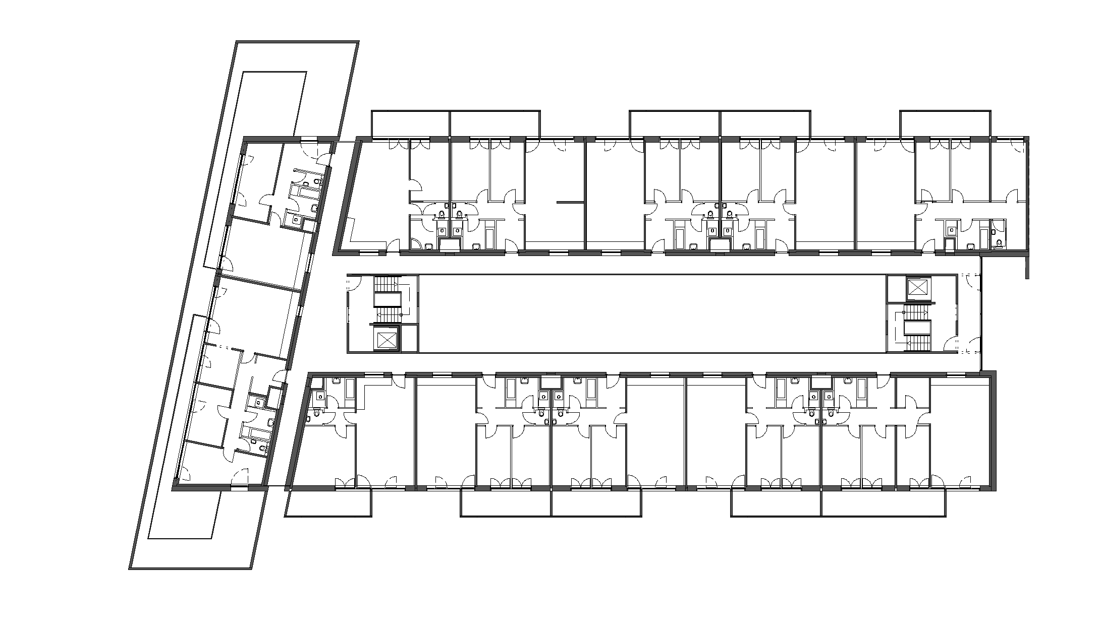
A compact, central development with a “twisted” south line that responds to the specific the site on Kammelweg. This type of building, with its attractive central hall and communal areas on all levels, allows an extremely rational and cost-effective development. While the ground-floor apartments have each assigned a garden portion, the upper floor apartments are furnished with greened loggias or balconies. The penthouses have roof terraces. This type of central development enables an extremely compact design with an optimised ratio between the building envelope and living areas.












