Ein markanter Baukörper in fein gewirkter Hülle.
Im Dorfkern der Gemeinde Schnepfau wird ein Feuerwehrhaus anstelle des Altbestandes errichtet, zeitgemäss in seiner Form und Funktion und doch eingebunden in die Baukultur der Region. Das Gebäude bildet mit dem Gemeindehaus und der Pfarrkirche ein kompaktes Ensemble, das den öffentlichen Platz samt seinem mächtigen Kastanienbaum und dem Brunnen fasst. Der Dorfbach wird unter dem Bauwerk durchgeleitet, dahinter erhebt sich die Parzelle gegen Norden zu einer steilen Böschung.
Das Erdgeschoss sowie der Schlauchturm sind in massivem Stahlbeton ausgeführt, das leicht vorkragende Obergeschoss und die Dachkonstruktion hingegen in Holzbauweise. Der elementare Dialog zwischen dem Baukörper und seinem Ort manifestiert sich in der markanten Schnittfigur, die durch eine beinahe textil anmutende Hülle aus Fichtenschindeln kontrastiert wird.
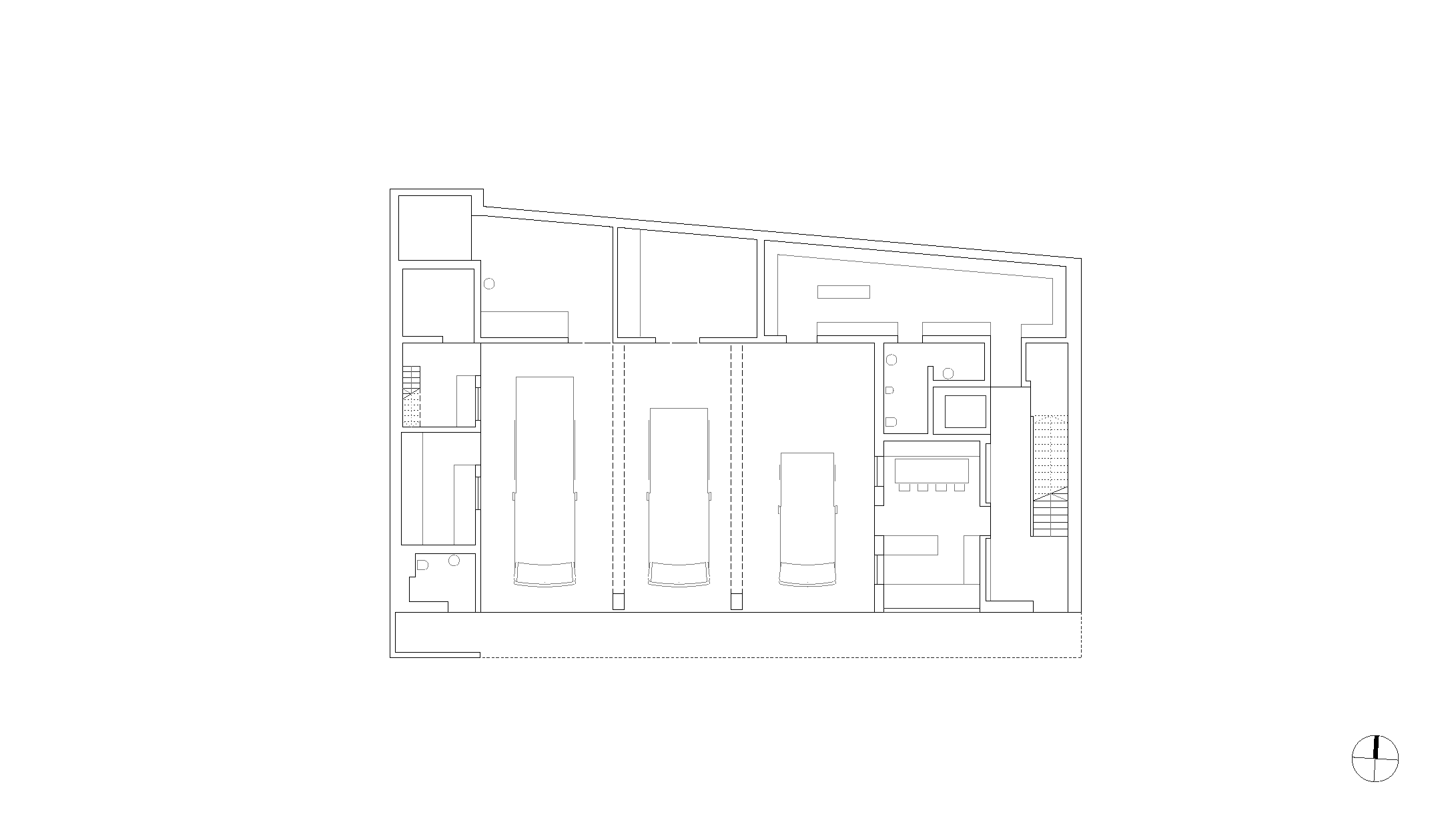
Das Herzstück der Anlage bildet die freitragend überspannte Fahrzeughalle, welche sich durch drei verglaste Stahl-Falttore zum Platz hin orientiert. An den Seiten und gegen den Hang wird sie von kleineren Infrastrukturkammern gerahmt, in denen die Bereiche für Wartung und Bestandhaltung sowie Einsatzräume, Technik und Lager organisiert und einander zugeordnet sind. Die einbündige Treppe ist an der Ostseite des Baukörpers angelegt und führt in ein lichtes Obergeschoss, das sich durch grosszügig bemessene Holzfenster nach Norden und Süden öffnet. Hier bietet sich Platz für das Probelokal des Musikvereins, einen Schulungssaal sowie Nebenräume.
Die Atmosphäre der Arbeitsbereiche im Erdgeschoss wirkt durch die nüchternen Zementoberflächen kühl und roh, während der Besucher bereits im sorgfältig getäferten Treppenhaus ahnt, wie fein das darüber liegende Stockwerk gearbeitet ist. Ganz in gebürstete und unbehandelte Weisstanne gekleidet, erweist es sich als präzise gefügter Resonanzkörper für die Klänge der Musiker.





























