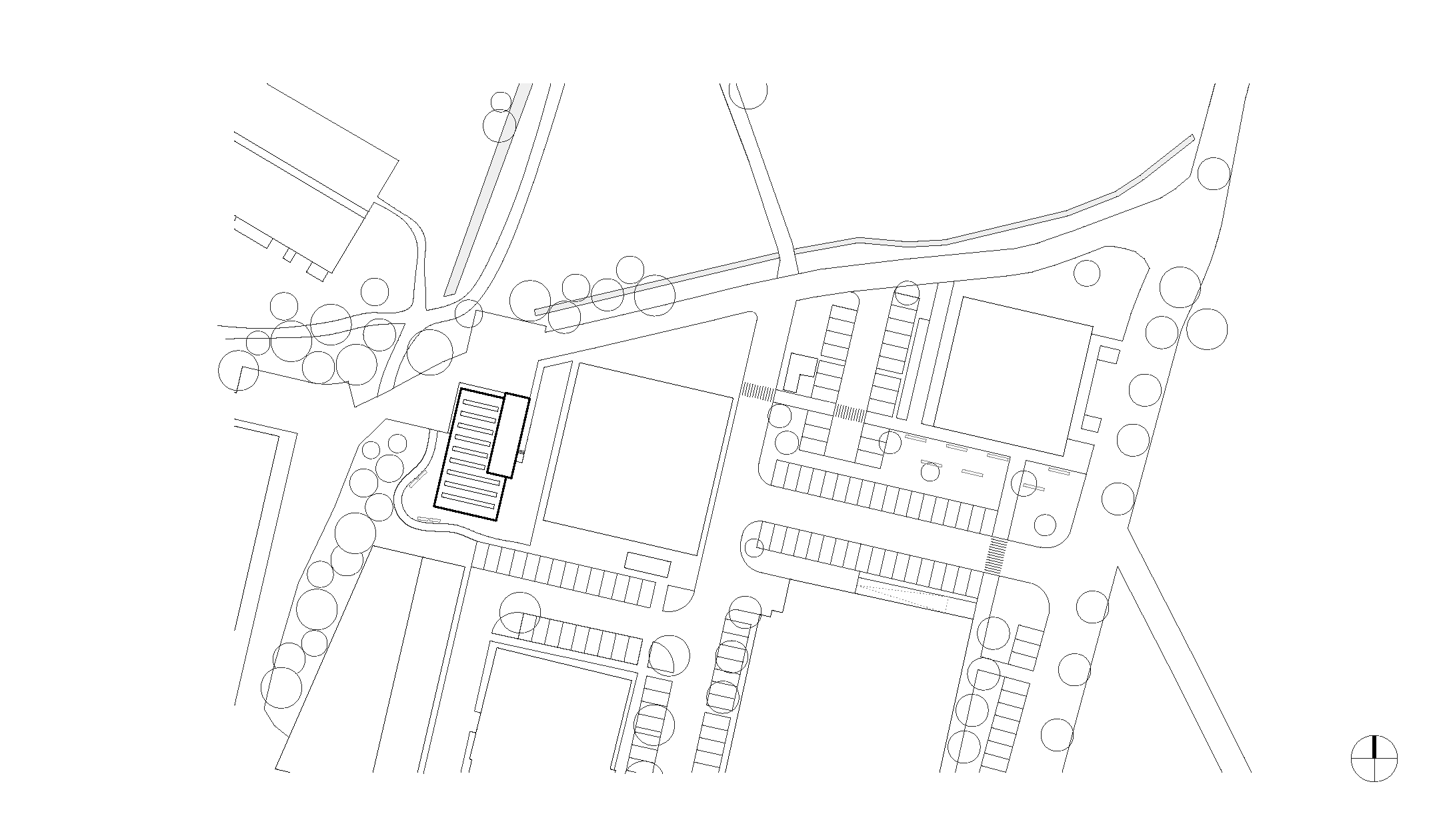
LCT ONE ist das weltweit erste mehrstöckige Hybrid-Passivhaus aus Holz mit einem modularen Bausystem.
Der LCT ONE ist in verschiedener Hinsicht ein Pionierbauwerk. Das in der Realisierungsphase befindliche Projekt ist das erste achtgeschossige Holzgebäude in Österreich. Hier wird zum ersten Mal ein Gebäude in Holzbauweise an der Hochhausgrenze errichtet. Es ist zudem der Prototyp für die im Forschungsprojekt „LifeCycle Tower“ entwickelte Holz-Systembauweise. Ziel des Projektes ist es, das Bausystem auf seine Umsetzbarkeit hin zu überprüfen und ebenso die Feststellung der Funktionstüchtigkeit unter realen Nutzungsbedingungen. Da das Bausystem eine internationale Marktreife erlangen soll, ist dieses Demonstrationsvorhaben ein zentraler Baustein für die Erprobung sowie für die Vermarktung.
Das Gebäude besteht aus einem aussteifenden Stiegenhauskern, an den einhüftig die Büroflächen angehängt werden. Entgegen dem Vorschlag im vorausgegangenen Forschungsprojekt LCT, auch den Stiegenhauskern in Holz zu bauen, wird hier der Kern in einer Ortbetonbauweise ausgeführt. Dies war das Ergebnis einer intensiven Auseinandersetzung mit den gesetzlichen Vorschriften des Brandschutzes, die zeigt, dass es derzeitig nicht möglich ist, den Kern aus brennbaren Baustoffen zu erzeugen.
Weiterlesen
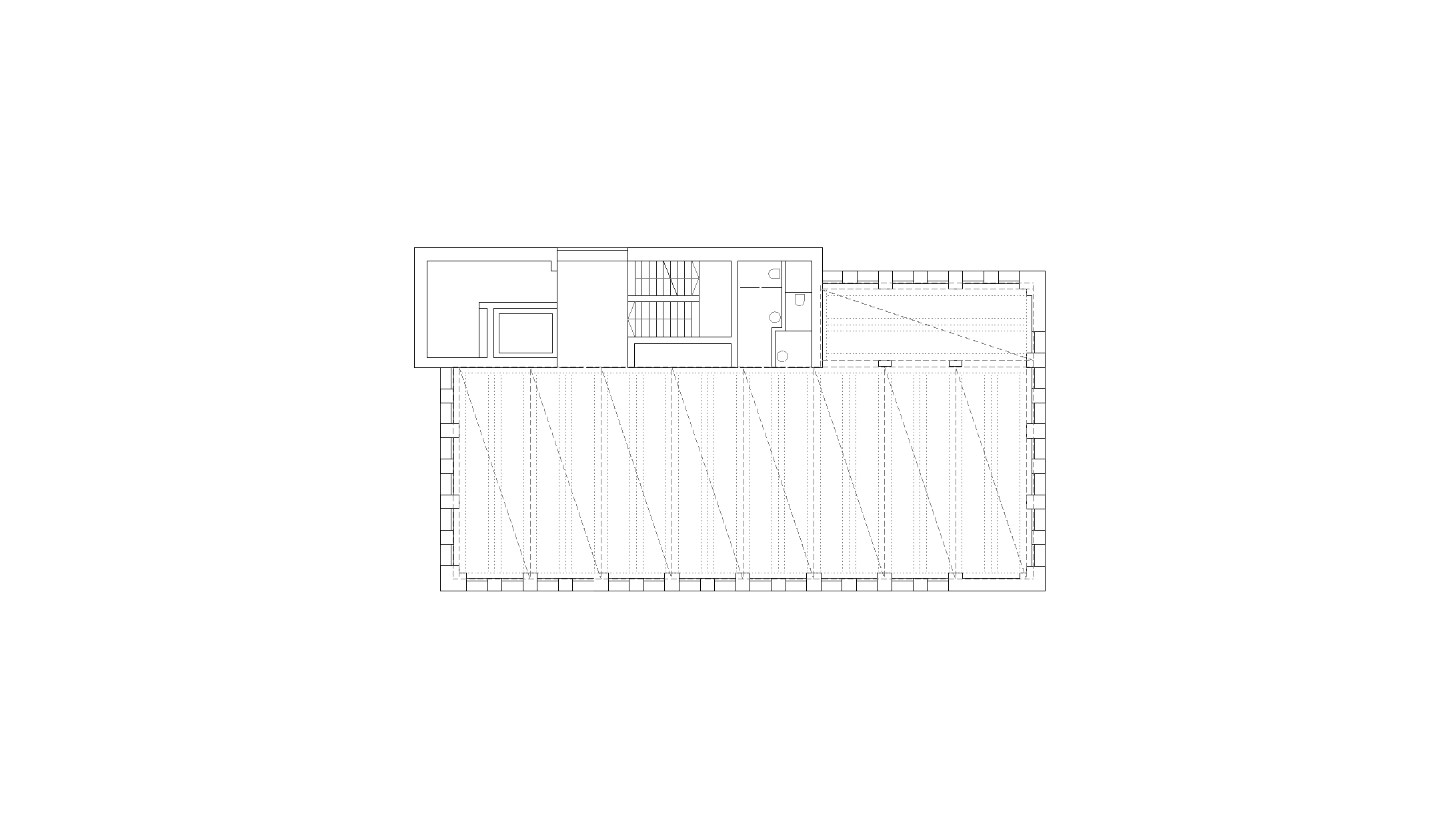
Mit dem Prüfnachweis (nach DIN EN 13501) des Feuerwiderstandes REI 90 der Holzverbundhybriddecke wurde eine wichtige Voraussetzung der Brandschutzbehörde erfüllt und ein wichtiger Schritt in Richtung Realisierung getan.
Dazu wurden bei der Firma Pavus in Tschechien mehrere Hybrid-Decken-Elemente von 2,7 Metern – entspricht dem Fassadenraster – mal 8,1 Metern – die mögliche Raumtiefe – einem Brandversuch unterzogen.Die Holz-Beton-Verbundrippendecke ist der eigentliche Schlüssel, um in die Höhe zu bauen, da es mit ihr gelingt, die jeweiligen Geschosse durch eine nicht brennbare Schicht konsequent zu trennen. In eine Stahlschalung von 8,1 mal 2,7 Metern werden die Holzbalken eingelegt, die Abstände dazwischen geschalt und im Vergussverfahren betoniert. Durch den hohen Vorfertigungsgrad vereinfacht sich der Bauablauf wesentlich. Die Deckenelemente können industriell viel präziser gearbeitet werden, es gibt keine Aushärtungszeiten auf der Baustelle und für die Verlegung eines Deckenelementes geben die Handwerker ganze 5 Minuten an.
Der Schubverbund zwischen Beton und Leimbinder wird nicht mittels komplizierter Verbinder sondern über Schrauben und Schubkerven hergestellt. Ein Sturzträger aus Beton trägt weiters statisch wesentlich zur Durchleitung der enormen Kräfte aus den Fassadenstützen bei. Das Hirnholz der Doppelstützen steht direkt auf dem Beton, der verbindende Dorn wird auf der Baustelle im Fertigteil eingegossen. Dieser Sturzträger ermöglicht die brandschutztechnisch notwendige geschossweise Trennung der Konstruktion auch in der Stützenebene und ermöglicht eine Einleitung der Lasten aus der Decke in die Stütze, ohne einen Holzbauteil quer zur Faser zu belasten. Dem Kräfteverlauf folgend, werden die Stützen den tatsächlichen statischen Erfordernissen entsprechend konfektioniert.
























