Weiterbauen für ein gutes Miteinander.
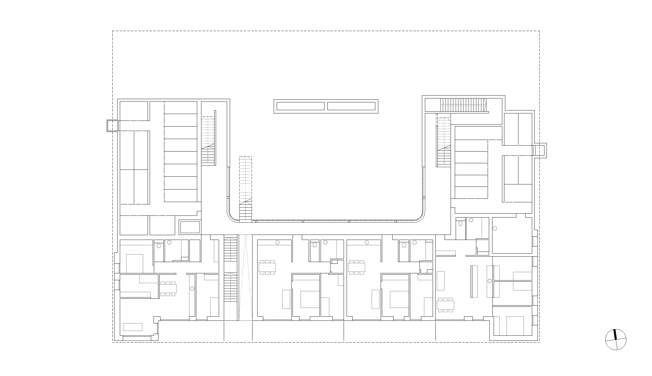
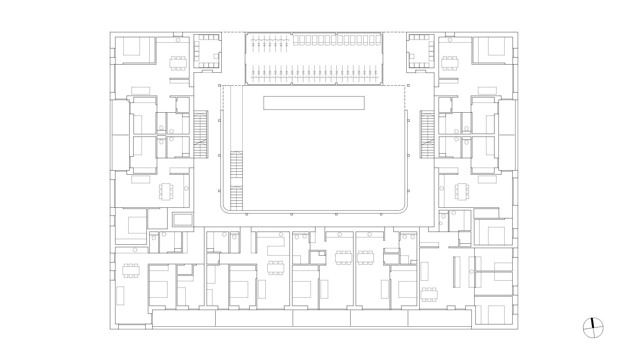
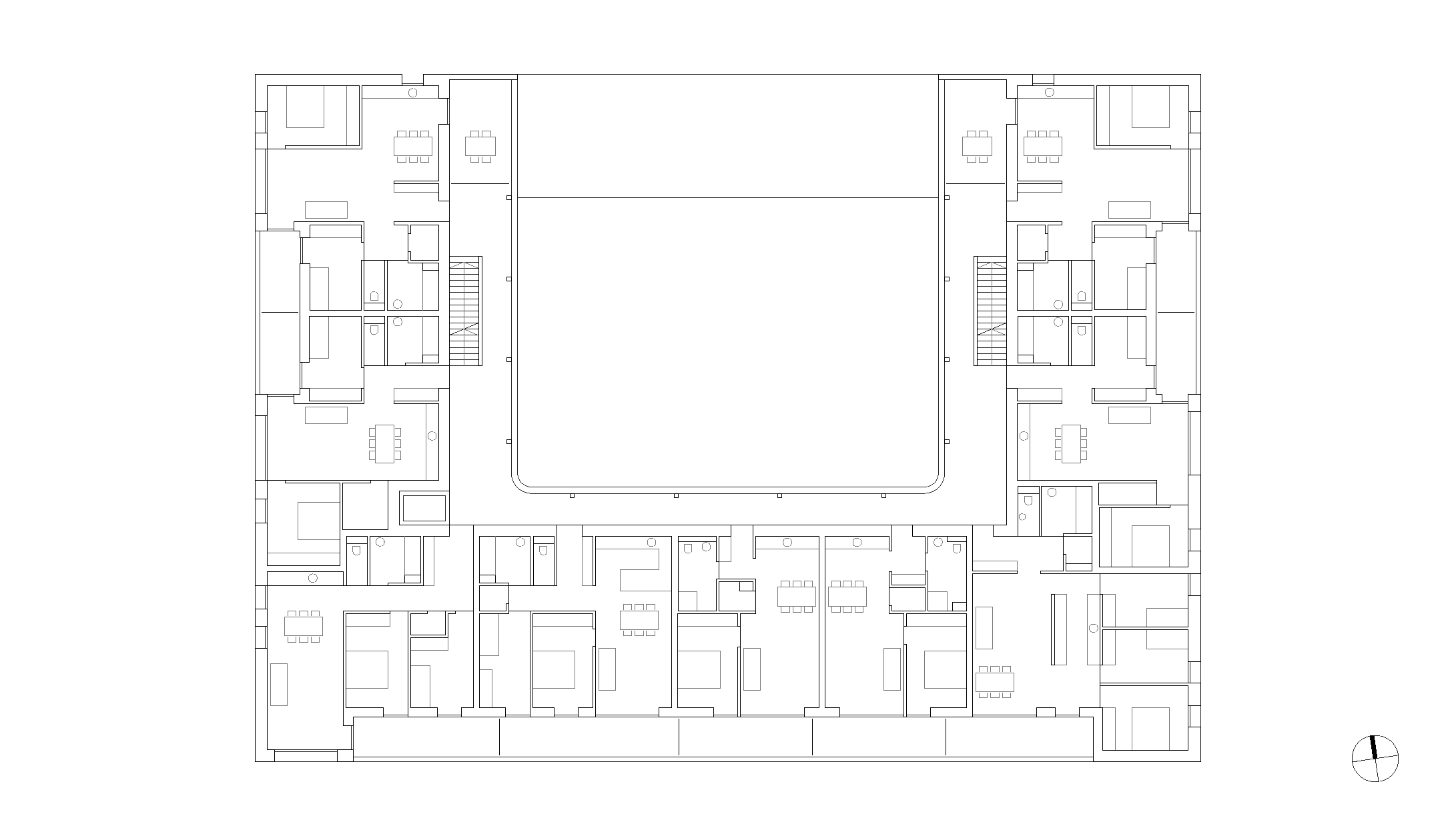
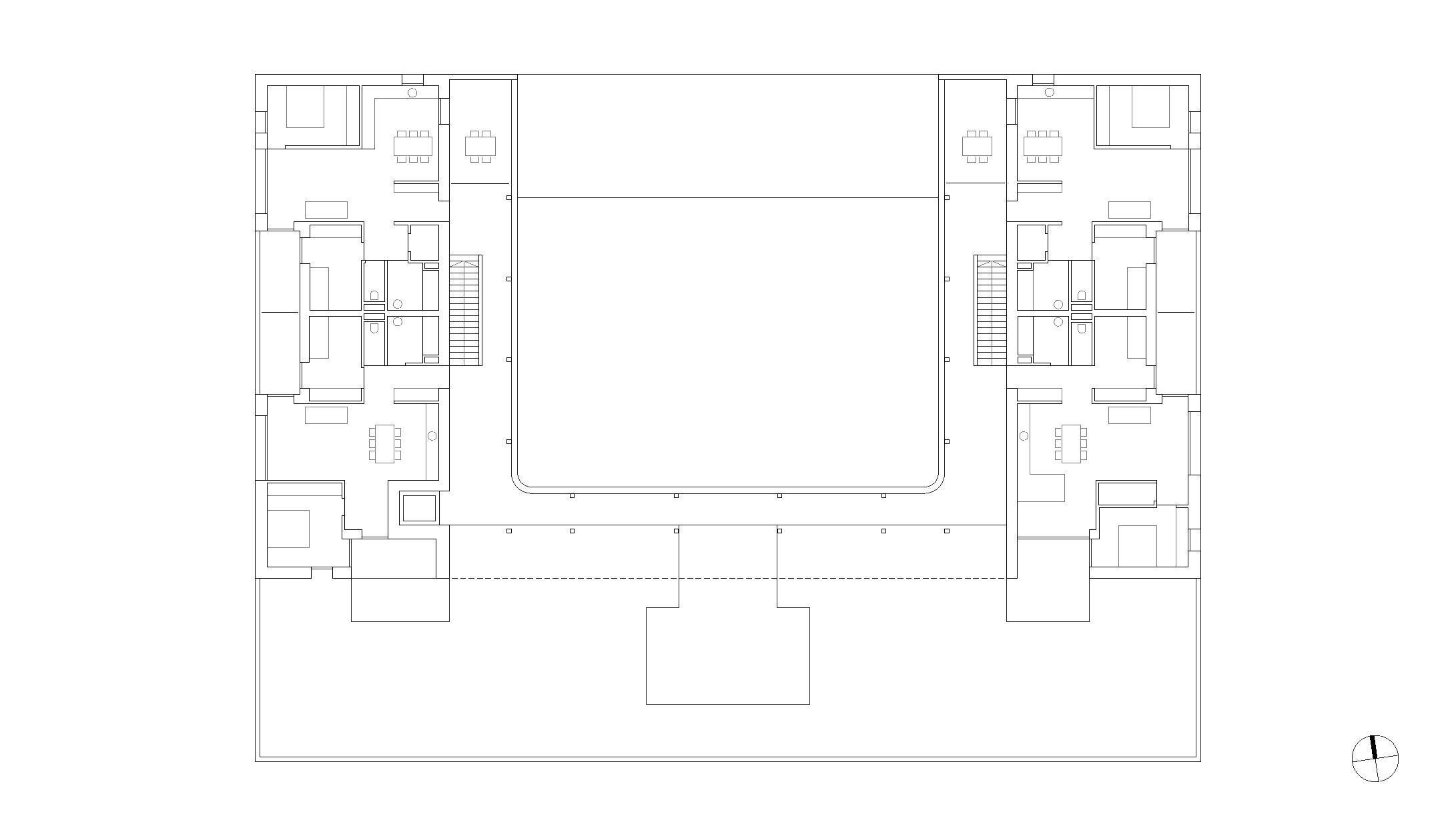
Am Tag der Schlüsselübergabe für die Häuser des ersten Bauabschnittes wurde bereits der Spatenstich zur Erweiterung des Wohnprojektes begangen. Das bestehende Ensemble aus drei Baukörpern war mit Unterstützung eines interdisziplinären Teams von Wissenschaftlern konzipiert worden und sollte nun gegen Osten durch zwei weitere Volumina ergänzt werden. Da sich das Konzept einer sozialen Durchmischung bewährt hatte, wurden 26 Mieteinheiten, 19 subjektgeförderten Eigentumswohnungen sowie vier freifinanzierten Apartments im Attikageschoss umgesetzt. Die vorhandene Tiefgarage konnte vergrößert werden, um Plätze für die KFZ der neuen Nachbarn zu schaffen.
Die beiden Objekte wurden in Hybridbauweise aus Holz und Beton errichtet. Die äußere Gebäudehaut ist mit einer vertikalen Lärchenschalung belegt, während die Wände zu den Loggien als verputzte Wärmedämmverbundsysteme ausgeführt sind. Wie die bestehenden Bauwerke, wurden auch die neuen Gebäude im Passivhausstandard errichtet, mit einer kontrollierten Lüftung zur Wärmerückgewinnung ausgestattet und an die bestehende zentrale Heizanlage angeschlossen.
Denn auch für die später fertiggestellten Häuser bestand der Wunsch, ein gutes Miteinander der Wohngemeinschaft durch architektonische Maßnahmen zu fördern. Die gesamte Siedlung konnte verkehrsfrei geplant werden, ein zentraler Platz im großzügig angelegten Grünraum lädt zum Begegnen und Verweilen ein. In einem der Treppenhäuser ist ein filigranes Kunstwerk installiert, das nicht nur die Kinder zum Staunen bringt, eine offene Hausbibliothek bietet sich als Ort des Austausches an und die gedeckte Dachterrasse im dritten Obergeschoss kann von allen Mietern genutzt werden, um Sonne und Aussicht zu genießen.















