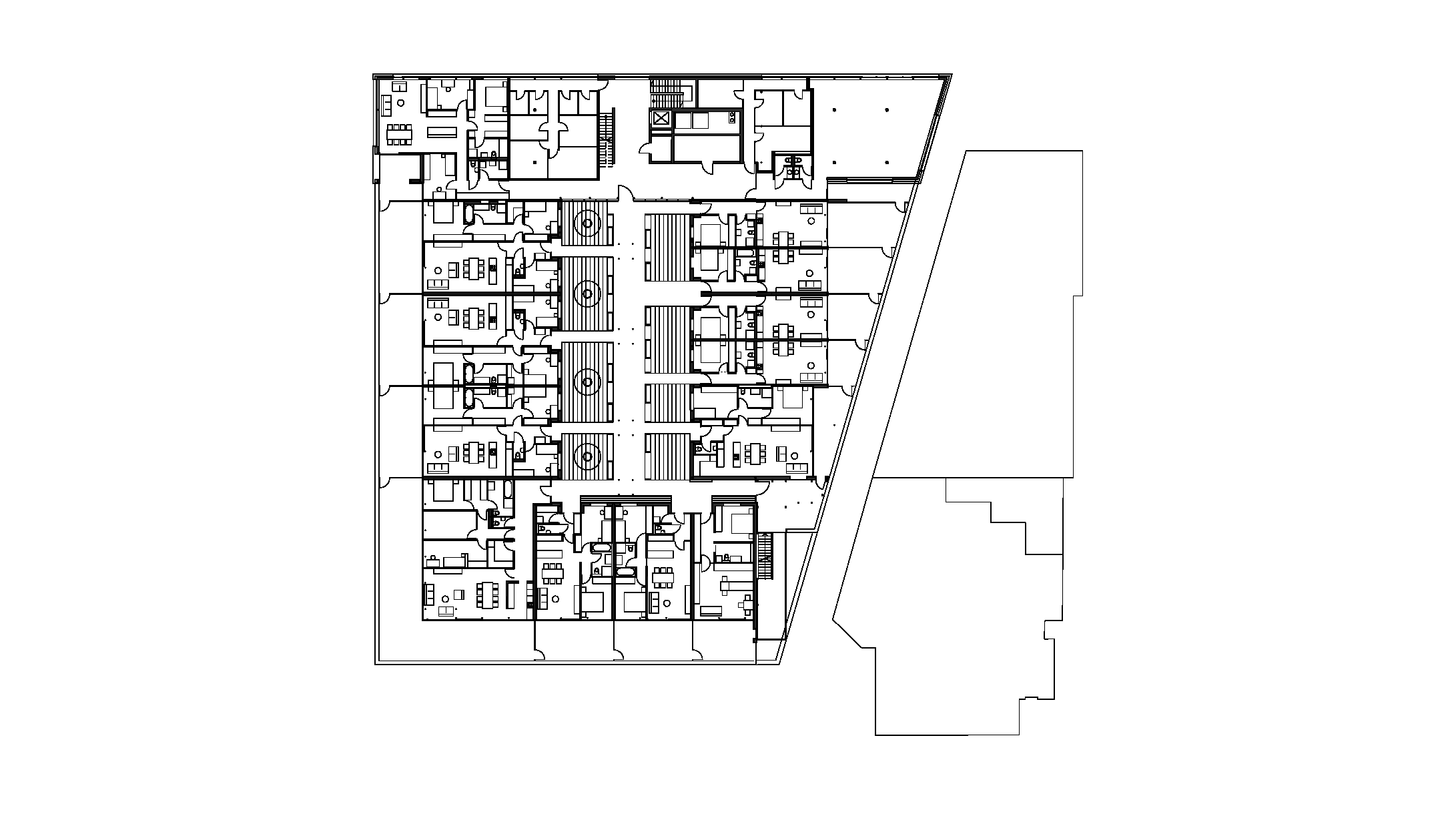
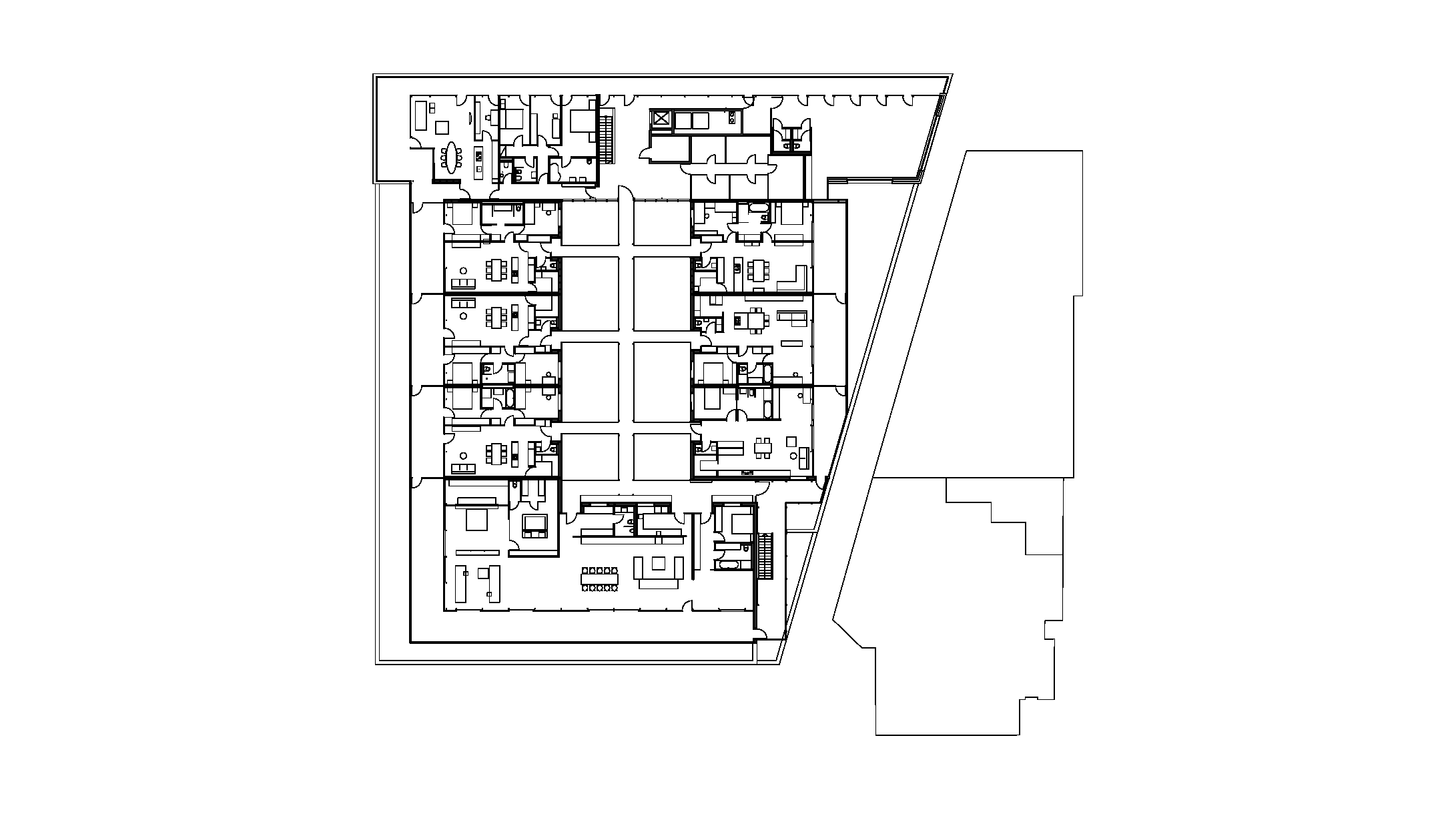
Innerstädtische Aufstockung mit 21 neuen Wohneinheiten und lichtdurchfluteten Atrium.
Artriumhaus
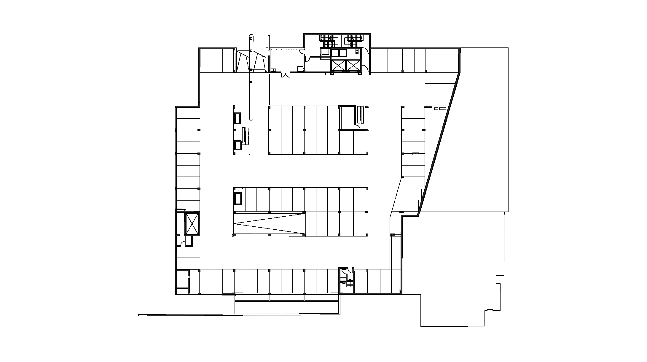
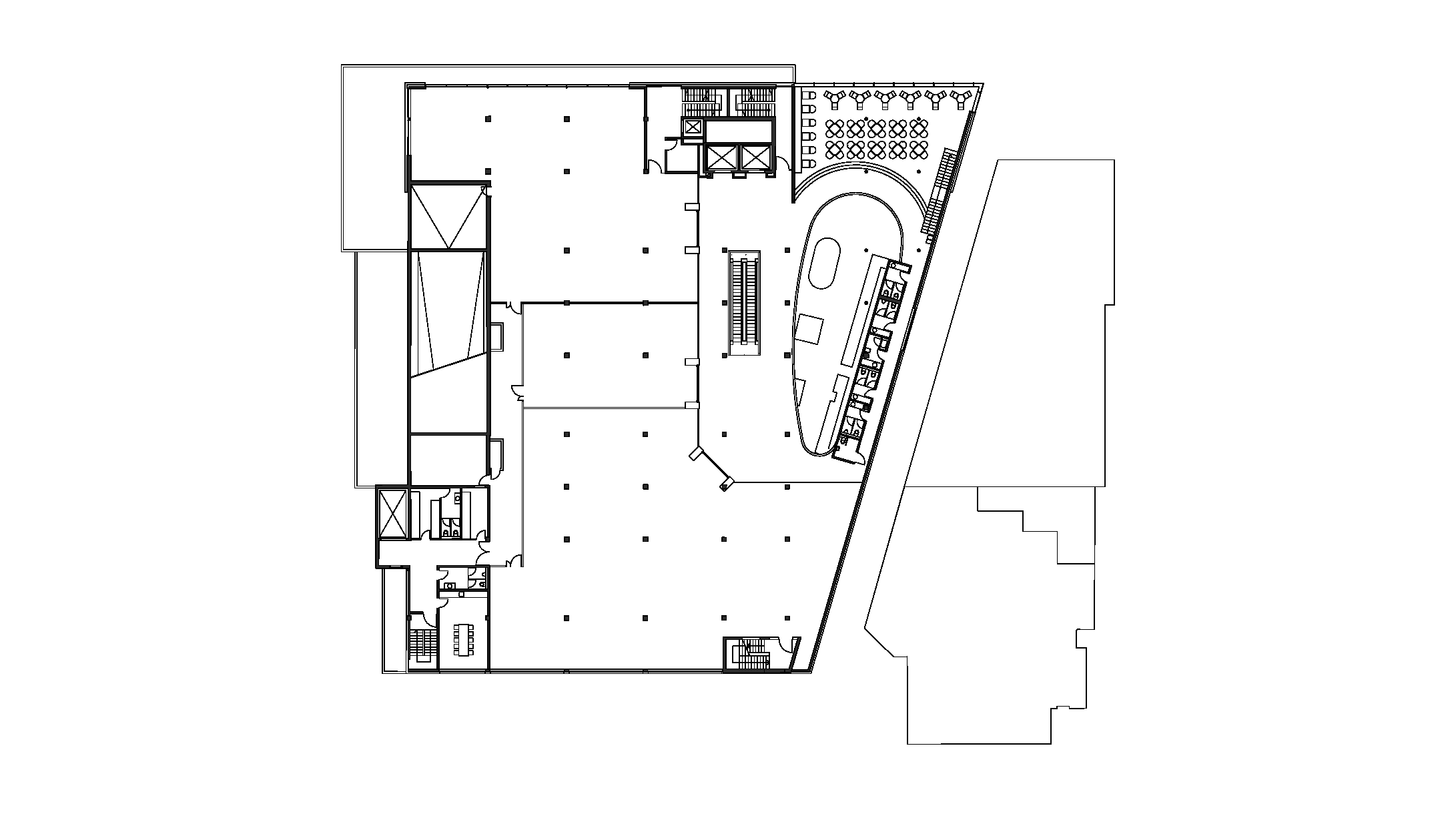
Das Atriumhaus Mozartstrasse ist eine 2-geschoßige Aufstockung des ursprünglich 1983 erbauten „Cityparks“ im Zentrum von Dornbirn. Im Zuge der Sanierung des Gebäudekomplexes wurde jetzt die schon ursprünglich statisch vorgesehene Überbauung im 3. und 4. Obergeschoss realisiert. In bester Zentrumslage von Dornbirn gruppieren sich nun 21 Wohn- und 2 Büroeinheiten auf 2 Geschosse verteilt um ein großzügiges, helles, glasüberdecktes Atrium, mit Blick auf ein wunderbares Panorama. Das Atrium ist über eine neu errichtete Vertikalerschließung mit dem Erdgeschoss sowie mit den Tiefgaragenplätzen im 2.Untergeschoß verbunden. Konstruktiv musste die Aufstockung in Leichtbauweise ausgeführt werden, ausschließlich die Zwischendecke ist aus akustischen Gründen ein Massivbauteil. Sowohl die Außenwände zum Atrium als auch die tragenden Zwischenwände im 4. Obergeschoss und die gesamte Dachkonstruktion wurde mit vorgefertigten Holzelementen realisiert. Warme Holzfarben dominieren das Atrium – ein gestalteter attraktiver Raum als halböffentliche Zone vor den Wohnungen.
Sutterlüty City Park
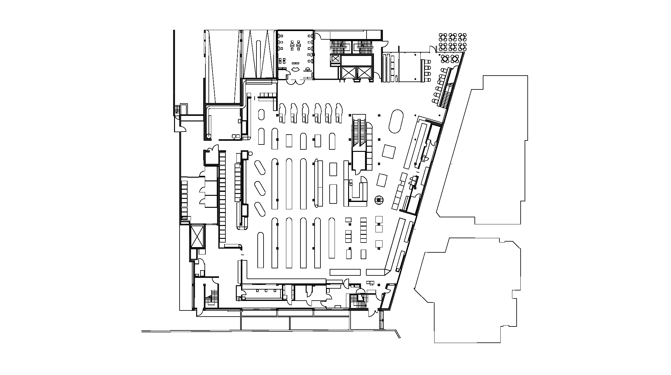
Das 1983 errichtete und inzwischen aus funktionellen, bautechnischen und architektonischen Gründen sanierungsbedürftige Geschäftshaus „Citypark“ wurde im Zuge der Sanierung um 2 Geschosse aufgestockt. Mit der schon ursprünglich statisch vorgesehenen Überbauung konnte nun Raum für 21 Wohn- und 2 Büroeinheiten in bester Zentrumslage von Dornbirn zur Verfügung gestellt werden. Um auf der „großen Baumasse“ entsprechend gut belichteten und hochqualitativen Wohnraum zu schaffen, wurde die Aufstockung als Atriumhaus konzipiert. Rund um das großzügige, über beide Geschosse offene und glasüberdeckte Atrium sind attraktive Wohnungen situiert, wobei die Wohnräume sich durchwegs mit vorgelagerten Freibereichen nach außen öffnen und die zum Innenhof hin ausgerichteten Neben- und Schlafräume über das Atrium belichtet werden. Gleichzeitig versteht sich das Atrium als halböffentlicher Raum mit Stegen und Wegen zu den Wohnungen. Die zwischen den Gassen alternierenden Sitzbänke und Pflanzeninseln laden zum Verweilen ein. Die warmen Holzfarben des Holzrostes und der zum Atrium gerichteten Außenwände bestimmen die freundliche Atmosphäre dieses gestalteten Raumes vor den Wohnungen, der über ein nach innen geneigtes Glasdach viel Licht erhält. Konstruktiv wurde die Aufstockung weitgehend in Leichtbauweise ausgeführt, die Außenwände zum Atrium, die tragenden Zwischenwände im 4. OG sowie die gesamte Dachkonstruktion wurde mit vorgefertigten Holzelementen realisiert.












