A complete overhaul of function and form.
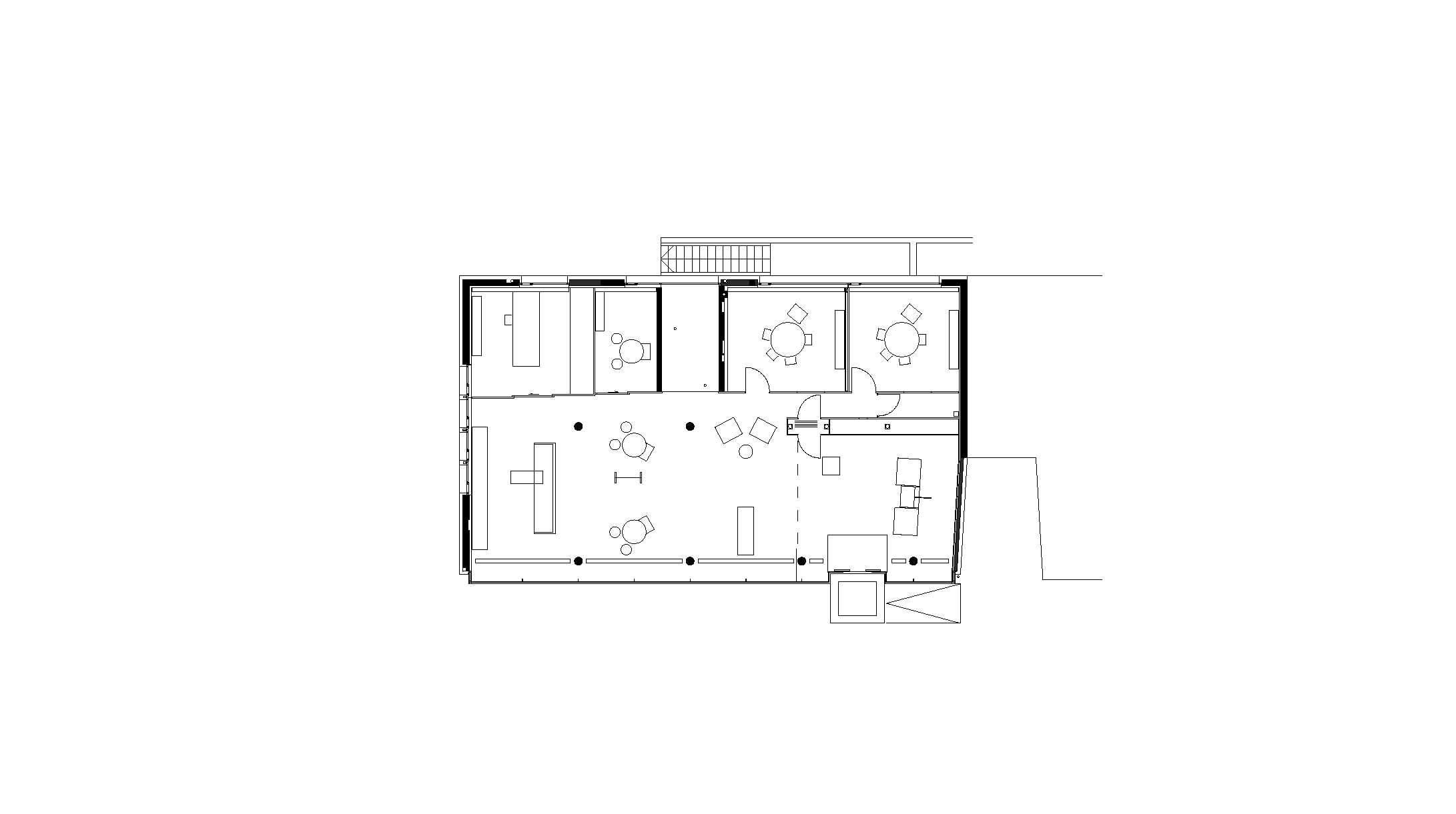
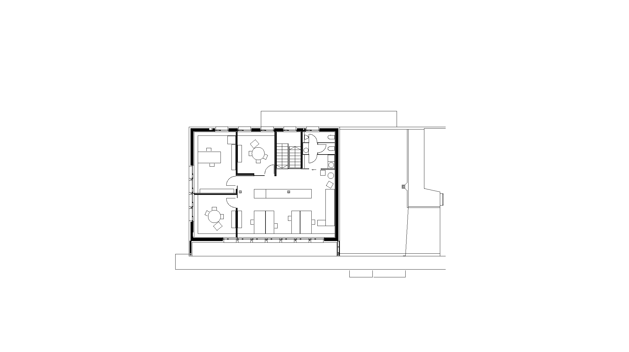
Due to the new function that was to be given to the building, it had to be completely hollowed out, except for the outer walls and the ceilings. It got a new vertical development in the form of an open staircase. On the ground floor are the banks staffed counters, the automated machine area, and the consulting rooms. On the upper floor there are the office rooms and in the basement the vault, tea kitchen, employees access and areas including the cloakrooms and technical rooms. The facade was provided with a full thermal insulation, the canopy was reformulated as a thin concrete slab.







