Erfüllt alle Sicherheitsanforderungen und Bedürfnisse des Landes.
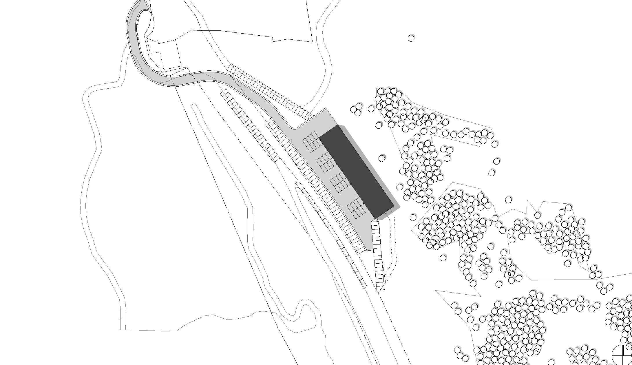
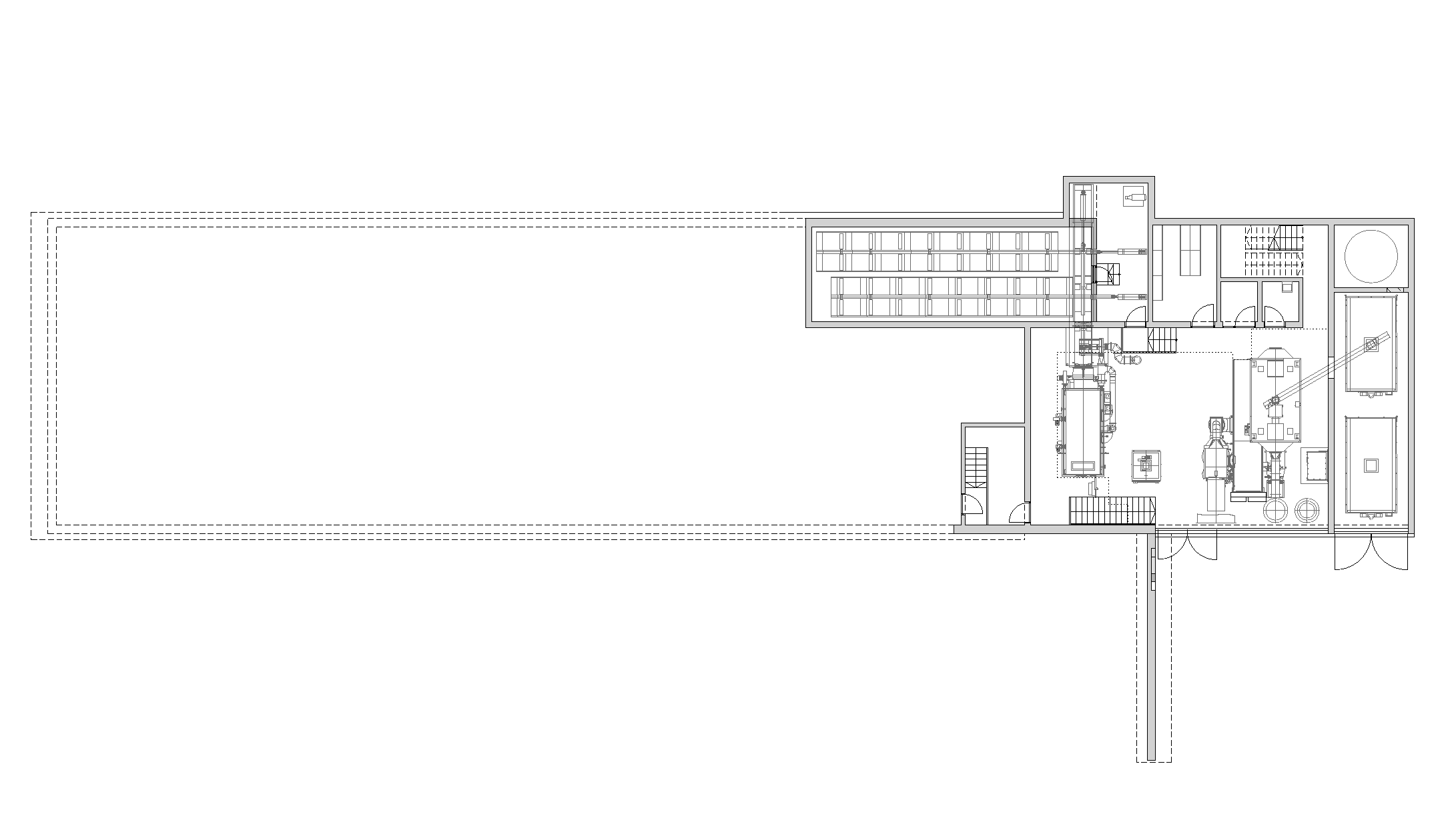
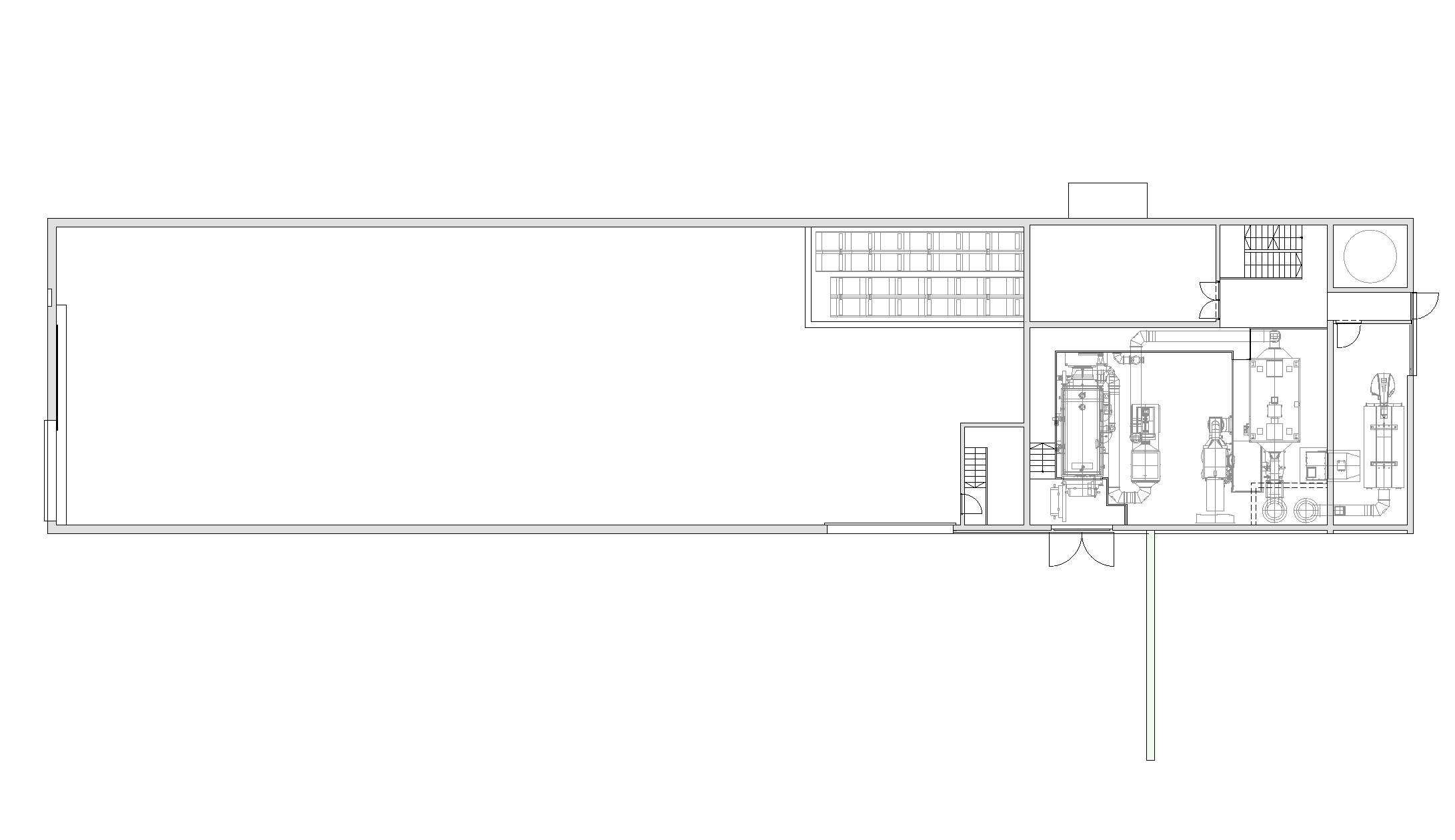
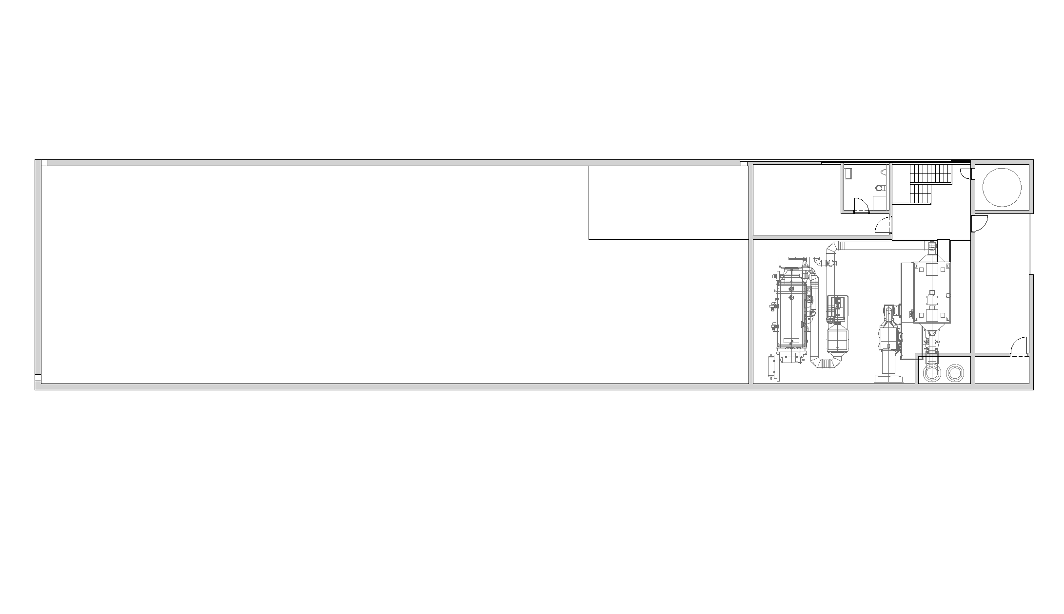
Das Biomasseheizwerk liegt in offener Landschaft süd-westlich des Ortskerns von St. Christoph. Der klare Baukörper integriert sich durch seine zurückhaltende Oberflächengestaltung in die umgebene Landschaft. In dem Baukörper befinden sich die Lagerhalle und das Heizhaus. Die Versorgung mit Hackgut und Entsorgung der Asche erfolgt über durch die südseitigen Tore zum bestehenden Platz.
Konstruktion
Das Heizwerkgebäude ist in Massivbauweise geplant. Die Tragstruktur, Außenwände und die Zwischendecken werden als sichtbare Stahlbetonkonstruktion erstellt. Im Heizhaus ist geplant die Zwischendecken und Treppen teilweise als Gitterost- / Stahlkonstruktion auszuführen. Aufgrund der Situierung müssen die südseitigen Fassaden inkl. Verglasungen, Türen und Toren dem Lawinendruck (3 KN/m² bzw. 2 KN/m²) standhalten. Um die über das Gebäude führende Hochspannungsleitung vor Brand und Hitze zu schützen wird das gesamte Gebäude in REI 90, EI 90bzw. R 90 ausgeführt. Die Fassade inkl. Dach wird als nicht brennbare (A2) Konstruktion ausgeführt. Für die Türen und Tore werden in der Lagerhalle die Anforderung EI2 90-C und im Heizhaus EI2 30-C eingehalten. Sämtliche Lüftungsöffnungen werden mit Brandschutzklappen EI 90 ausgeführt.














