Aufstockung Hotel Engel, Mellau: Neu ausgerichtet.
Touristische Traumwelten haben eine kurze Halbwertszeit. Am Hotel „Engel“ in Mellau war dieser Wandel der Erwartungen augenfällig. Der Familienbetrieb wurde zwar nach wie vor mit viel Gastfreundschaft und Engagement geführt – doch das Dreisterne-Haus sprach einen betont breiten Älpler-Dialekt. Und es entsprach damit kaum mehr dem heutigen Selbstverständnis der Bregenzer Wälder, die weltgewandt und stolz ihre Identität leben, ohne dabei dick aufzutragen.
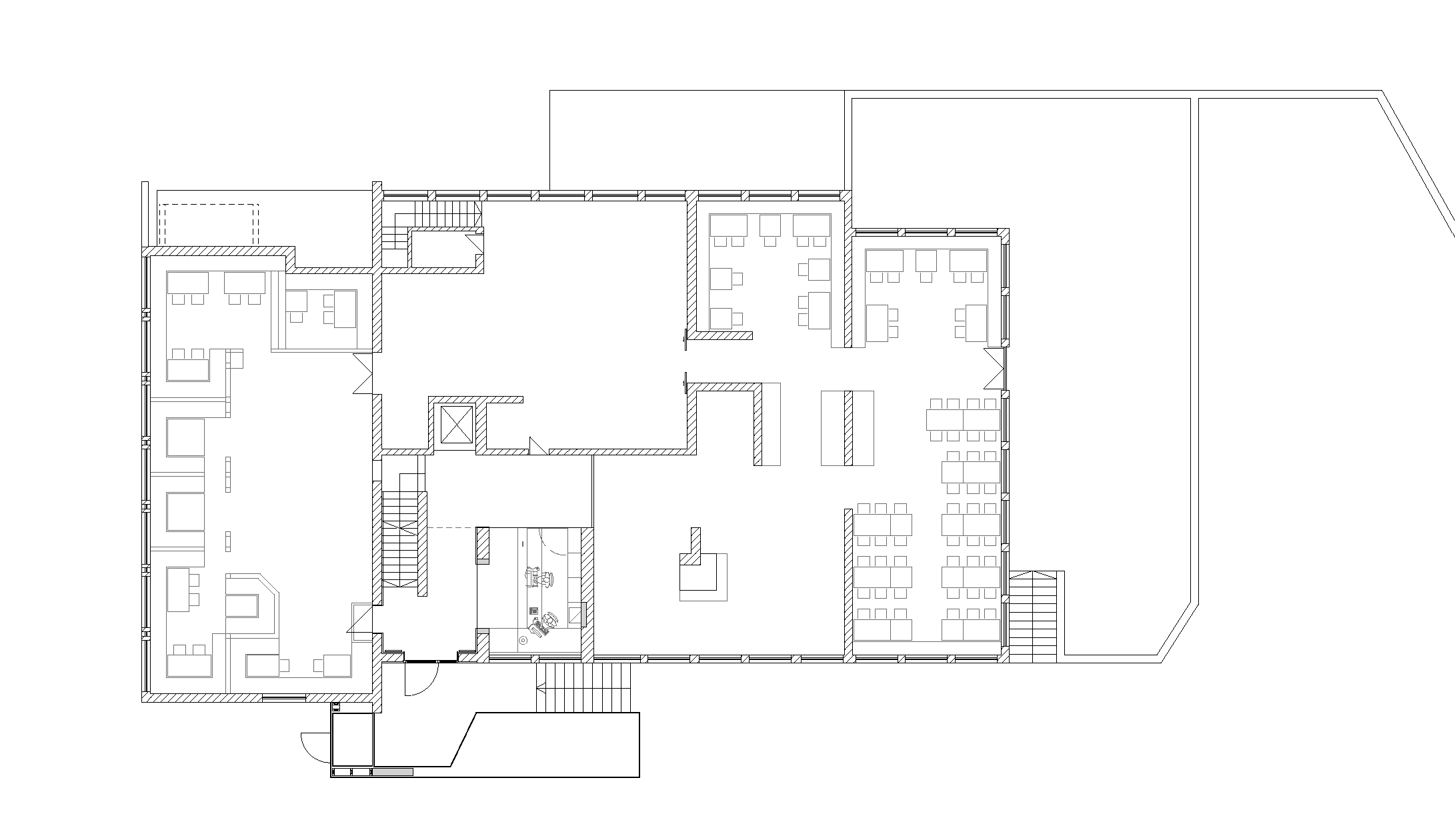
Die Zielsetzung war klar: Der Engel sollte einen Weg in die touristische Gegenwart finden. Das Haus sollte jedoch nicht nur ein Facelifting erhalten, sondern auch noch neue Gastzimmer erhalten. Weil in der Hotellerie jeder Tag zählt, standen für die Bauarbeiten lediglich drei Monate zur Verfügung. Dies erhöhte die Anforderungen an die Organisation der Baustelle wesentlich.
Weiterlesen
Doch aus architektonischer Sicht stellte sich noch ein ganz anderes Problem: Der Giebel war auf die falsche Seite ausgerichtet. Über der langen Fassade lag ein flach geneigtes Dach und das Haus wirkte wie ein überdimensioniertes Chalet. Darüber hinaus unterstreichen die dunkel gestrichenen Brüstungen der Balkone die rustikale Anmutung. Die Aufgabe bestand nun darin, nicht nur den Giebel, sondern das ganze Haus neu auszurichten. Das Resultat zeigt einen präzisen Eingriff, der das Hotel in mehreren Schritten in die Gegenwart führt und ihm auch eine Zukunft bietet.
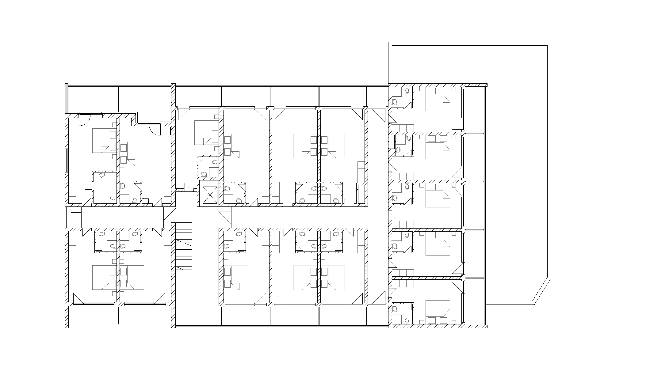
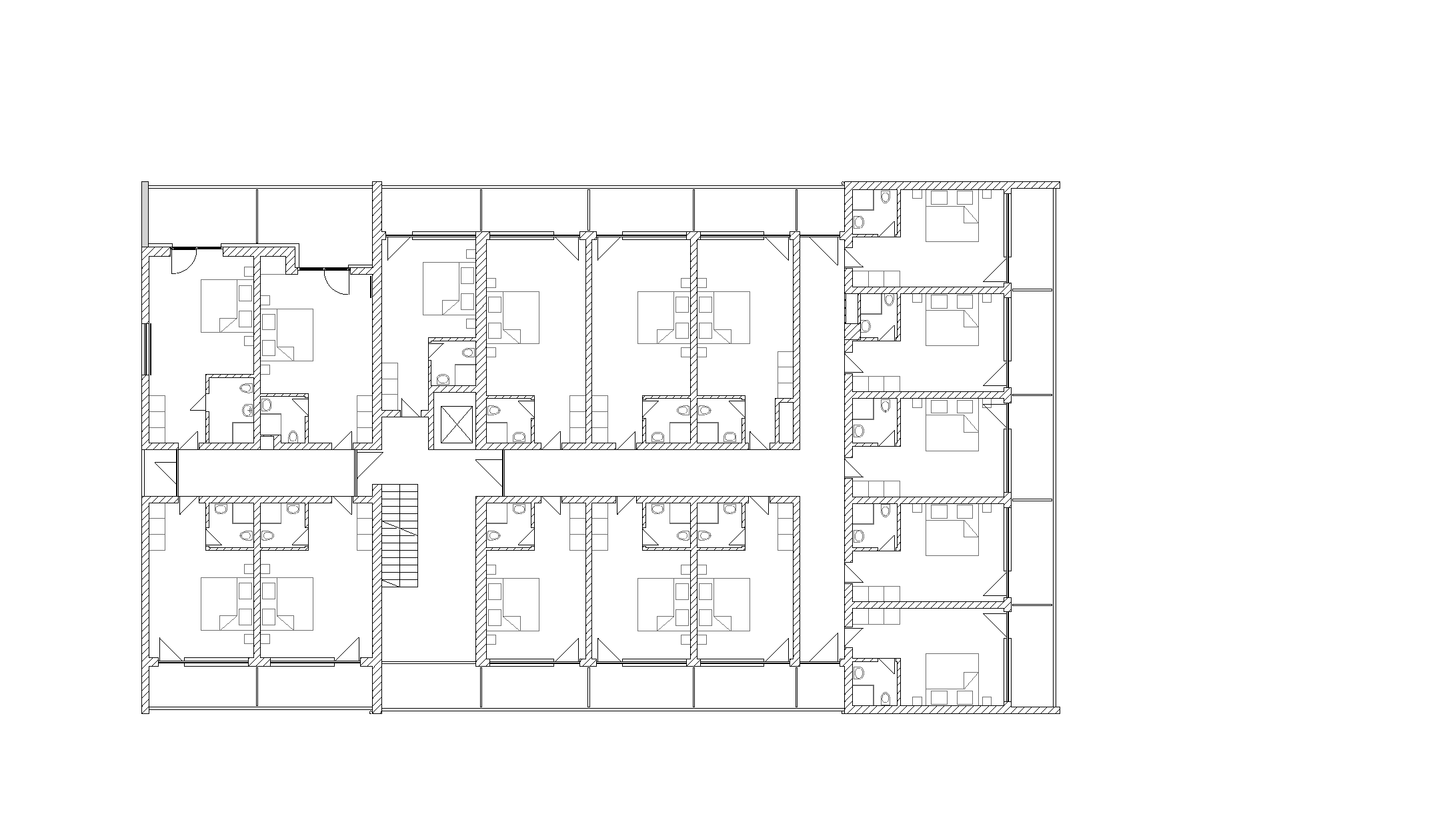
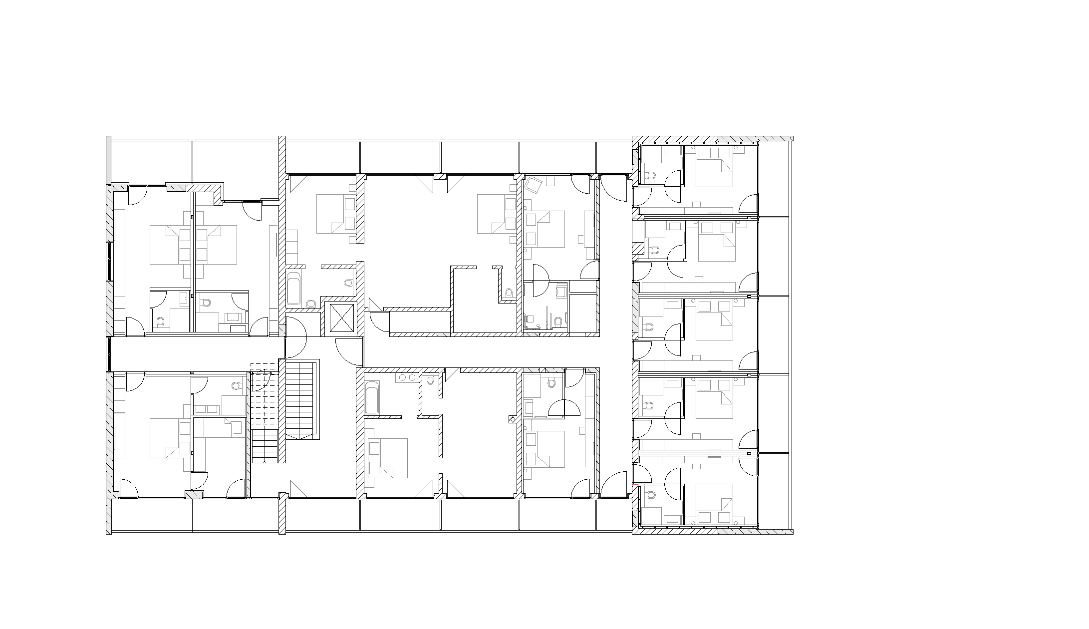
Das Hotel „Engel“ in Mellau war in die Jahre gekommen – und es ist in dieser Zeit nicht gut gealtert: Die Anmutung war klar den 1970er-Jahren zuzuordnen und das Haus wirkte in seinem Volumen wenig elegant, der Giebel über der langen Seite machte es plump und groß. Es gab demnach Handlungsbedarf in der Erscheinung des gesamten Hauses und einige Zimmer sollten aufgefrischt werden. Bei den Hotelzimmern erfolgte eine Rochade: 5 neue Zimmer wurden gegen Südwesten unter dem neuen Dach erstellt und bilden das Premium-Angebot des Hotels, gegen Nordosten ist das Volumen als Rohbau für spätere Ausbauten vorbereitet. Aus der ehemaligen Wohnung der Gastgeber im 3. OG sind zwei Suiten entstanden.
Auch wenn es nach einer großen Operation aussieht, ist der Eingriff dennoch behutsam und maßvoll. Die erste Phase der Instandsetzung ordnet das Haus ab dem 3. Obergeschoss und in der äußeren Erscheinung. Die Zimmer wurden vorläufig nur dort erneuert, wo tiefere Eingriffe nötig waren. Die Räume im 1. und 2. Obergeschoss blieben unberührt. Die zentrale Entscheidung lag darin, den Giebel zu drehen: dadurch bot sich die Gelegenheit, die ehemaligen Dachkammern zu neuen Zimmern auszubauen, und im 4.Obergeschoss blieb darüber hinaus Platz für die neue Wohnung der Hausherren.
Gegen außen ist neben dem veränderten Volumen vor allem die neue Gestaltung der Balkone augenfällig. Die ehemals liegenden Balkonbrüstungen aus dunkel gestrichenen Brettern sind stehenden Latten aus naturbelassenem Holz gewichen. Die vor die Brüstung gestellten, noch dunkler gestrichenen Balken wurden komplett entfernt. Es ist erstaunlich, wie sehr diese Gesten den Charakter des Hauses verändern: Die Gliederung der Fassaden in geschlossene und offene Flächen ist nun viel klarer ablesbar, die feinen Bänder der durchgehenden Balkonbrüstungen drücken die handwerkliche und dem Holz verpflichtete Identität der Region aus.
Abgesehen von diesen beherzten Veränderungen war die Devise, möglichst viel vom Bestand weiter zu verwenden: Die neuen Zimmer im 3. Obergeschoss geben die Marschrichtung vor mit hochwertigem Handwerk und zurückhaltender Gestaltung. Bei einer nächsten Auffrischung werden weitere Zimmer wohl ein ebenso vernünftiges Facelifting erhalten wie der Rest des Hauses.
Mit der Anpassung des Volumens wurde die Basis für die weitere Entwicklung des „Engels“ gelegt. Die Erwartungen der Gäste werden sich wohl auch in Zukunft wieder wandeln. Dann bietet die jetzt erfolgte Instandsetzung eine hervorragende Grundlage, um dereinst erneut auf die veränderten Bedürfnisse reagieren zu können.



























